Pablo Millán Architects | Restoration and enhancement of the Roman Cistern of “La Calderona” in Porcuna (Jaén)

Source: Pablo Millán ArchitectsPhotography: Javier Callejas SevillaLocation: Porcuna, Jaén, SpainYear: 2025Architect: Pablo Millán ArchitectsArchitectural Collaborators: Cristian Castela González; David Vera García; Simona Belmondo; Inmaculada Cervera MontillaPromoter: Porcuna CouncilTecnical Architect: Javier Serrano Terrones; José Miguel Fernández CuadrosStructure: Salmer TécnicosLighting: IguzziniArcheology: ARQVTIPOConstruction: TRAGSA
Date: April 30, 2025

WHEN SPACE IS CONSTRUCTED BY RUIN AND TIME: Restoration and enhancement of the Roman Cistern of “La Calderona” in Porcuna (Jaén)

Located above the Roman City of Obulco, the “La Calderona” in Porcuna (declared an Asset of Cultural Interest in 2014) is a water storage tank which, given its typology, is assumed to be linked to the water infrastructure of the municipium, and possibly to the public baths. At that time during the Roman Empire, with the growth of the population and the need to expand the city limits, the inhabitants covered the area with large stone slabs and pillars, onto which new buildings were erected. This would become the largest walled city in Roman Spain. The passage of centuries, and the evolution of history, added successive layers which contributed to the pre-existing buildings of the 1st Century BCE being definitively buried, both physically, and in terms of memory.

In modern times, what was thought to be simply a water storage tank, supplying numerous wells to the houses of the San Benito neighbourhood, was identified. It was during the Spanish Civil War in the 20th century when a chance discovery put experts on the trail of the original infrastructure. When the population went underground to protect themselves from aircraft bombings, the residents observed that the wells they had in their homes were part of a much more complex structure. As a result of this discovery, a number of experts wanted to investigate and study the monument. Unfortunately, they were unable to carry out a proper investigation due, among other reasons, to the difficult conditions impeding access to the space, located approximately nine metres below the level of the houses.

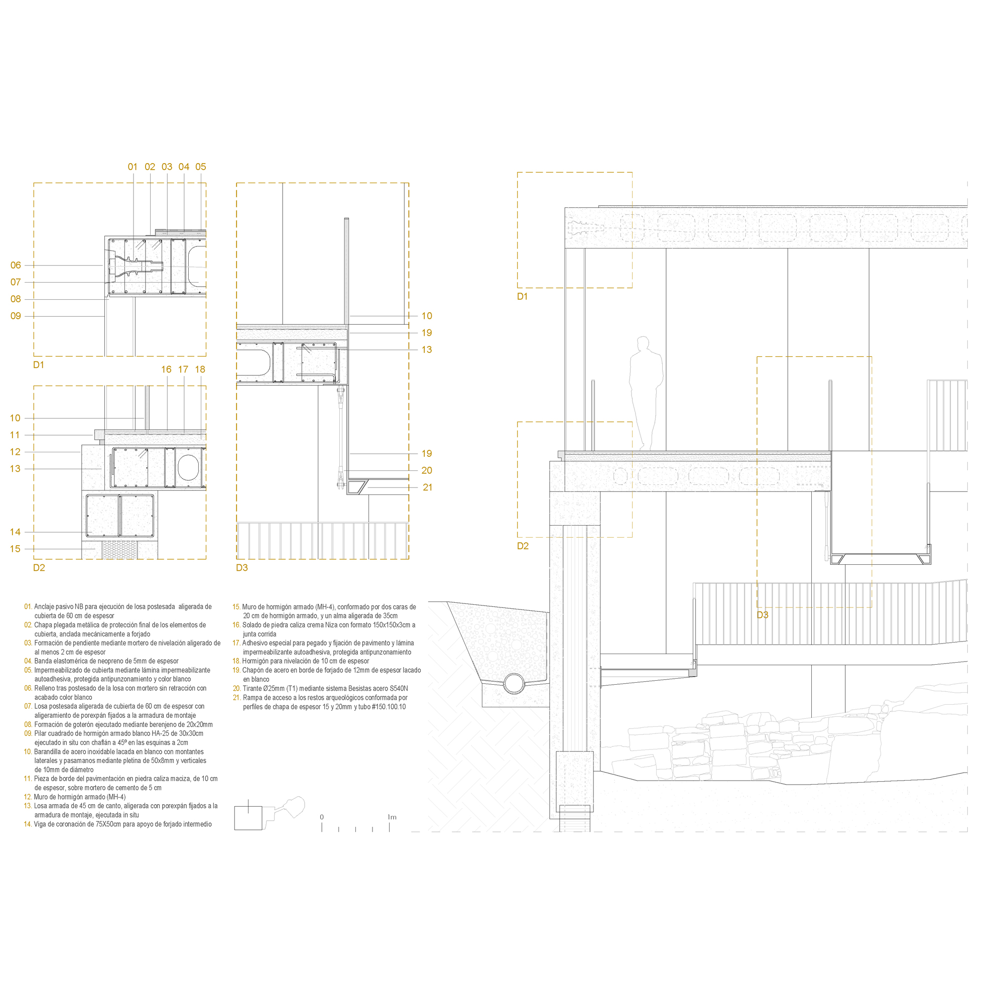
The project of restoration and the opening of access to the public, required a complex intervention, taking into account the circumstances of the locality. Firstly, to access the level of the cistern, a new building was imperative. This would serve as a Visitor/Reception Centre and also act to integrate the descending ramp. Advantage was taken of an empty area, located on one of the margins close to the nearest road, so that the houses located on the Roman complex would not be affected. However, the search for a suitable access to the cistern ended up generating a new construction, a bridge on the road, and a tunnel underneath the homes.

 

 

This work has produced a dichotomy. On the one hand, there was the heritage architecture, present both in the Roman cistern and in all the domestic buildings revealed during the archaeological intervention, and the new construction, which houses the entire programme. On the other hand, the work was confronted with an architecture below ground level, closed and hidden, into which no light enters. Against this backdrop, a new, open, clear, diaphanous space was proposed. Thus, a dialogue was established between an almost excavated architecture, more like a cave, and a new construction that had to include a stereotomic approach, moving between the Visitor/Reception Centre and a minimally constructed space. In short, this is a project based on the interrelationship of opposing realities and which, in the face of complexity, proposes a discourse based on the simplicity of a clean, geometrically precise architecture which does not conflict with the inherited architecture.

The land on which the development project is located is on the edge of the urban municipality, on a slope of what was once the epicentre of this ancient Roman city. There, the new building opens out towards the slope, forming a space which, at the same time, offers a clear reading with respect to the context in which it is situated. It serves as an iconic reference to the cistern monument itself, displayed on the lower level. The construction is closed to the domestic architectures of the area, which have irregularly formed an area devoid of the sense of heritage, inherent to the architecture of the stratum. Thus, with a clear structure, a space for light is configured as a preliminary step, before accessing the heritage world of the shadows.

On the contrary, the return to the surface is proposed as a dynamic, a key to the final ascent from the darkness of the interior of the cistern, to the light of the exterior. Over the suspended walkway, the visitor passes through an open space that is suspended above the ruins. Part of the Roman city can be observed and toured without disrupting it. Perhaps, without being aware of it, this tour updates the Platonic allegory of the cave, reaching knowledge (in this case, the understanding of a part of the history of an ancient land) after journeying through the centuries, culminating in the welcoming peristyle.

This site uses Akismet to reduce spam. Learn how your comment data is processed.

Close
Close
Close