This ability to read the environment worked in all directions. When they designed the Bordeaux-Groult house in 1961 (The Architectural Forum 1965a, 1965b), in Guillola Bay, on the outskirts of Cadaqués where there were no other buildings, they organized a vast program (living room, library, seven bedrooms, etc.) across a series of volumes topped with sloping tiled roofs on the hillside overlooking the sea, in the canonical “regionalist” style. But it was also the style of Salvador Dalí’s house in a nearby cove in Portlligat (Lahuerta 1996, Granell 1996).
—
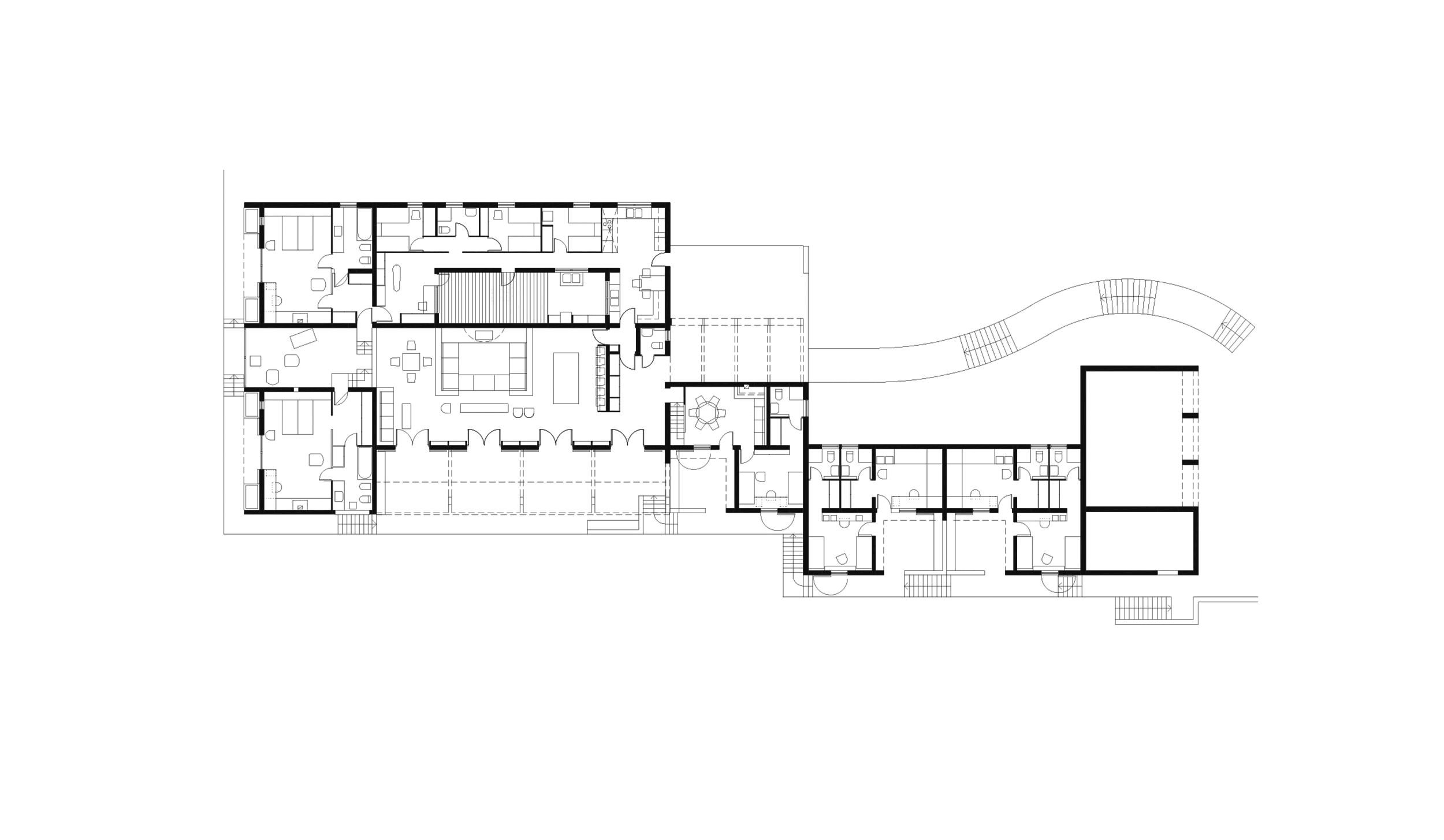
Situada al nord del nucli urbà de la població de Cadaqués, davant la platja de s’Alqueria Petita. Gran edifici aïllat de planta més o menys rectangular força allargada, fonamentat damunt la roca de la costa i distribuït en diversos cossos o volums adossats disposats esglaonadament.
Tot l’edifici s’estructura en una sola planta i presenta una escarpada escala de pedra que condueix directament al mar. El cos principal està situat a la zona més alta, és rectangular i presenta la coberta a dues aigües. Destaca una gran terrassa orientada al mar i la pèrgola situada davant la façana principal, oberta amb quatre finestrals.
La resta de volums presenten plantes quadrades o bé rectangulars, amb les cobertes a un i dos vessants. Les obertures presents a l’edifici són majoritàriament rectangulars i de mida mitjana, tot i que també n’hi ha de mig punt i altres finestrals de mida més gran.
La distribució interior de les estances és força destacable. Al cos principal hi ha la sala d’estar, amb una gran llar de foc central, al voltant de la que s’estructuren la resta d’habitacions. En els volums esglaonats hi havia, en origen, els dormitoris, agrupats de dos en dos al voltant de petits patis.
Els sostres interiors són plans i la major part dels mobles són d’obra. La construcció es troba arrebossada i emblanquinada. Cal destacar un passadís exterior que envolta l’edifici el qual es recolza damunt murs de pedra llicorella, que s’integren en el paisatge.















