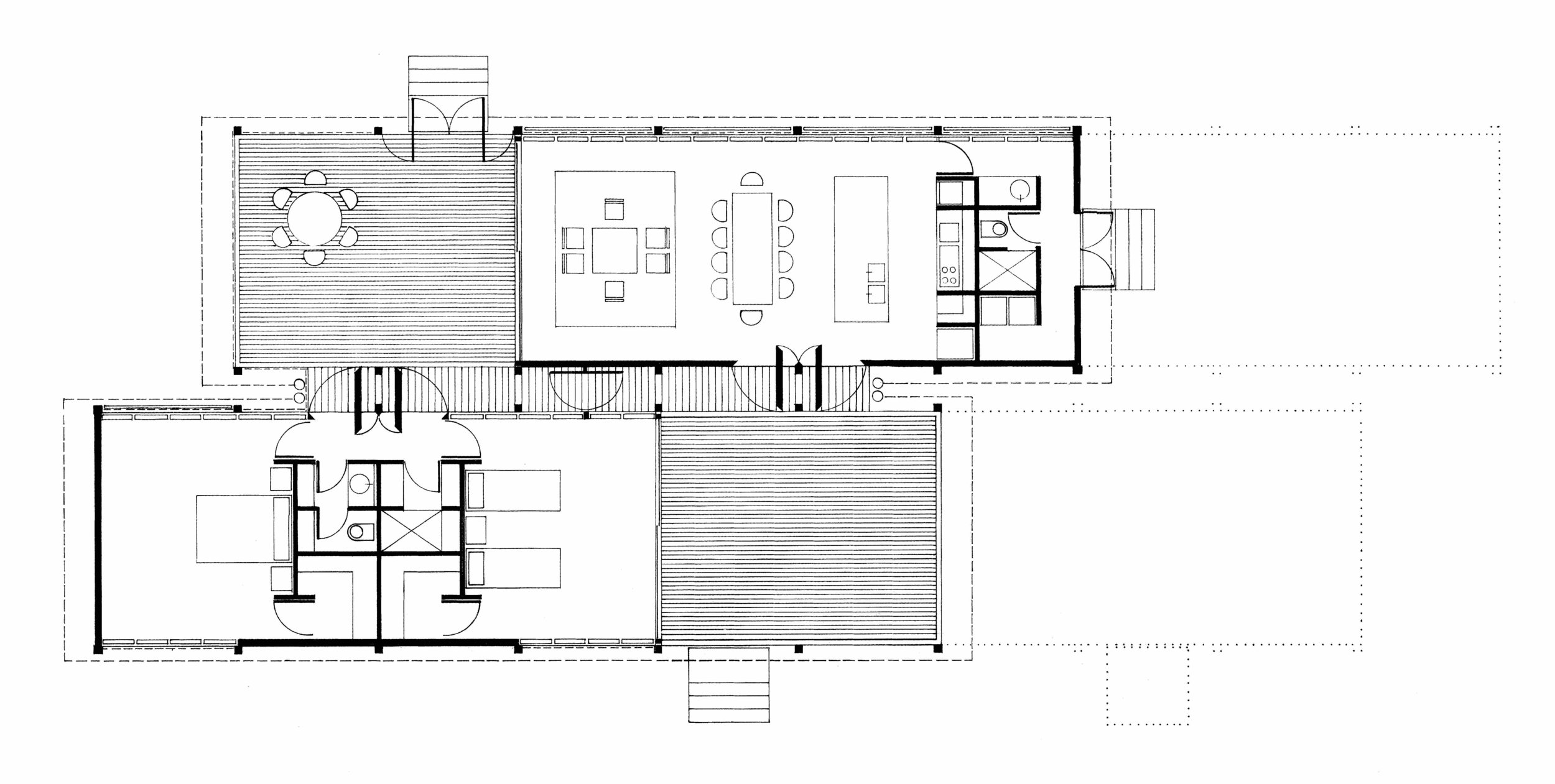
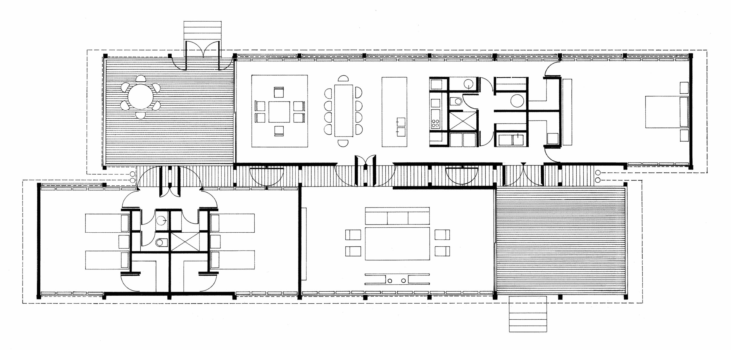
Located on farmland in northern coastal NSW the Marie Short House was designed in the 1970s, later purchased and altered by Murcutt in 1980. The 1974-75 house plan is disarmingly simple with two almost identical pavilions, rotated and slipped; one for sleeping, the other for living. Each pavilion is six, structural timber bays, the last two bays treated as an open entry porch. Between the two, a thickened wall implies an external corridor which links the porches and accommodates the collection of rain water. The strategy to repeat and distinguish the pavilions by function is extended to the kitchen and bathrooms where each functional component is individuated, repeated and grouped as a cluster of cells. The spatial contrast between the service and living zones heightens a sense of generosity in the larger rooms.
The orientation of the house and its articulation are conceived in relation to climatic considerations. The living pavilion faces north to receive sun for the majority of the day. Retractable metal louvers control levels of light and privacy and the glass louvers allow varying degrees of ventilation. This double layered system gives a high degree of personal freedom to orchestrate the building as an instrument, for both environmental comfort and aesthetic experience of the landscape. Climatic performance also drives the detailed resolution of the roof. Curved corrugated metal sheets overlap to provide horizontal ventilation slots. Doubling the layers calls attention to the immaterial edge and renders the building as a horizontal volume. This abstract treatment of the pitched roof form reinforces the conception of the house as a floating platform.


















