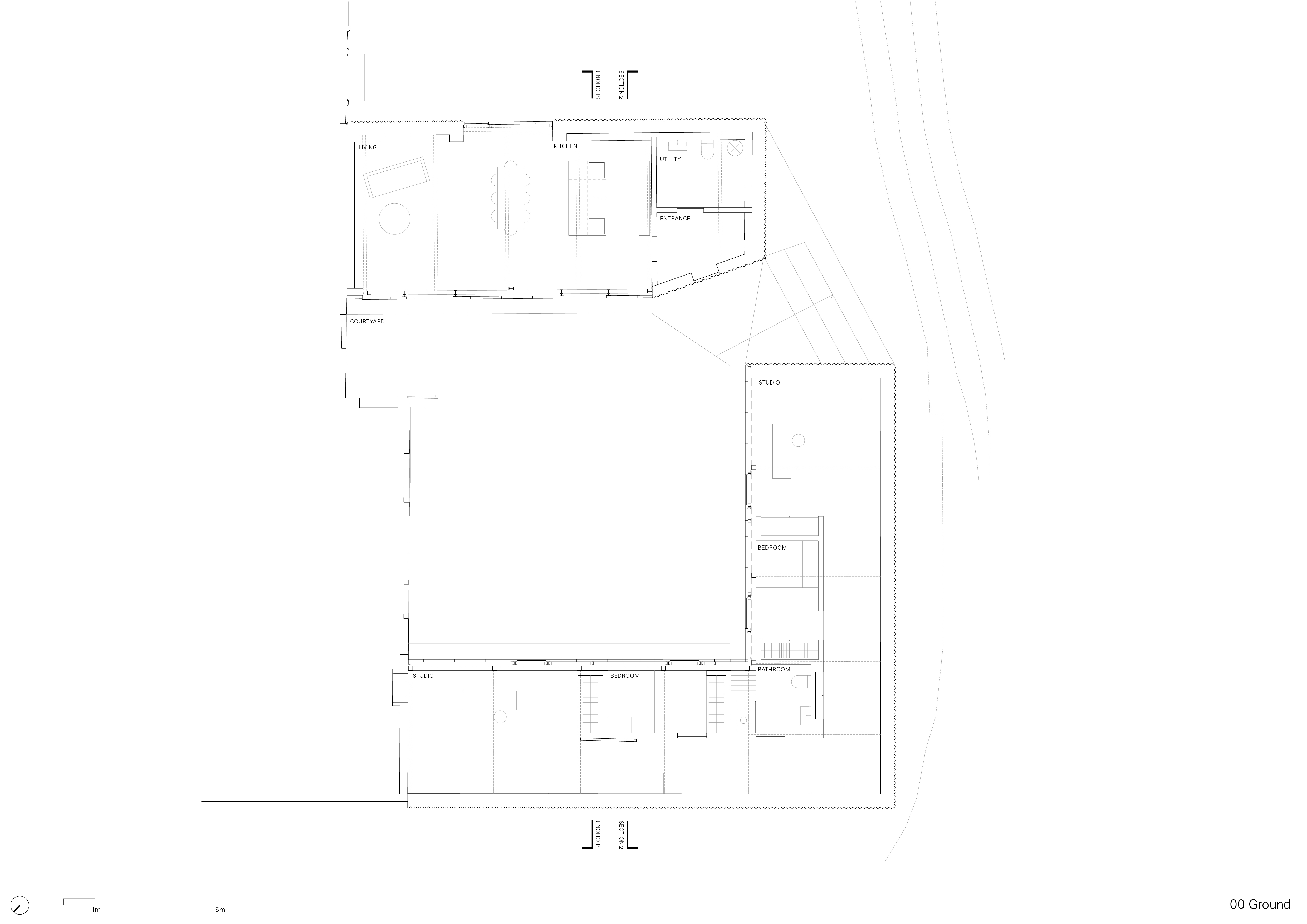
Set on a ridge amid acres of pasture above West Cowes, Isle of Wight, near shipyards and light industry, The Old Byre is a conversion of two farm buildings into a home that also affords residency and working spaces for visiting artists. Insulated and wrapped in corrugated cement board on the outside, the project leaves the interior of the old barns largely intact, prioritising retention over demolition.
Seen from the outside, The Old Byre appears indistinguishable from other farm buildings nearby. From the central courtyard on the other hand, where drift seeds and weeds grow in the cracks of the original surface and drains, a complex domestic exterior unfolds, framed by a translucent polycarbonate facade punctuated by large glazed aluminium doors which provide a separate entrance to each of the living and working spaces inside.
The two buildings that make up The Old Byre have been purposefully left disconnected. Daily life is animated by passages and crossings between private and social spaces, through the cool morning air, rain, summer heat. At night, the facade glows, intimating at activities on the inside. In the older barn, a house within a house has been built from spruce plywood. A back alley connects the more intimate, private interiors it harbours, tempered and modulated by full height doors without traditional handles or locks.
A concrete plinth supports the facade, frames the courtyard and continues into the interior, providing the connecting ground for the transformation within. Animals used to live here, now humans. The archetypes that animate the design of The Old Byre are the piazza, the archive, the sound of work and industry, the demand of the environment, the social, the sharing of food, and care.
With the aim was of reducing demolition as much as possible for both sustainability reasons, and to celebrate the character and history of the barns, the Old Byre retains everything of the existing structure that could be retained- foundations, brick and blockwork walls, timber and steel roof structures, and external slab, and creates a new, highly externally insulated space.
A polycarbonate skin wraps around the courtyard elevations providing light and views out through glazed aluminium framed doors. This low budget project uses an ASHP to provide heating and hot water through underfloor heating in the screed, and is all electric.
The exposed internal mass of walls and floors helps significantly to temper the environment simply by tuning the opening and closing of openings in the façade to the protected courtyard.




































