The competition for the interpretation center and auditorium of the subfluvial tunnel required the construction of a building, or series of buildings, that would resolve the entire proposed program (interpretation center and auditorium). As well as the creation of a new urban park that borders the city of Paraná. We believe in the transformative vocation of architecture. That is why we sought to create an architecture that would convert the existing reality into a better reality.
The first and most important decision was to separate the program into two buildings that articulate the route within the park, giving prominence to the building by maestro Mario Roberto Álvarez. These two buildings are located at the limits of the land, where the steepest slopes to be used are found. In this way, two architectural concepts were used there that always refer to the limit: the door and the threshold.
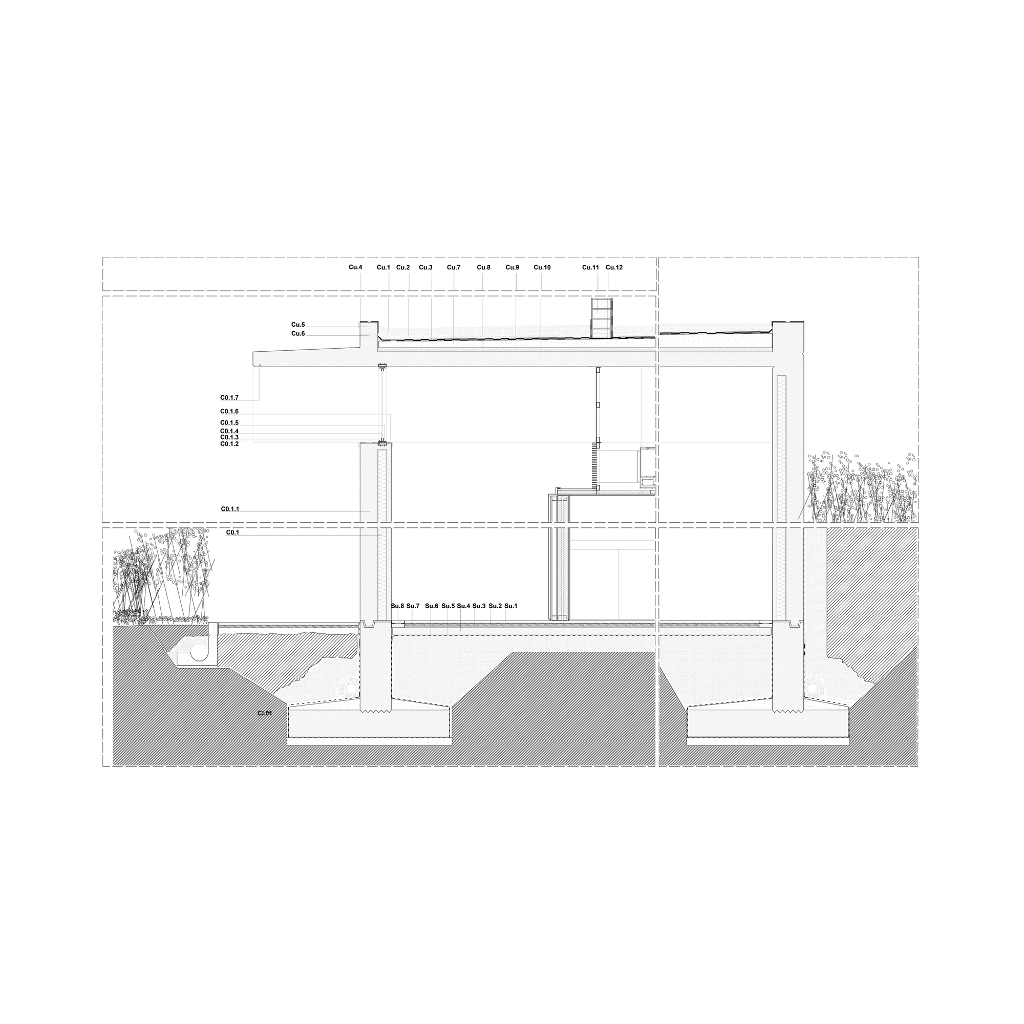
Through the creation of four walls, the interior voids are defined. The spaces are managed through the appearance of a series of boxes and a chest. These boxes contain the static uses of the program, preventing them from changing, freeing up the rest of the spaces for free interpretation. Both buildings are built in reinforced concrete, inheriting the construction technique with which Mario Roberto Álvarez built both edges. Here, a series of material images were borrowed that invaded our memory during the investigation, which defined the atmosphere to be built.
Through the laws that this material offers us, we work from the understanding of its limits. Therefore, two almost identical performances are created, through the repetition of walls and beams, which find their various singularizations when the topography, the existing vegetation or the program request it. Due to the country’s inflationary problems and the consequences of the pandemic, we have been able to build only the first stage of our proposal, which corresponds to the Interpretation Center.
La Puerta y El Umbral is an oppressive architectural proposal. A framework between both shores, which with a clear transformative vocation offers a reinterpretation of this fantastic place.

















































