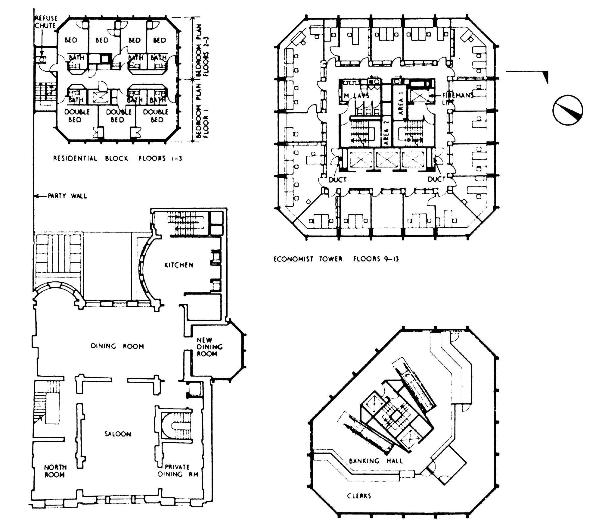
In 1959, the Smithsons were commissioned to design a new headquarters for The Economist magazine in Piccadilly. Inspired by the narrow lanes and courts of the old City of London, they created an elegantly spacious pedestrian plaza as a trio of finely detailed towers, each built on a different scale, clad in traditional Portland stone. The office interiors were based on their lengthy research into the working practices of The Economist journalists. At the opening the editor Sir Geoffrey Crowther said that the staff had felt “trepidation” on first meeting the Smithsons but took “leave of them now with awe and affection”.
SOM (Skidmore, Owings & Merrill) refurbished the complex in 1989 Their work encompassed alterations to the tower and plaza. The technical and environmental building control system were updated and the lobby area expanded to ease internal circulation.


















