La pequeña iglesia de Santiago se ha construido para atender a las necesidades pastorales del barrio de La Unión, situado a tres kilómetros del histórico lugar de Clavijo, en la zona donde la tradición sitúa el encuentro de los ejércitos en la batalla del mismo nombre.
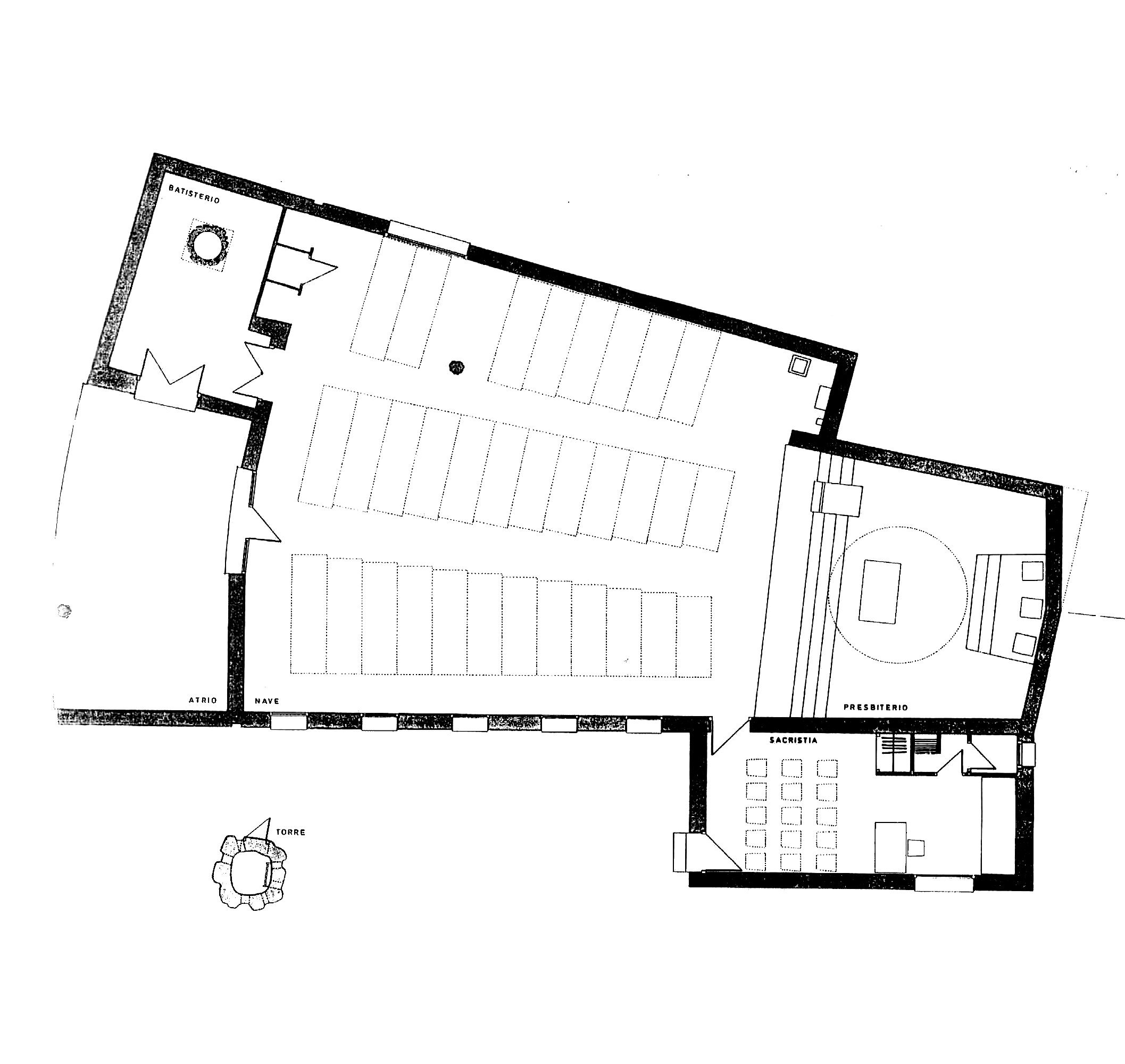
Se trata de una pequeña iglesia para unas 150 personas sentadas, y comprende de modo condensado al programa normal en una iglesia de este tipo. A saber: un espacio principal para la celebración del culto, un espacio secundario para la devoción privada y eucarística, una pequeña zona de sacramentos penitenciales (bautismo y confesión), un pequeño atrio, sacristía y campanario.
Consta el interior de un volumen con planta trapezoidal, y con cubierta ascendente hacia adelante, tendiendo todo ello a concentrar el interés en el presbiterio situado al fondo. Se acentúa esta misma intención por medio de una linterna cilíndrica que, colgando sobre el centro del presbiterio, subraya con su luz blanca cenital la importancia del altar como centro litúrgico fundamental. Colabora al mismo efecto plástico la solución dada a las cubiertas, tanto del volumen principal como del presbiterio, resuelta la primera por medio de una serie de bóvedas de ladrillo visto de doble curvatura que se despliegan en abanico apoyándose en el cordón inferior curvo de las vigas que enlazan el muro de entrada con la embocadura del presbiterio.
Incorporado a este volumen principal, y diferenciándolo por medio de un techo más bajo, se ha situado el espacio previsto para la reserva eucarística y la devoción privada de la misma. A los pies de ese espacio se sitúa el confesonario y el paso al baptisterio, quedando así el sacramento de la penitencia, por un lado, estrictamente apartado del espacio fundamental y vinculado al sacramento del bautismo (los dos son penitenciales), y quedando, por otro, situado en el mismo eje de la eucaristía para la cual es preparación.
El presbiterio, tratado con una modesta amplitud, comprende los elementos normales que requiere la celebración litúrgica: altar, ambón para la proclamación de la Palabra, y sede para el celebrante que preside.
Lo completa la imagen de una talla de Cristo crucificado en madera de su color sobre cruz de hierro.
El baptisterio, con entrada directa desde el patio, es de gran sencillez y su iluminación es cenital, como en el presbiterio.
La torre, de la que no se ha querido prescindir en este caso, no sólo por su valor funcional, sino también por su poder de signo, aunque de reducidas dimensiones en planta, ha sido cuidada de modo especial en su diseño, procurando que éste acentuará el ritmo vertical.
En el proyecto y realización de esta pequeña iglesia dos puntos han sido especialmente cuidados.
Es el primero el de su vinculación al ambiente que le rodea por medio, principalmente, de los materiales utilizados: muros de piedra rodada y hormigones con huella del encofrado de madera visto en dinteles, remates de muros, linternas y torre. El mismo material domina en todo el interior. Con la excepción de las zonas bajas de los muros y las bóvedas, que son de ladrillo claro, el hormigón visto es el material predo-minante, pues incluso se han hecho de este material todos los elementos que componen tanto el baptisterio como el presbiterio y aún parte de los elementos de iluminación.
El segundo aspecto cuidado ha sido el de la luz en el interior, que se ha estudiado procurando que sirva para diferenciar los distintos ambientes. Sobre el ambiente ligeramente dorado que prevalece en todo el volumen de la asamblea destacan la iluminación morada en la zona penitencial y la luz roja sobre el rincón de la eucaristía. El presbiterio, sin más luz que la de con un cierto efecto dramático, cae verticalmente desde la linterna cilíndrica y queda envuelta en los tonos grises del hormigón, sobre los que, en las cele-braciones, destaca el color litúrgico de la ropa de las vestiduras sacerdotales.






























