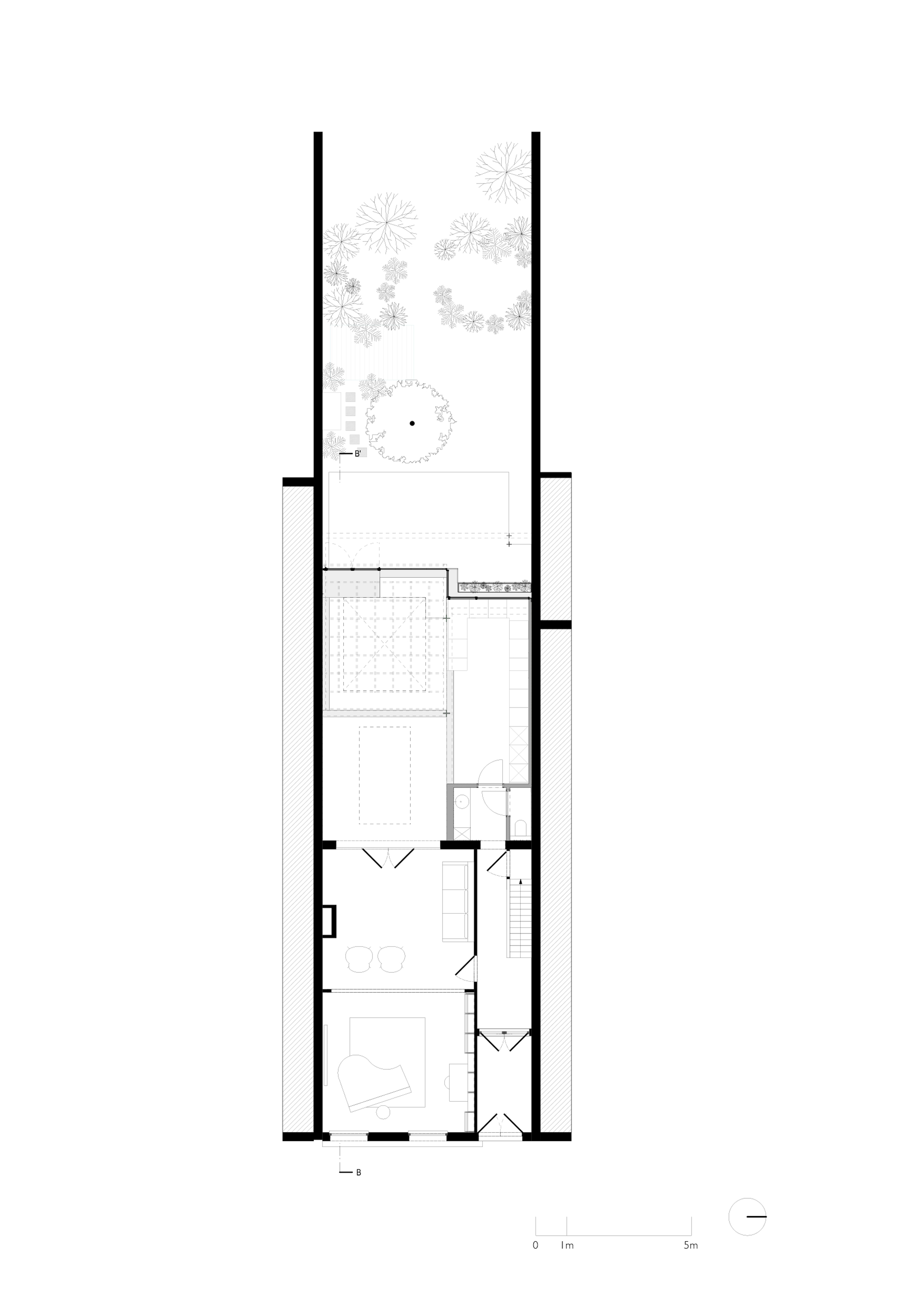
A spacious mansion in the Antwerp belle epoque district Zurenborg was renovated in 2 phases. Initially, the attic was transformed into children’s bedrooms and in the second phase the rear extension was replaced. Between these two phases, a gigantic bookcase was designed and built.
Everything in this house is grand. In the children’s attic, 3 bedrooms with mezzanine were organised behind a house-wide cupboard wall. What remains is a children’s lounge that is connected to the sleeping mezzanines via a large window on the cupboard.
On the ground floor, the well-known Flemish rear extension was replaced by a sober, elegant variant using recycled marble from the former Brussels North Station creating a monolithic sculpture in which benches, countertops and kitchen furniture come together.







































