Joan Arias + Luís Pérez de Vega + Luis Twose Appartment Building in Sant Quintí Street

Location: Sant Antoni Ma. Claret 286, Sant Quintí 47, BarcelonaYear: 1976Source: Pablo TwosePublished : El Croquis, número 3 (1982)Photography : José HeviaPhotography: Josep Armengol
Date: September 9, 2024 Category: Bcn

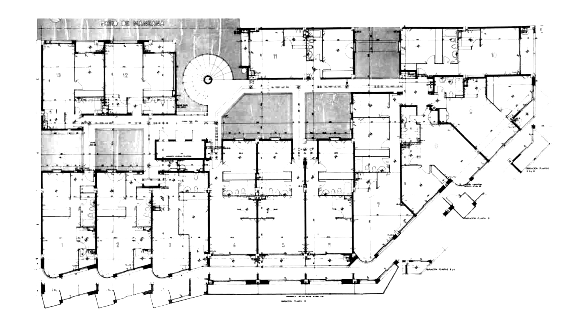
The building is part of a larger project that includes a set of houses and apartments that occupies one side of a block in the Eixample, between the streets of Industria and San Antonio Mª Claret, from which, due to the type of promotion, a part was segregated for furnished apartments for rent, maintaining unity with the rest in the façade and access to the parking floor.

 

The excessive building depth permitted in the planning of the Eixample in Barcelona leads to the appearance of numerous light wells. Usually, and for obvious economic reasons, these ventilation wells are treated as secondary elements that usually group around them the services of the houses and the easements that they entail (downpipes, installations of all kinds or smoke outlets). The scheme used in the project is inspired, in some way, by the typology followed in the Eixample at the beginning of the century: The light well understood as an organizing element of the building and that participates in the access route through integration with the hall, the staircase and the elevator.

 

The general organisation is based on the arrangement of the apartments around a central courtyard which is crossed by the access paths to the different apartments, and which, in general, is ventilated by the bedrooms, orienting the living rooms towards the outside. The desire to bring sunlight into this space led to the displacement of one of the apartments on the southwest façade, at the point closest to the geometric centre of the building, and to place the staircase there. This is treated as an autonomous element that allows the maximum passage of exterior light and, at the same time, acts as a visual opening that makes this internal space participate in the courtyard of the block.

Texto publicado en la revista El Croquis, número 3 (1982)
EL edificio forma parte de un proyecto más amplio que incluye un conjunto de viviendas y apartamentos que ocupa uno de los lados de una manzana del Ensanche, entre las calles Industria y San Antonio Ma Claret, del cual, debido al tipo de promoción, se segregó una parte destinada a apartamentos amueblados en régimen de alquiler, manteniendo con el resto unidad de fachada y de acceso a la planta de aparcamiento.

El programa, desarrollado por plantas, consta:
Sótano 2.°: Aparcamiento.
Sotano 1.9: Instalaciones, servicios generales (lavandería, almacén, taller) y locales comerciales.
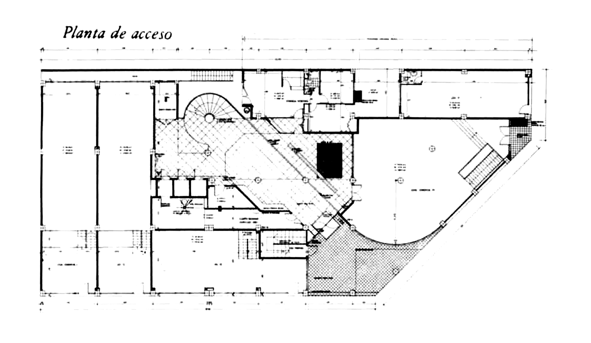
Planta Baja: Acceso, bar-restaurante, locales comerciales y cuartos de instalaciones.
Planta Entresuelo: Oficinas.
Seis plantas y ático: 87 apartamentos.

La excesiva profundidad edificable permitida en la ordenación del ensanche barcelonés comporta la aparición de numerosos patios de luces
Habitualmente, y por obvias razones económicas, estos patios de ventilación se tratan como espacios secundarios que suelen aglutinar a su alrededor los servicios de las viviendas y las servidumbres que comportan (bajantes, instalaciones de todo tipo, salidas de humos,etc.)

El esquema utilizado en el proyecto se inspira, de alguna manera, en la tipología seguida en el Ensanche de Barcelona de principios de siglo: El patio de luces entendido como elemento ordenador del edificio y que participa del recorrido de acceso mediante la integración con el vestíbulo, la escalera y el ascensor.

La organización general se plantea a través de la disposición de los apartamentos alrededor de un patio central que va siendo atravesado por los caminos de acceso a los diferentes apartamentos, y al que,en general, ventilan los dormitorios, orientando las salas de estar al exterior. La voluntad de hacer llegar el sol a este espacio llevó a desplazar uno de los apartamentos de la fachada suroeste, en el punto más cercano al centro geométrico del edificio, y colocar allí la escalera. Esta se trata como elemento autónomo que permita el máximo paso de luz exterior y, a la vez, actúe como apertura visual que haga participar este espacio interno del patio de manzana.

El patio central así definido se configura como un espacio muy iluminado, en el cual la claridad de volúmenes viene recalcada por el uso insistente de azulejo blanco 15 x 15 como material de revestimiento en todos los paramentos a excepción de los elementos más singulares:

De circulación vertical:
— Caja de ascensores (azulejo negro).
– Escalera (carpintería color rojo).

De circulación y acceso por plantas:
– Puertas apartamentos (color amanllo).
– Canal industrial BJC para ilumina-
cion y transporte de instalaciones
(color azul).

El edificio se concibe, visto desde el exterior, de una forma deliberadamente hermética como respuesta a un entorno poco favorable (falta de asoleamiento, ruidos, etc…). Los huecos son indiscriminadamente iguales, tanto para estancias como para dormitorios, buscando una envolvente que lo cubra todo, lo cual se ve favorecido por la introducción de las galerias-terraza que actúan además como filtro exterior-interior.

La envolvente se deforma en algunos puntos que se creen singulares.

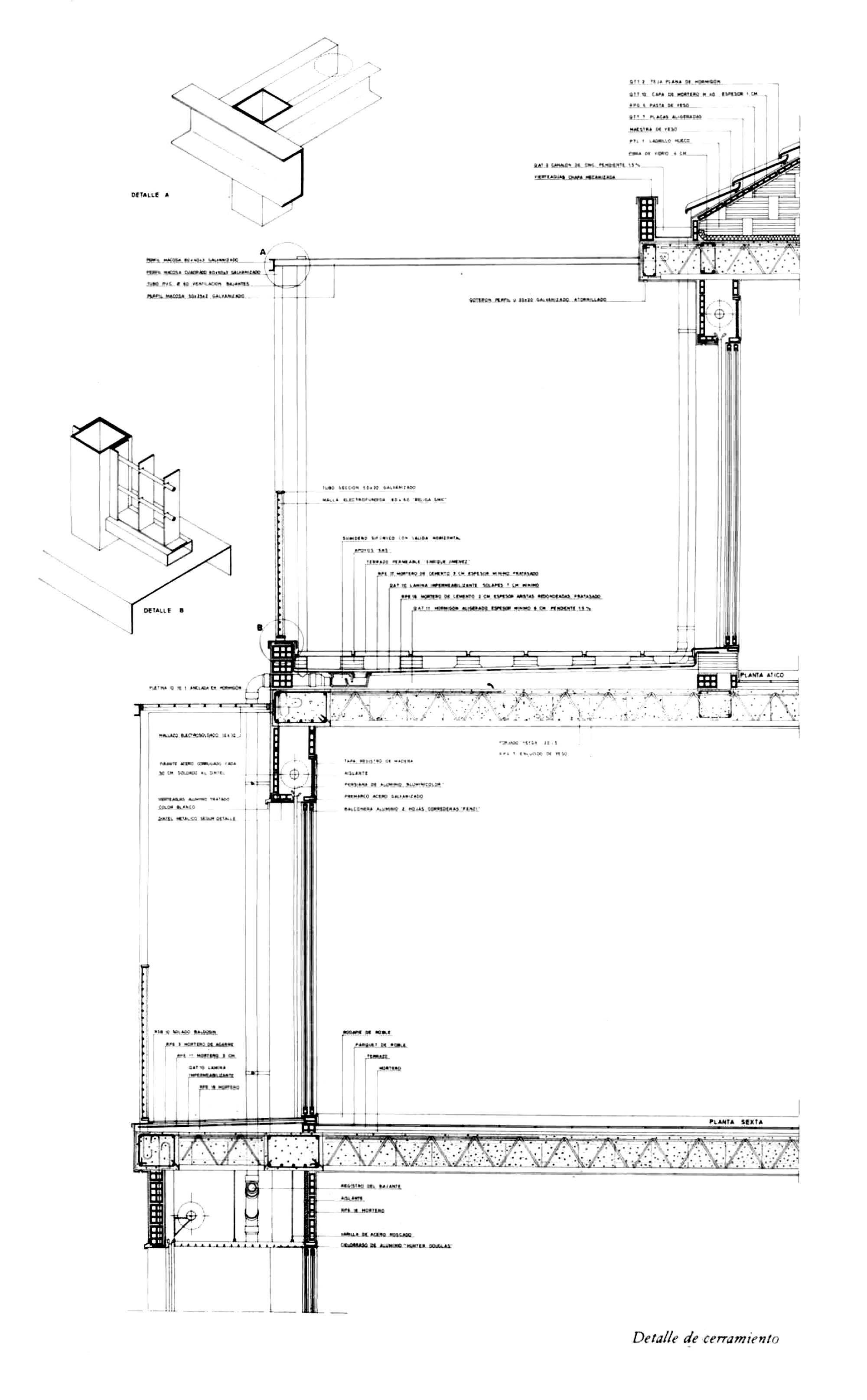
En general, tanto el sistema constructivo como los materiales empleados son, deliberadamente «vulgares», poniendo el acento en las posibilidades expresivas de éstos, las cuales intentan evidenciarse al máximo, aunque siempre subordinadas al orden generador del edificio.
La estructura realizada utiliza uno de los sistemas habituales en la actualidad: Hormigón armado en pilares y jácenas planas, forjado de viguetas semirresistentes y bovedillas cerámicas.
Los cerramientos exteriores se componen de:
– Revoco y posterior pintado liso, color verde claro, sobre muro de ladrillo doble hueco en paramentos ciegos.
– Persianas de aluminio, color verde, en huecos.
– Ventanas y balconeras correderas de aluminio anodizado.
– Carpintería de aluminio prepintado en galerías circulares.
– Barandillas superiores de emparrillado electrofundido industrial, galvanizado y pintado.
– En patios, alicatado blanco 15 x 15 cm. Pasamanos metálicos en barandillas y cerramientos de lamas orientables, tipo Llambi, en huecos de carpinteria de aluminio.
– Cubierta de patios mediante estructura tubular metálica que soporta planchas «standard» de plástico celular Plexi.
– Escalera circular metálica, diámetro de 4 metros, sustentada por medio de un pilar circular central, de 60 cm de diámetro, de hormigón armado, con encofrado metálico perdido de espesor 6 mm. Sobre este pilar se van soldando los peldaños de chapa mecanizada en forma de Z, recubiertos de goma estriada negra. El cerramiento exterior, de láminas de vidrio armado, se sustenta sobre perfiles verticales soldados a los extremos de los peldaños, que, a la vez, hacen trabajar solidariamente los distintos tramos de escalera.

This site uses Akismet to reduce spam. Learn how your comment data is processed.

Close
Close
Close