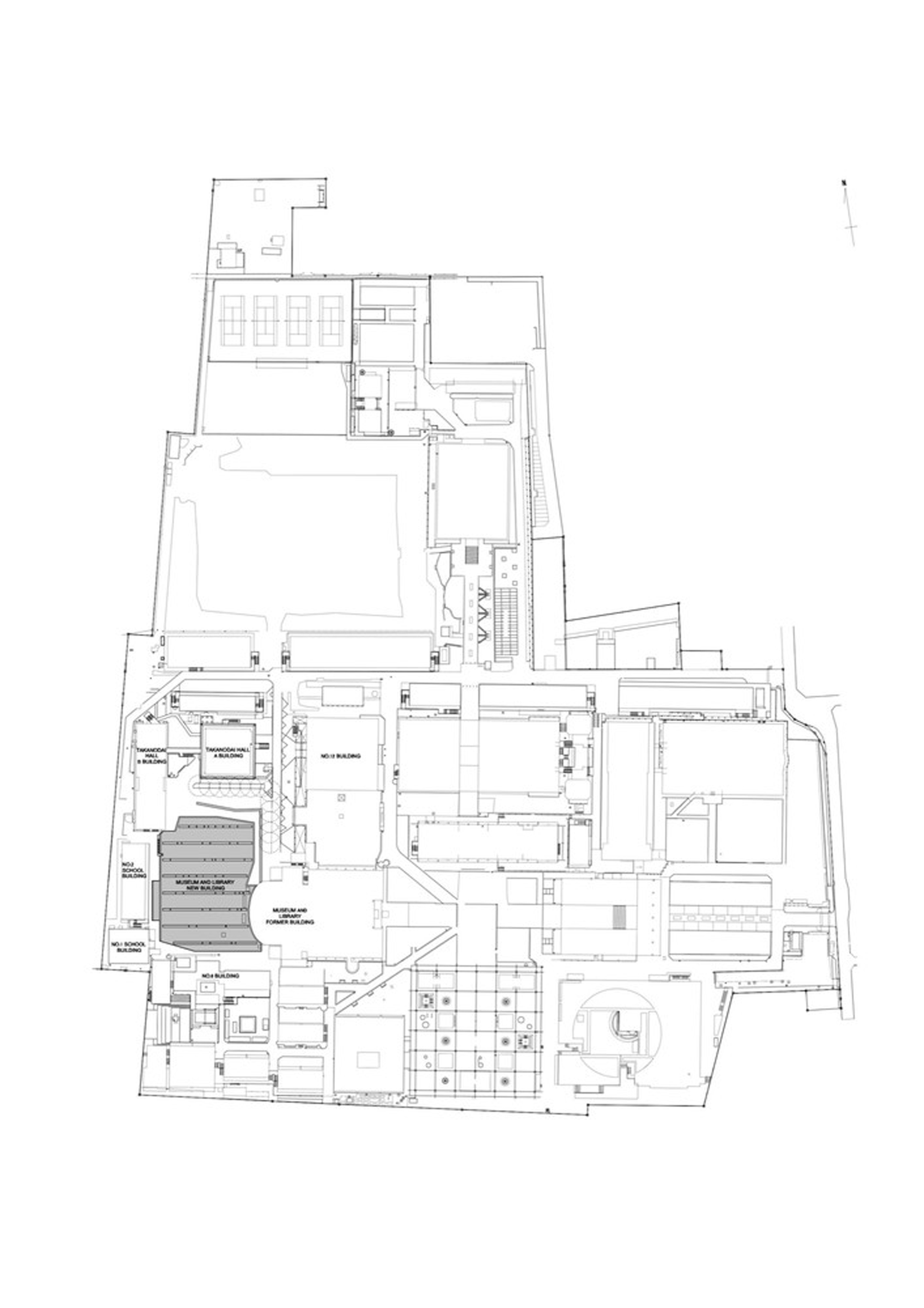
Sou Fujimoto Musashino Art University Museum and Library

Source: Sou Fujimoto Photography: Daici AnoLocation: Tokyo, JapanYear: 2011Originally posted: 12.04.2011
Date: August 21, 2024 Category: Archive

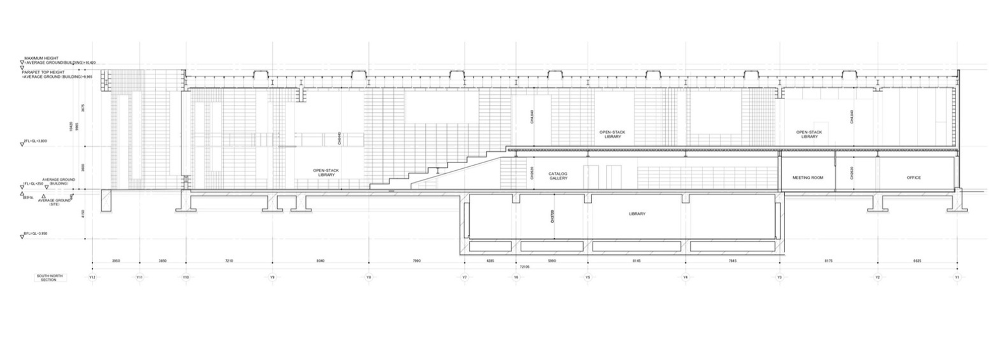
Acting as a huge ark, a total of 200,000 units, of which 100,000 will be in an open-archive, while the other half, within a closed-archive, rests within this double-storey library of 6,500㎡ in floor area. It is a library made from bookshelves.

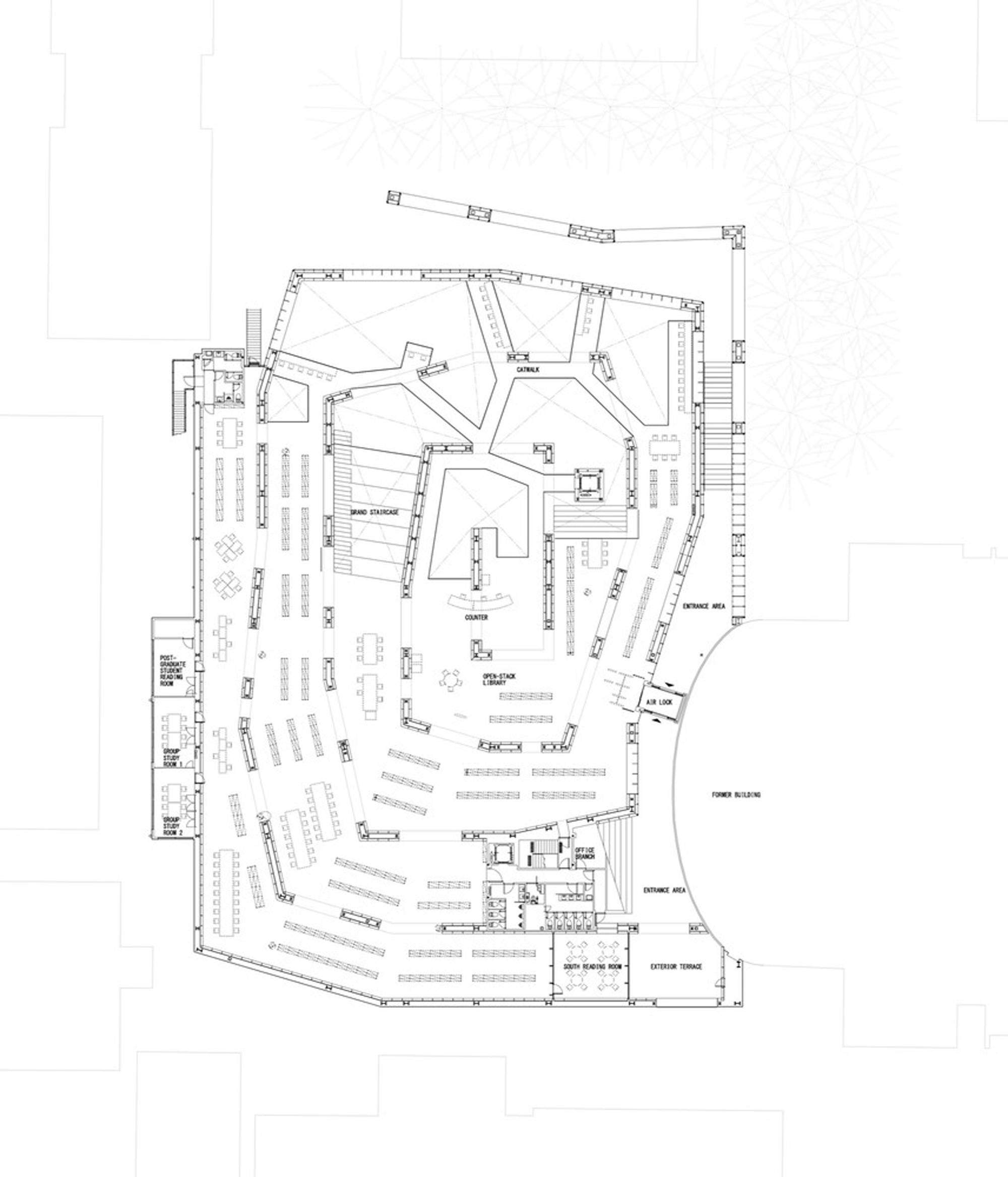
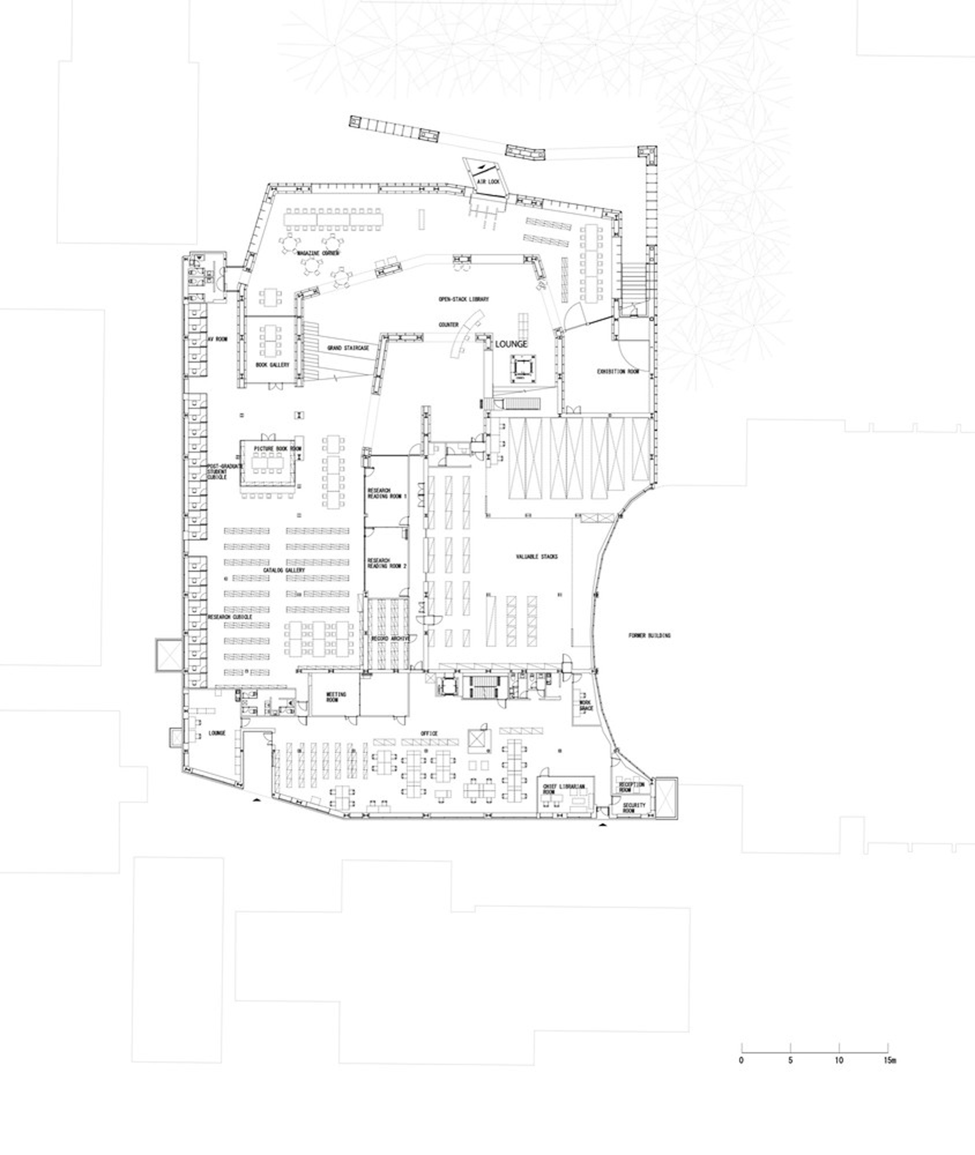
When I thought of the elements which compose an ultimate library, I imagined books, bookshelves, light and the atmosphere. I imagined a place encircled by a single bookshelf in the form of a spiral.

The domain encased within the infinite spiral itself is the library. An infinite forest of books is created from the layering of 9m high walls, punctuated by large apertures.

This spiral sequence of the bookshelf continues, eventually wrapping the periphery of the site as the external wall to allow the external appearance of the building to share the same elemental composition of the bookshelf as the library.

One’s encounter with the colossally long bookshelf, within the university landscape, registers instantaneously as a library, yet astonishing in its dreamlike simplicity. It is the library most library-like and the simplest library.

3 Comments

  • Cheap Viagra Online October 14, 2011

    nunca me hubiese imaginado un diseno tan asombroso como, este, esque no hay palabras para describirlo, simplemente maravilloso…

    Reply
  • Anonymous April 13, 2011

    asombroso simplemente asombroso….

    Reply
  • ikiruxxi April 12, 2011

    Absolutamente increible¡

    Reply

This site uses Akismet to reduce spam. Learn how your comment data is processed.

Close
Close
Close