The Norrköping Villa was designed by Norwegian architect Sverre Fehn in 1963-64 as a model architecture for an ideal family of four. The 150 m2 house was designed for the exhibition NU 64 and it is a project which was not intended specifically for its building site in Norrköping, but conceived to be independent of any plot, an autonomous architecture responding only to its own internal rules.
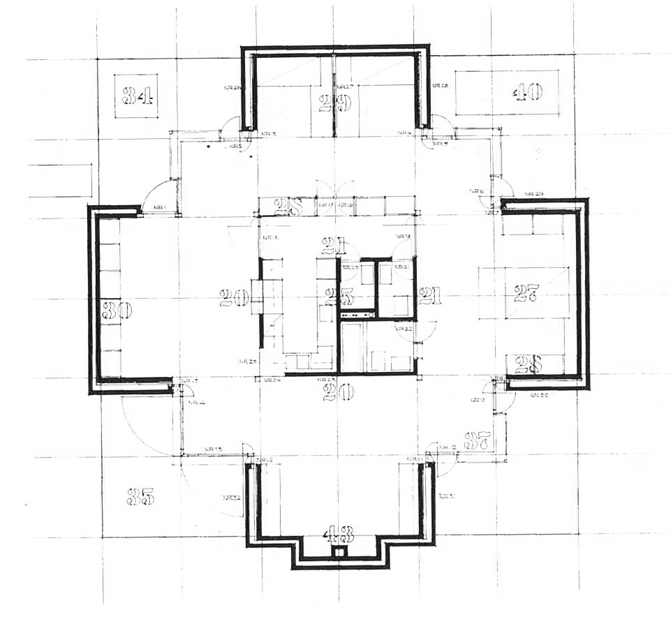
The plan is cross-shaped and symmetrical with a central square core hosting services, bathrooms, toilets, kitchen and storage spaces and a second square, without any specific function, surrounding it. In the middle of the four edges of the second square are four “c-shaped” walls which can host the private rooms or be left open and empty in continuity with the central open area. The exterior c-shaped walls are made of bricks while all the corners are glazed with a massive wooden frame. The flat roof covering the central area is lifted to let the light enter the central core. This exercise in symmetry, geometrical control, plan organization based on the module of the square is said by the architect to have been inspired by the architectural principles Palladio developed in his villas.




























4 Comments
Una obra brillante y de gran calado en la trayectoria de Sverre Fehn.
Les recomiendo el siguiente enlace:
https://www.academia.edu/11109295/El_Laberinto_espacio_simb%C3%B3lico_en_la_arquitectura_de_Sverre_Fehn
Una casa explosionada sempre és una bona idea. Un projecte certament interessant (i per sí sol; la referència palladiana és evident però ni tan sols és necessària per justificar-lo… la materialització és molt més brillant que la poesia barata de la memòria del projecte).