La Sierra de O Courel es un lugar especial, conserva unas características que han ido desapareciendo por el avance del desarrollo y la uniformización de todos los espacios naturales o transformados y habitados. O Courel conserva otro tiempo, otros olores, otros colores, una vegetación excepcional y algunas aldeas casi sin alterar y la de Paderne es una de ellas. En un un paisaje excepcional encuentran un antiguo palleiro con una construcción torpe en su parte alta. Se derriba lo nuevo y se conservan los gruesos muros de piedra sobre los que se construye una estructura de madera. Abajo los dormitorios y arriba el estar para mirar el espectáculo topográfico y de vegetación con el recuerdo lógico de la casa Dominguez de Sota. Los muros de mampostería cobijan con su grosor a los dormitorios y la estructura de madera al estar, mostrándose ambas formas de hacer y construir. La vivienda no tiene intención de esconder nada, todose evidencia. La planta superior se adapta a cada rincón y sabe subir o bajar para solucionar pequeñas diferencias y aprovechar todos los espacios.
Arriba la estructura de madera que se repite con pequeñas variaciones y se va deformando al ritmo de la traza de los muros, se exhibe y se acompaña de más madera: por dentro y por fuera. Abajo la madera forra y da calidez a los espacios compactos y compartimentados de dormir. Arriba un espacio abierto y un gran hueco arriba.
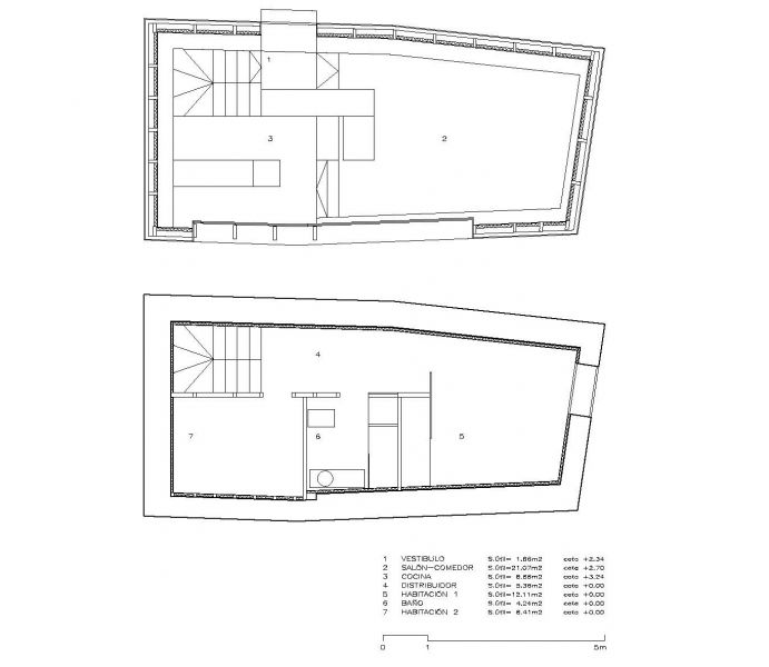
La vivienda se dispone en una espiral a la que se accede desde un punto intermedio y tiene su punto más alto en la cocina y el más bajo en los dormitorios. El espacio continuo de la planta alta se fragmenta con dos cambios de altura que consiguen una cierta privacidad en la entrada para luego mostrar la contundencia del paisaje. El espacio es tan pequeño que cualquier fragmentación provocaría una suma de pequeñas dependencias y el trabajo ha estado en mostrar unos límites en el uso que no se acompañan de límites físicos. La casa, con unas dimensiones mínimas, aprovecha al máximo cada rincón y dejan a la altura de su sección una generosidad y amplitud que se hace cómoda y que la dota de una cierta grandiosidad en su uso.
La vivienda se realiza con una estructura de madera laminada montada sobre la mampostería de piedra y con una estructura horizontal realizada, también, en madera. Hacia el exterior una cubierta que recupera las pizarras de la antigua edificación para conservan sus grandes dimensiones y la textura rugosa que poseían y las fachadas de madera de castaño que es la que se ha usado en la zona. Al interior dm pintado colocado entre la estructura para que esta se pueda ver. Si bien la construcción recorre a los materiales tradicionales la abstracción les dota de una nueva mirada con la rotundidad de los cambios de plano entre cubierta y fachadas.

















