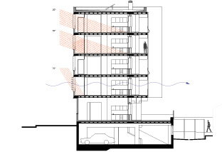
Se trata de un proyecto de veintisiete viviendas para jóvenes resultado de un concurso organizado en 2003 por la Generalitat de Catalunya y el COAC para arquitectos menores de 40 años. El programa pedía 6 viviendas por rellano: 5 para 1 o 2 personas de 40m2 útiles y una para 2-3 personas de 50m2 útiles. Las viviendas resultantes son 5 de 44m2 útiles y una de 51m2 útiles. El edificio se ubica en un solar trapezoidal en el barrio barcelonés de Sant Andreu.
Nuestra aproximación al proyecto fue comenzar desde adentro hacia afuera, prestando especial atención a las cualidades espaciales del interior, un aspecto, al que creemos que no se le presta la atención suficiente en vivienda social hoy en día.
Entendemos los lugares de transición entre interior y exterior como limites gruesos. Estos límites están compuestos por intersticios amortiguadores de pequeña escala, que le dan a la vivienda una mayor variedad de espacios.
Tanto la ventilación natural, como la abundante luz natural en todos los espacios, están garantizadas por la distribución interior y por disponer todas las unidades de dos fachadas opuestas abiertas. Aprovechando el clima mediterráneo, la entrada a los apartamentos se realiza mediante una calle elevada en la parte posterior del edificio que mira hacia un típico patio interior de manzana barcelonés.
La cocina y el lavabo se colocan adyacentes a esta fachada, mientras que la zona principal de estar se encuentra en la fachada sur-este opuesta, con el fin de cumplir con el decreto local de eco-eficiencia. Este decreto pide que el 80% de las viviendas dispongan de al menos una hora de sol directo en la sala de estar de 10:00 a 14:00 en el solsticio de invierno.
Funcionando como amortiguador entre la calle y el estar y recuperando una tradición Barcelonesa, colocamos una pequeña galería en el extremo sur del estar. Ésta galería se genera entre dos superficies vidriadas y funciona como captador solar pasivo en el invierno. En verano, debido a la verticalidad de la incidencia solar, abriendo las lamas vidriadas exteriores y cerrando las puertas plegables interiores, la galería se transforma en un balcón.
Adyacente a la sala de estar y separada por dos grandes puertas corredizas, se encuentra la habitación. Hacia la fachada de la calle se encuentra un espacio alcoba generado por la profundidad de la galería. En este espacio una ventana de dimensiones más reducidas, con lamas orientables filtra la luz de sur según las necesidades del usuario. La ventana se coloca en el centro del espacio para liberar las dos esquinas, con el fin de poder colocar armarios o escritorios a ambos lados. Este espacio puede usarse también como rincón para dormir, y así disponer del resto de la habitación para otros usos.
La habitación conecta con el lavabo, que queda separado de la calle elevada mediante un espacio amortiguador para lavar y secar la ropa. Este espacio cerrado por lamas de acero galvanizado y placas de fibrocemento, invade el ancho de la calle elevada, comprimiéndola en este punto y separando las viviendas del paso de personas. El acceso a las viviendas se da en los remansos de mayor profundidad que se generan entre lavadero y lavadero.
Estos remansos o ampliaciones de la calle pública, se convierten en pequeñas terrazas exteriores. Se encuentran adyacentes a la cocina, y pueden ser apropiados por los inquilinos como extensión del apartamento, favoreciendo la interacción social y la idea de comunidad.
El muro que separa la cocina de la calle pública, alberga todas las conducciones verticales del edificio con el fin de ser fácilmente accesibles para mantenimiento, pero también para dar una profundidad exagerada a la ventana que comunica el interior con el exterior. El alfeizar de esta ventana de guillotina se convierte en una bandeja de acero galvanizado de 60cm de ancho, pudiéndose usar para pasar y colocar comida o bebidas directamente de la cocina a una mesa en el exterior.
Debido al bajo coste de construcción y que las viviendas son en régimen de alquiler, los materiales elegidos son lo más duraderos y económicos posible, trabajados de manera que resultaran lo más simple y fácil de ejecutar.
Se consiguó una altura libre en todos los espacios de todos los apartamentos de 2,70m.
Los suelos son de terrazo pulido, los forjados de prelosa de hormigón pintada y la estructura de hormigón pintada, las divisorias de cartón yeso y la cerrajería es en acero galvanizado.





















