Jordi Garcés + Enric Sòria Rehabilitación Capilla Hospital para Escuela de Pintura Mural

Source: Garcés de Seta BonetArchitect: Jordi GarcésArchitect: Enric SòriaPhotography: Lluís CasalsLocation: Sant Sadurní d'Anoia, Barcelona, SpainYear: 1987
Date: June 3, 2024 Category: Classic

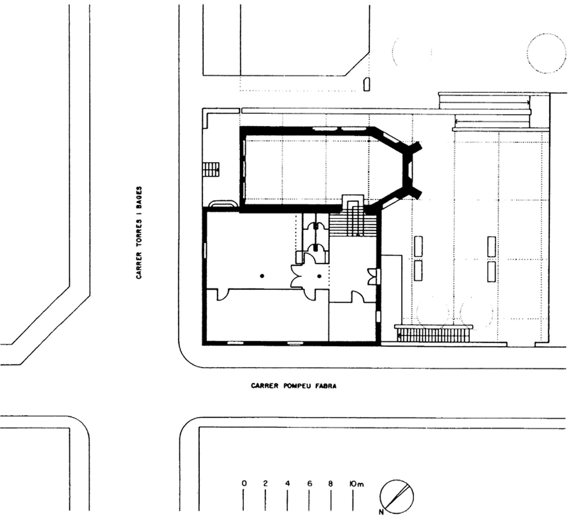
Sobre un edificio inacabado, de 1884 y que tenía que ser el Hospital de Sant Sadurní d’Anoia, se ha intervenido para reconvertirlo en Escuela de Pintura Mural y Escuela de Artes y Oficios.

La nave de la capilla, núcleo central del antiguo proyecto, era muy apropiada para su utilización como taller de prácticas de los muralistas. El edificio anexo de muy poco interés arquitectónico, mal estado y con muchas alteraciones por sus destinos sucesivos, podía alojar las aulas y servicios de los dos centros, por lo que se procedió al derribo y sustitución de todos los forjados interiores.

La obra nueva aparece en el exterior como la irrupción de las ventanas actuales que se interfieren, a su aire, con el antiguo orden, sellado por una labor previa de macizado del conjunto que resalta el compacto de la fábrica original. Esta característica es posiblemente la principal calidad de lo existente.

Con la prolongación de una de las vertientes de la cubierta de la nave de la capilla se busca la correcta iluminación de su interior. Esto acentuó el contraste entre los dos insólitos volúmenes que componen el conjunto.

Los añadidos de mármol blanco pretenden subrayar el involuntario tono de obra inacabada que el conjunto de piedra irregular ya tiene de por sí y convertirlo en afirmación. Con el trazado de los dos tramos de escalera, uno por el patio posterior y el otro asomando en la capilla, se obtiene un recorrido de un cierto interés visual en cada un de ellos.

This site uses Akismet to reduce spam. Learn how your comment data is processed.

Close
Close
Close