
MAM, Modern Art Museum / Rio de Janeiro / Affonso Eduardo Reidy
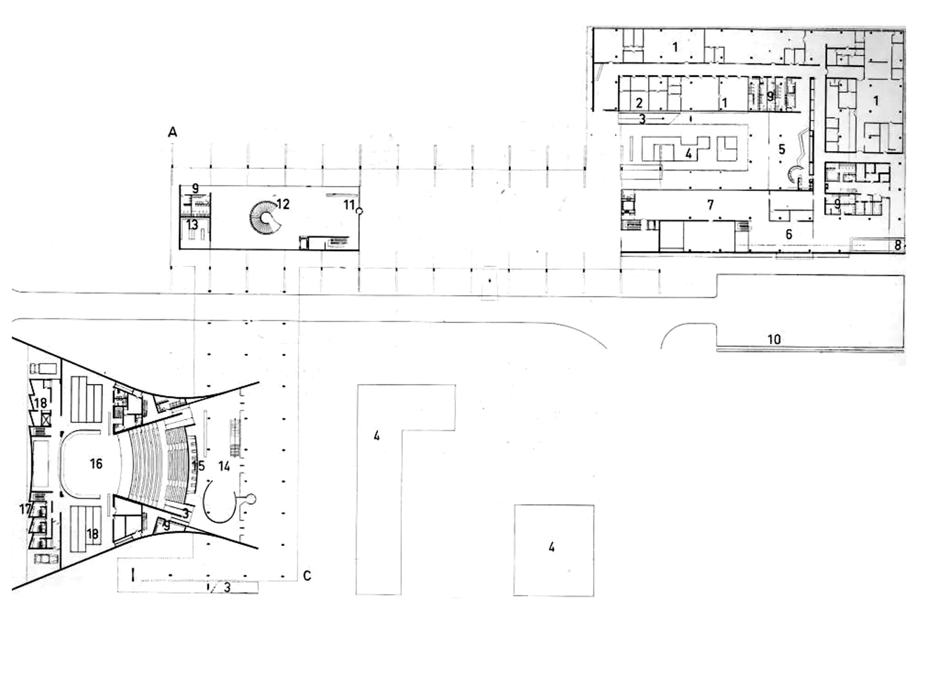
The scope of this museum is not just limited to art exhibitions and conferences. The intention was rather to develop an arts center that will include the museum itself, a school with lectures and work spaces, and a theater that seated 1,000 people for concerts, plays, classical ballets, film exhibitions and conferences. It is located in the bay of Rio de Janeiro, on land reclaimed from the sea with the devastation of the “hills”, as part of an urban planning on the coast of Rio that is carried out under the direction of Roberto Burle Marx.
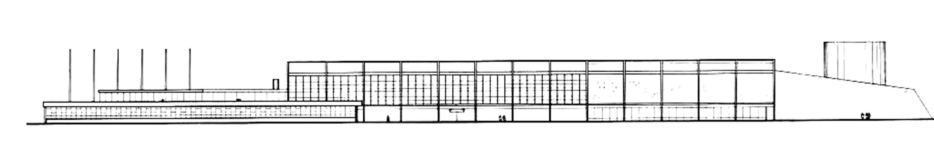
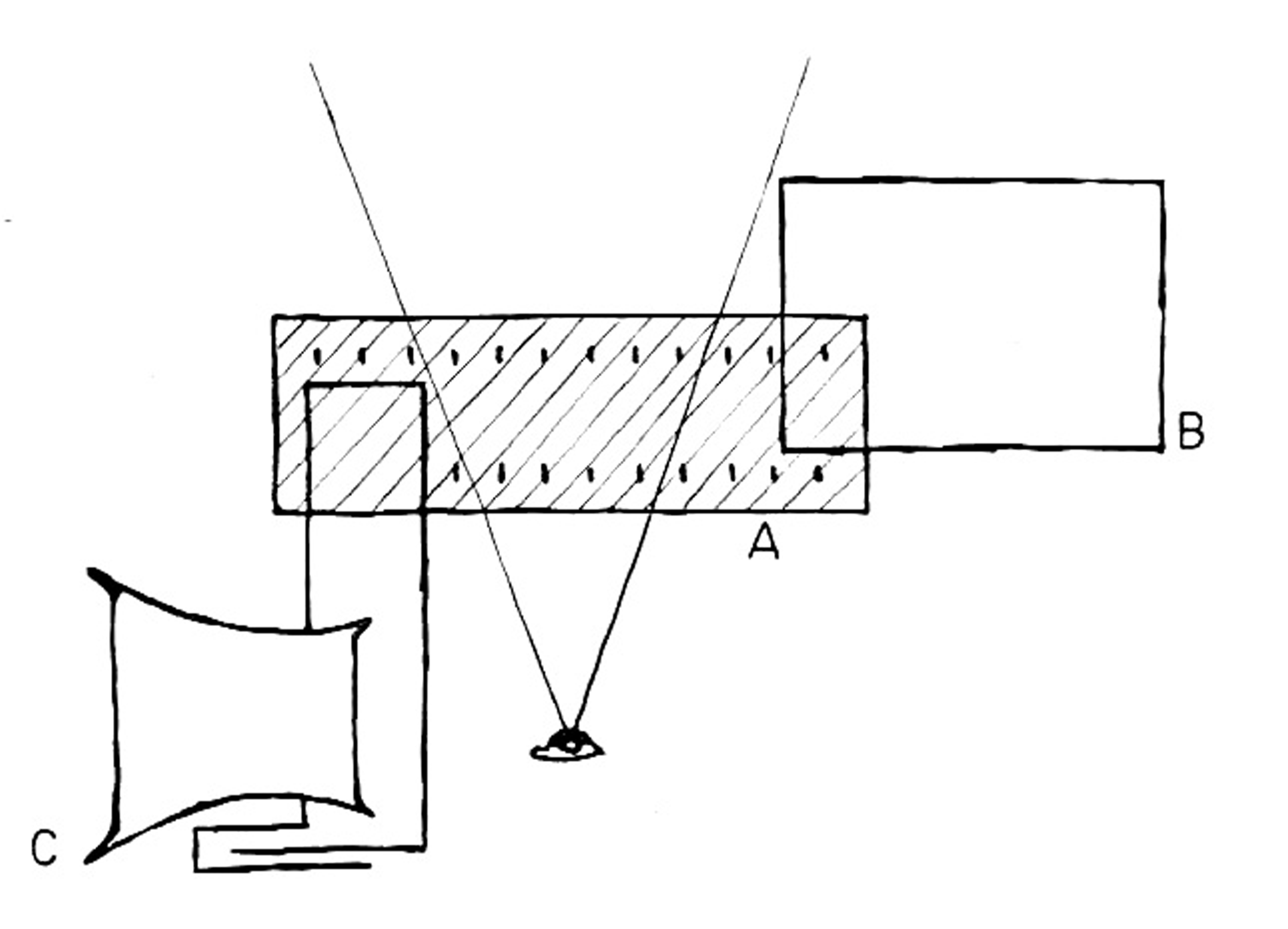
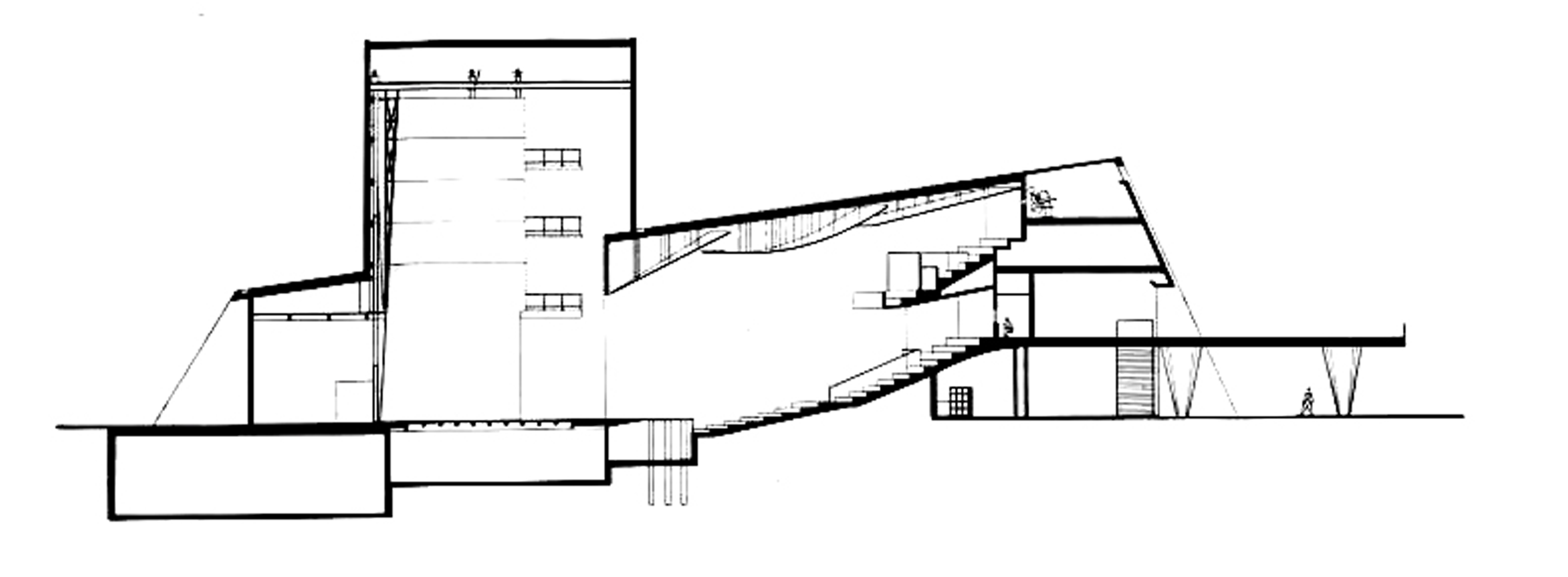
This new land must also be the site of a large public park surrounding the museum. Ordering a splendid view of Guanabara Bay and put in front of the city skyline, with the rebellion of mountains in the background, the position is of exceptional beauty and within easy reach of the city. The project shows a tendency to harmonize with the architectural background, accentuating the contrast with the horizontal line of undulating mountains. A striking feature of the design of the main building is the series of external framework, joined by longitudinal beams, providing both the suspension of support for the floors. Apart from the lobby, the floor is completely free so that the view of the sea is virtually uninterrupted.


MAM, Modern Art Museum / Rio de Janeiro / Affonso Eduardo Reidy

©Filippo Poli

MAM, Modern Art Museum / Rio de Janeiro / Affonso Eduardo Reidy

MAM, Modern Art Museum / Rio de Janeiro / Affonso Eduardo Reidy

MAM, Modern Art Museum / Rio de Janeiro / Affonso Eduardo Reidy

MAM, Modern Art Museum / Rio de Janeiro / Affonso Eduardo Reidy

MAM, Modern Art Museum / Rio de Janeiro / Affonso Eduardo Reidy

MAM, Modern Art Museum / Rio de Janeiro / Affonso Eduardo Reidy

MAM, Modern Art Museum / Rio de Janeiro / Affonso Eduardo Reidy

MAM, Modern Art Museum / Rio de Janeiro / Affonso Eduardo Reidy

MAM, Modern Art Museum / Rio de Janeiro / Affonso Eduardo Reidy

MAM, Modern Art Museum / Rio de Janeiro / Affonso Eduardo Reidy

©Filippo Poli

MAM, Modern Art Museum / Rio de Janeiro / Affonso Eduardo Reidy

MAM, Modern Art Museum / Rio de Janeiro / Affonso Eduardo Reidy

©Filippo Poli

MAM, Modern Art Museum / Rio de Janeiro / Affonso Eduardo Reidy

MAM, Modern Art Museum / Rio de Janeiro / Affonso Eduardo Reidy

MAM, Modern Art Museum / Rio de Janeiro / Affonso Eduardo Reidy

MAM, Modern Art Museum / Rio de Janeiro / Affonso Eduardo Reidy

MAM, Modern Art Museum / Rio de Janeiro / Affonso Eduardo Reidy

MAM, Modern Art Museum / Rio de Janeiro / Affonso Eduardo Reidy

MAM, Modern Art Museum / Rio de Janeiro / Affonso Eduardo Reidy

MAM, Modern Art Museum / Rio de Janeiro / Affonso Eduardo Reidy

MAM, Modern Art Museum / Rio de Janeiro / Affonso Eduardo Reidy

MAM, Modern Art Museum / Rio de Janeiro / Affonso Eduardo Reidy

MAM, Modern Art Museum / Rio de Janeiro / Affonso Eduardo Reidy

©Filippo Poli

MAM, Modern Art Museum / Rio de Janeiro / Affonso Eduardo Reidy

MAM, Modern Art Museum / Rio de Janeiro / Affonso Eduardo Reidy

MAM, Modern Art Museum / Rio de Janeiro / Affonso Eduardo Reidy

MAM, Modern Art Museum / Rio de Janeiro / Affonso Eduardo Reidy

MAM, Modern Art Museum / Rio de Janeiro / Affonso Eduardo Reidy

MAM, Modern Art Museum / Rio de Janeiro / Affonso Eduardo Reidy

MAM, Modern Art Museum / Rio de Janeiro / Affonso Eduardo Reidy

MAM, Modern Art Museum / Rio de Janeiro / Affonso Eduardo Reidy

MAM, Modern Art Museum / Rio de Janeiro / Affonso Eduardo Reidy

MAM, Modern Art Museum / Rio de Janeiro / Affonso Eduardo Reidy

MAM, Modern Art Museum / Rio de Janeiro / Affonso Eduardo Reidy
Other projects by Affonso Reidy