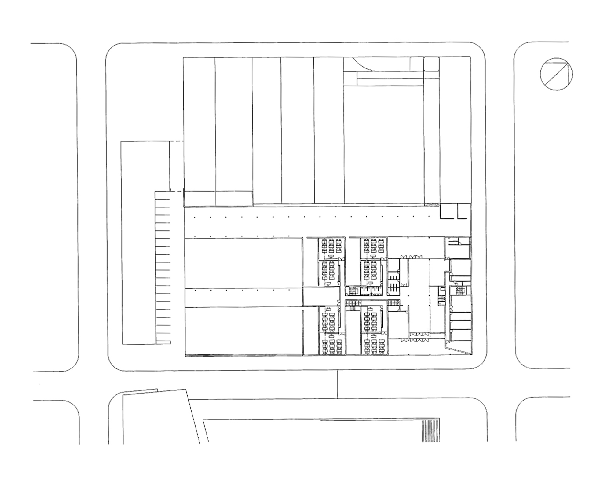
El solar forma parte de un sobrante de ordenación de bloques lineales dispuestos en hilera en el que los vacíos representan el negativo del espacio proyectado. La construcción actual de una plaza en fase de ejecución que ocupa parte de una manzana contigua constituye un paso a través de una sección escalonada en la recalificación de estos espacios y su reconversión urbana. La propuesta no es ajena a esta operación. El centro de EGB se apoya en la alineación del vial para construir la fachada norte de la citada plaza.
A través de una sección escalonada, el edificio recorre todo el frente de la calle, el cual partiendo de edificio existente, destinado a preescolar, va creciendo suavemente para alcanzar, en el extremo opuesto, una altura equivalente a dos plantas. El edificio se extiende por el solar a través de una planta compacta. En la parte posterior del solar, una plantación de coníferas salpicadas de ulmáceas crea un fondo verde, lo que constituye un límite posterior al proyecto.




















