En 1538, tras la Reforma protestante en Dinamarca, la iglesia de Bagsværd fue derribada por orden del rey para utilizar sus piedras en la rehabilitación del antiguo palacio del obispo donde se impartiría teología luterana. Cuatro siglos después, en 1969 comenzó por fin la construcción de una nueva iglesia.
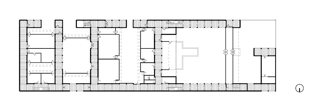
Situado en un barrio suburbano en el norte de Copenhague, el edificio muestra hacia el exterior una imagen hermética enmarcada por un conjunto de abedules cuidadosamente posicionados. Los materiales de fachada y cubierta —paneles prefabricados de hormigón y fibrocemento corrugado— enfatizan su carácter industrial, más cercano al de un granero agrícola que al de un templo religioso. El interior, en cambio, sorprende por su expresividad. Esta dualidad también se refleja en el contraste entre la planta y la sección. La rigurosidad cartesiana de la planta, distribuida en torno a patios rectangulares, se opone al dinamismo de la sección acotada por un techo que se pliega siguiendo directrices circulares. A través de una apertura longitudinal, situada en el punto más alto, la luz resbala por la superficie ondulada generando un espacio etéreo frente al altar. Como cuenta el propio Utzon, esta idea surgió en una playa de Hawái cuando, estando tumbado en la arena, observó cómo la luz atravesaba un cúmulo de nubes. Además de su carácter simbólico y sus propiedades plásticas, esta insólita bóveda refleja el sonido generando unas condiciones acústicas óptimas.
La construcción de la losa ondulada, de 15 centímetros de espesor, se llevó a cabo mediante hormigón proyectado in situ sobre una malla de acero, apoyada provisionalmente sobre un encofrado de madera que imprime su textura rugosa en la superficie interior. Las bandas laterales que soportan la losa están formadas por dos líneas de pilares de hormigón separadas entre sí 2,25 metros. Entre ellas se crea un pasillo de distribución perimetral que, además de permitir el acceso a los diferentes espacios, funciona como grieta de iluminación, ya que está cubierto por un tejado transparente a dos aguas.
El mobiliario, el órgano, las puertas e incluso la indumentaria eclesiástica fueron diseñados específicamente para este proyecto. El altar está formado por un sistema de piezas de cemento que definen tanto el podio como la mesa, el púlpito o los reclinatorios. El retablo, por su parte, se construye mediante ladrillos pintados de blanco que se disponen siguiendo un patrón triangular. Dentro de la misma gama, los acabados cambian según su función, lo que genera un ambiente cálido basado en la atención al detalle a pesar de la austeridad de los materiales.











































