Axel Vansteenkiste + Side by Side architects Ushimaru Restaurant

Architects: Axel VansteenkisteArchitects: Side By Side, architectsPhotography: Axel VansteenkisteLocation: Sammu, Chiba, JapanYear: 2023
Date: May 7, 2024

The Ushimaru restaurant is located in Sammu City, in the northeastern Chiba countryside, housed in a ‘European-style’ building, and surrounded by fields and agricultural land, from which many of their ingredients are sourced. The chef gathers the best ingredients from the surrounding land and nearby ocean, and dishes are served on handmade glassware, changing every day with nature and the seasons.

The client wished to enlarge the dining space and simultaneously add a new entrance, lounge and kitchen spaces, whilst also opening the previously introverted dining space to the view of the landscape. The project also included an overall renewal of most interior finishes.

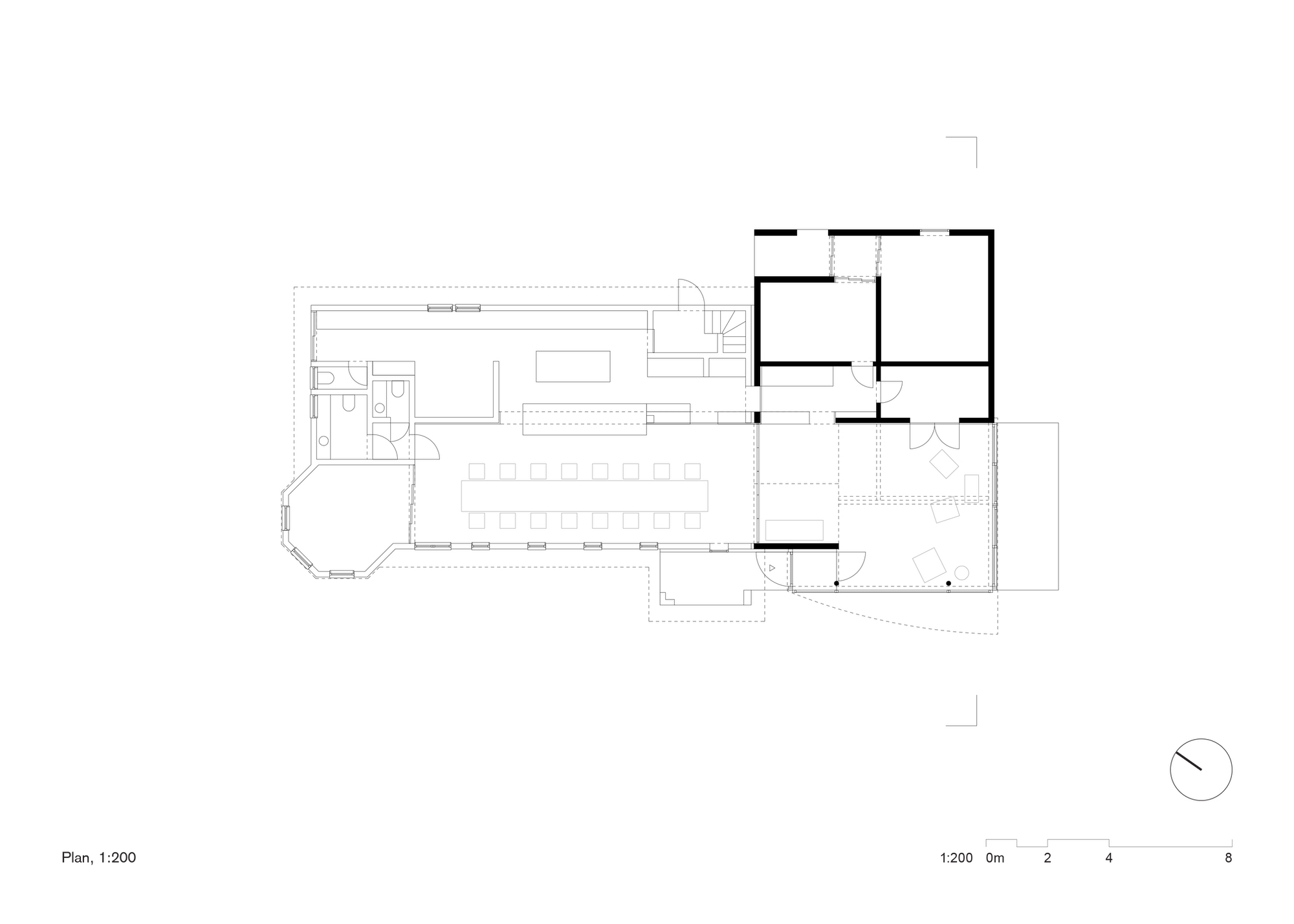
The layout of the existing building essentially consists of 2 zones: a long, tall dining space along the South facade, open up to the roof with a rhythm of exposed timber roof beams; and a service zone along the north facade with kitchen, storage and toilets.

The new addition takes these characteristics of the existing space and extends them in 2 abstract volumes.

A 45 degree pitched roof encloses the new lounge space, and opens the view to the agricultural landscape beyond. The roof extends down close to the ground, hiding the view of the adjacent parking and preventing overheating of the space, whilst curving up to reveal and indicate the new entrance of the building, welcoming guests. After entering the compressed airlock under the eave of the roof, the 7m tall triangular space with exposed timber structure becomes visible, reminiscent of the geometry and exposed structure of the existing building.

The other half of the new addition extends the kitchen and service spaces, contained in a low and opaque volume, emphasizing the contrast between both parts in the East facade.
In order to emphasize the abstract character of the new addition, all exterior finishes were clad in silver galvalume. This material simultaneously takes on soft reflections from the sky and surrounding landscape, varying with the weather, whilst blending the building with its surroundings.

A wood-clad service wall lines the full length of the existing dining space and new lounge, containing all storage, service access, reception and serving counters; leaving the space flexible and uncluttered. A polished screed floor and aluminium window-frames give the lounge a crisp and bright character, whilst a parquet floor, wood window frames and furniture and focused lighting, create a dining space with a warm and intimate atmosphere.

Inspired by Ushimaru’s collection of handcrafted glass flatware, custom handmade glass light fittings and doorhandles were developed, in collaboration with SUGAHARA GLASSWORKS INC., extending their tactile qualities to the fittings of the building.

This site uses Akismet to reduce spam. Learn how your comment data is processed.

Close
Close
Close