Se confecciona un traje a medida para un amigo ceramista: “Contigo” (@contigo.ceramics) en base a valores compartidos: Fascinación por la luz, flexibilidad del espacio, colores neutros, austeridad material y manufactura artesanal.
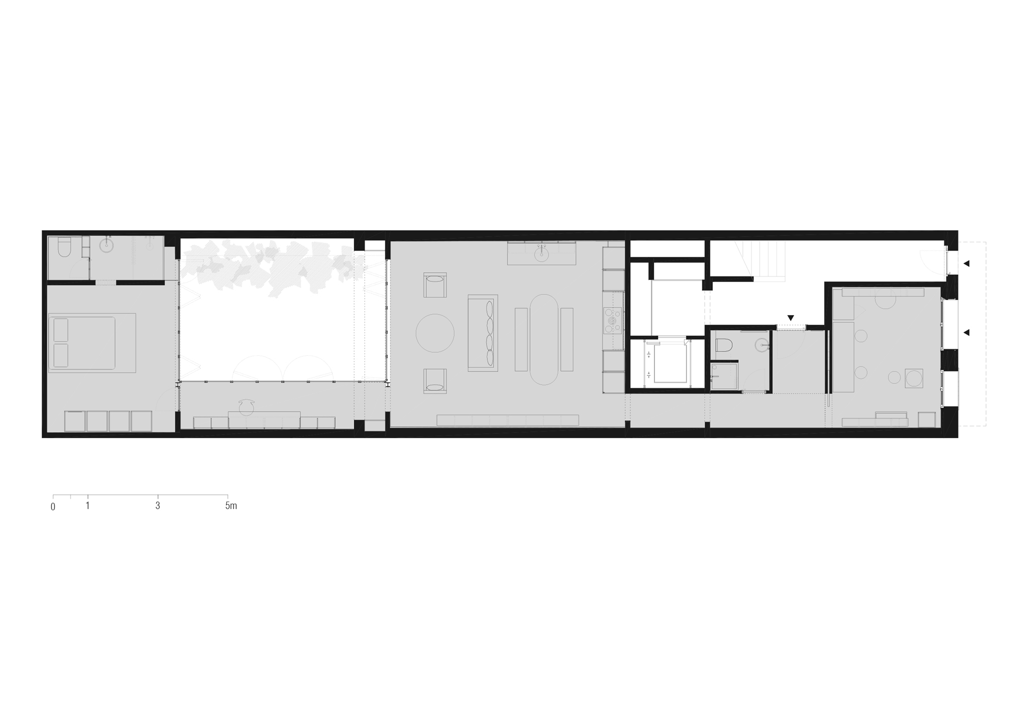
La reforma se sitúa en unos bajos del barrio de Gracia de Barcelona que habían estado ocupados por un viejo taller de carpintería muy poco luminoso.
La apertura de un nuevo patio permite inundar de luz el lugar donde se sitúa la vivienda, organizando el programa a su alrededor: Salón-comedor-cocina, librería-estudio, dormitorio-baño. El taller, totalmente conectado con la vivienda, se sitúa en el pasaje Alió con el objetivo de abrirse a la ciudad.
Precisamente la cerámica es el material con el que se construye el proyecto. El suelo y algunas separaciones son de ladrillo visto y el propio usuario es quien acaba de construir su casa, produciendo los elementos cerámicos que permiten domesticar y habitar el espacio, torneando los lavamanos, mesitas de noche, lámparas, menaje, accesorios, complementos.
La vivienda se va llenando de la producción cerámica del taller y acaba envolviendo al usuario de su gran pasión, convirtiendo la vivienda en exposición y catálogo de “Contigo Ceramics”.
El proyecto plantea la recuperación de la antigua tipología de casa-taller con el objetivo de incentivar en la ciudad este tipo de usos. Esta situación favorece la diversificación de los usos en planta baja y actúa como dinamizador de la actividad social y económica.























1 Comment
Amazing materiality and spaces! Bravo!! I ask myself though, how does the Patio reacts on very rainy days… I fear, that the water can get to the Livingroom / Bedroom in case of torrencial-rains… not so uncommon in the Summers in Barcelona… Besides that, amazing Job!! Greetings!!!