Giorgio Grassi Biblioteca pubblica à Groningen

Source: Giorgio GrassiText: DivisareLocation: Groningen, The NetherlandsYear: 1987
Date: April 18, 2024 Category: Classic

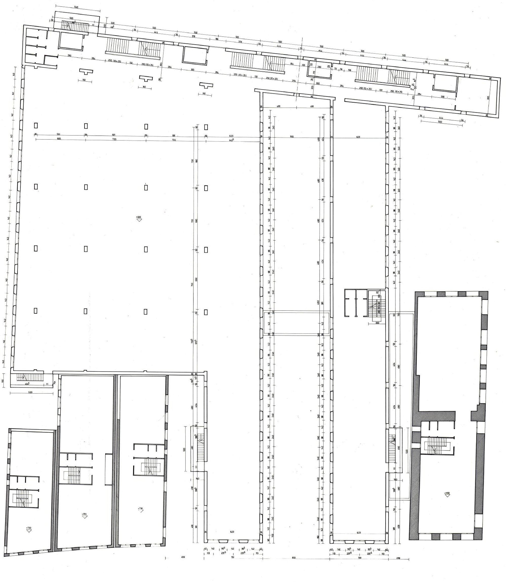
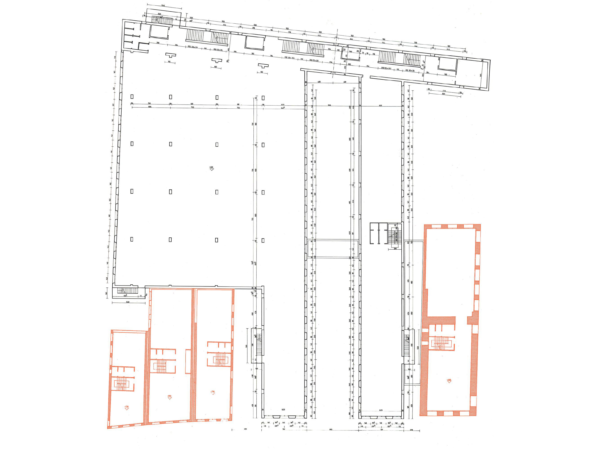
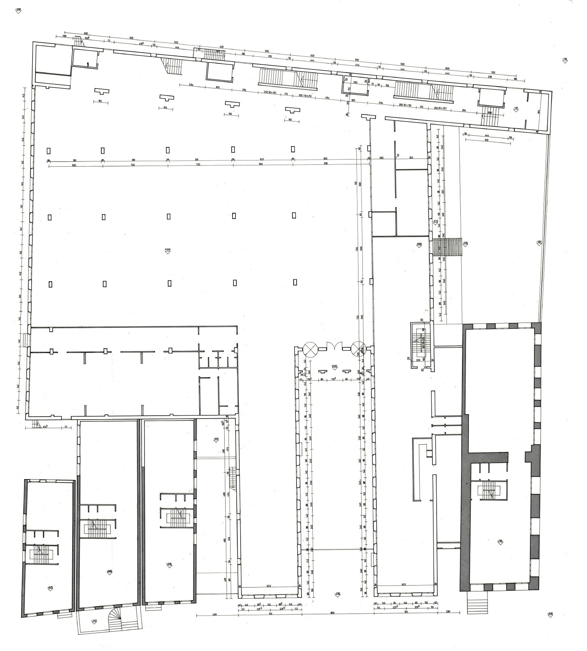
L’area prescelta si trova nel cuore dell’antica città gotico-mercantile presso il Grote Markt sulla Oude-Boteringestraat, forse la strada che conserva il maggior numero di edifici antichi della città. Si tratta di un isolato approssimativamente quadrato (60 m circa di lato) che include nel suo perimetro quattro Monumenten tutti sulla Oude-Boteringestraat (i numeri 10, 12, 14 e 24), quattro edifici storici che devono essere conservati.

Ciascun lato dell’isolato presenta L’area prescelta si trova nel cuore dell’antica città gotico-mercantile presso il Grote Markt sulla Oude-Boteringestraat, forse la strada che conserva il maggior numero di edifici antichi della città. Si tratta di un isolato approssimativamente quadrato (60 m circa di lato) che include nel suo perimetro quattro Monumenten tutti sulla Oude-Boteringestraat (i numeri 10, 12, 14 e 24), quattro edifici storici che devono essere conservati.

Una situazione architettonica differente. Un’antica strada di penetrazione della città caratterizzata dalla successione ordinata delle facciate di antiche case borghesi (Oude-Boteringestraat). Una piccola via di lottizzazione delimitata dai fronti laterali di vecchie case più modeste (Poststraat-Zuid). La stessa via piegata di 90° delimitata esclusivamente dal fronte laterale della nuova Universiteitsbibliotheek (Poststraat-West). E infine una breve strada (Broerstraat) che subito si allarga a definire uno spazio di particolare valore architettonico, uno spazio delimitato da edifici monumentali che a partire dalla Oude-Boteringestraat progressivamente si apre fino a diventare piazza vera e propria di fronte all’Academiegebow (Academieplein).

La prima questione che si presenta al progetto è di carattere generale, e riguarda appunto l’insediarsi di un edificio pubblico di grandi dimensioni in uno dei più tipici isolati della città antica. Isolati che sono tutti caratterizzati da una marcata omogeneità edilizia (occupazione del suolo, forma dei lotti, tipologia, larghezza dei fronti, altezze, ecc.) e anche delle condizioni architettoniche (case ‘a tre finestre’, materiali, soluzione dell’ingresso su strada, del coronamento, ecc.). La questione, cioè, dell’incontro fra l’eccezionalità del tema e i caratteri tipizzati dell’edificazione in questa parte della città.

La questione è particolarmente evidente sulla Oude-Boteringestraat (dove è previsto l’ingresso principale della nuova biblioteca), cioè là dove il fronte principale di un edificio grande e rappresentativo va a inserirsi in un tessuto urbano omogeneo, fatto di fronti stretti e regolari.

Non che non esistano esempi di questo tipo nella città storica (nella stessa Oude-Boteringestraat poco più avanti si fronteggiano ai lati della strada due soluzioni alternative, molto chiare: quella con grande portale al centro e corte interna quadrata e quella con corte stretta e allungata aperta su strada a determinare un asse prospettico perpendicolare alla strada stessa) ma la situazione di oggi non è certo quella di un tempo. Basta pensare alle difficoltà legate alla questione della riconoscibilità di un edificio pubblico oggi, sul piano proprio della sua figurazione, di fronte all’esperienza della città antica.

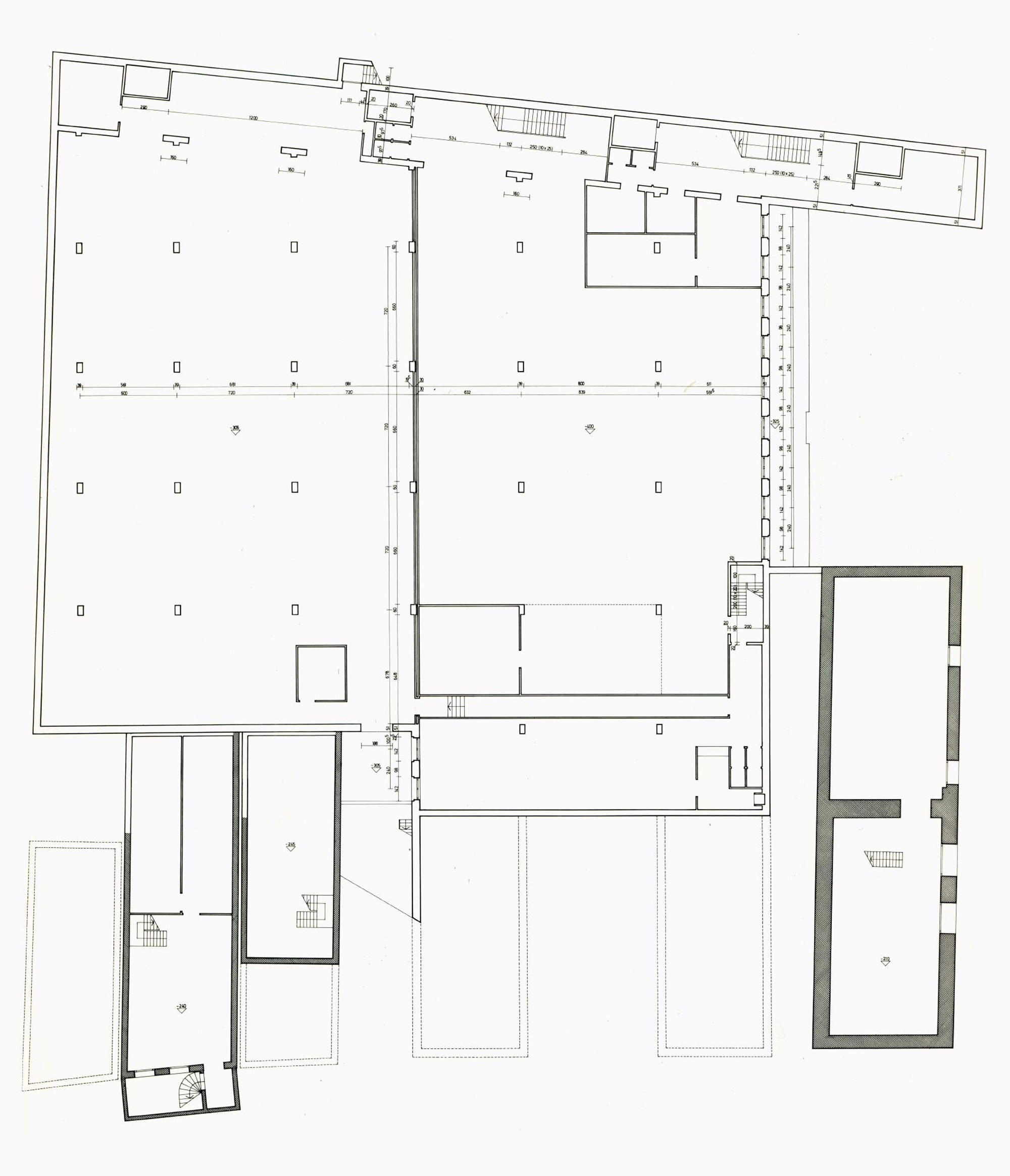
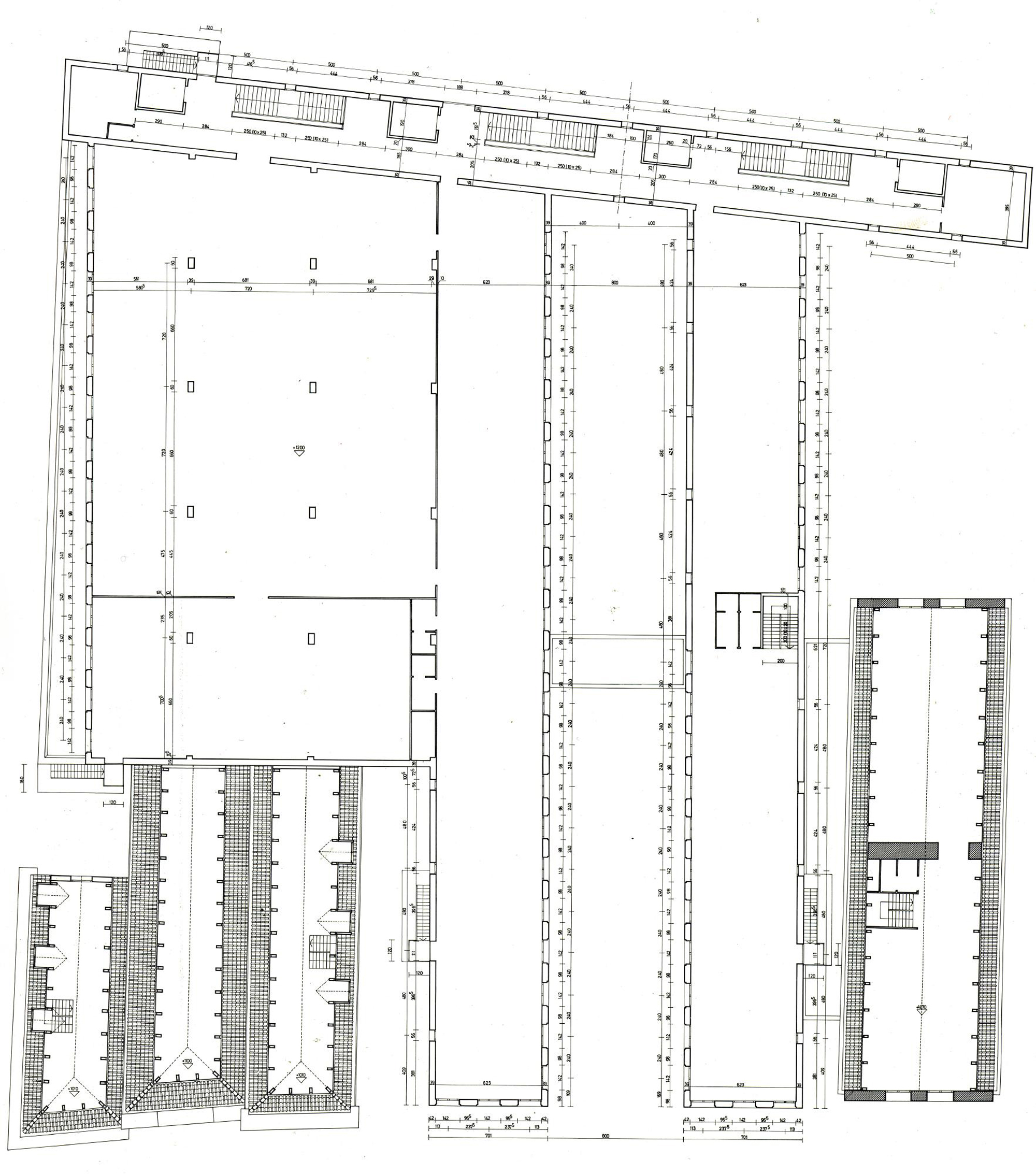
Dipendenti da questa più generale, vi sono poi altre due questioni più specifiche e di merito rispetto al lavoro del progetto e al suo sviluppo. La prima riguarda l’impostazione tipologica, e perciò volumetrica, dell’edificio in rapporto al programma di una moderna biblioteca centrale. La seconda riguarda le relazioni spaziali che il nuovo edificio stabilisce con il suo intorno più immediato, con i Monumenten e con l’edificazione circostante e che sono relative specialmente alle altezze e all’occupazione del suolo: relazioni che mutano sui diversi lati dell’isolato come si è detto all’inizio. Ovviamente, le due questioni sono strettamente collegate tra loro.

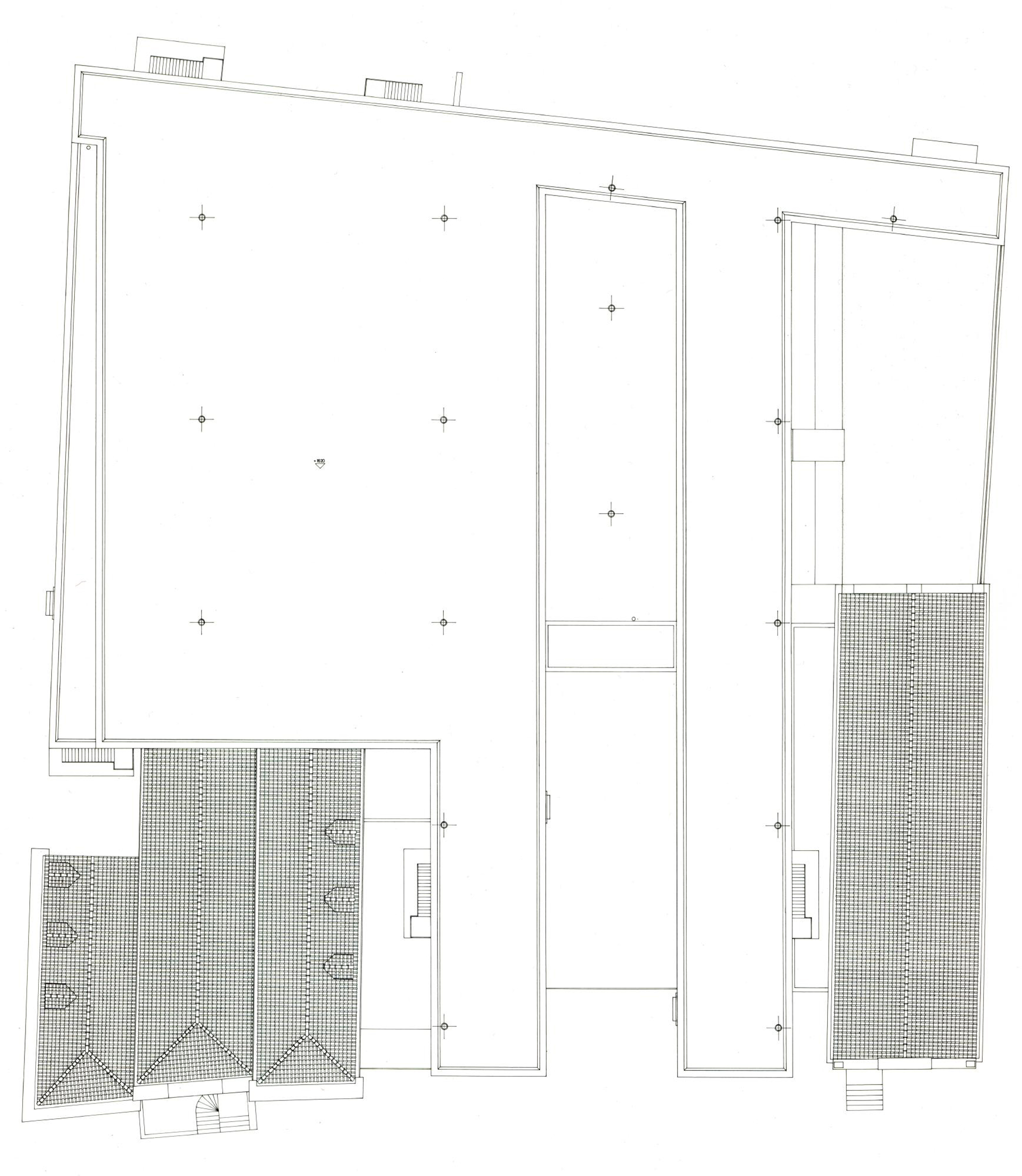
1) La prima è stata affrontata nel progetto in termini squisitamente volumetrici. Evidenziando cioè con l’articolazione dei corpi edilizi le differenti destinazioni d’uso delle parti dell’edificio: separando il corpo edilizio della biblioteca vera e propria (sale di lettura, depositi, ecc.) da quello degli uffici e dei servizi generali e collegandoli all’estremità con un terzo corpo trasversale molto sottile, anch’esso volumetricamente individuato e destinato contenere tutti i collegamenti verticali e orizzontali.

L’articolazione di questi tre volumi fra loro e poi in relazione ai Monumenten fra i quali si insinuano danno luogo, specie sulla Oude-Boteringestraat, a una scansione pieni/vuoti non molto frequente in strade di questo tipo ma adottata a volte per edifici di carattere eccezionale (vedi nella stessa via l’esempio citato), in ogni caso una scansione coerente con la caratteristica divisione del suolo della strada stessa.

Nel progetto il fronte dell’isolato sulla Oude-Boteringestraat si presenta dal lato della Postsraat con la successione dei tre Monumenten (n. 10, 12, 14) seguita dalla misura libera di un lotto (4/5 m, corrispondente all’ingresso di servizio della biblioteca) e dal lato della Broerstraat con il Monument più importante per dimensioni e decoro (n. 24) seguito invece da uno spazio libero di poco più di due metri (con l’approssimativo calore di un antico Bauwich). Il fronte principale della biblioteca si trova compreso fra questi due intervalli di misure così diverse, ed è formato a sua volta da due corpi edilizi uguali (7 m), separati di nuovo dalla misura libera di un lotto (8 m). Questo spazio libero interno al volume della biblioteca, una corte aperta stretta e profonda, ne costituisce l’ingresso principale ma allo stesso tempo rappresenta anche l’asse prospettico su cui è costruita l’intera sua figura architettonica: questo asse si prolunga infatti per tutta la profondità dell’isolato, parzialmente interrotto soltanto dal doppio ordine del portico di ingresso.

In tal modo l’ampio spazio libero compreso fra i Monumenten nn. 10, 12, 14 e il n. 24 viene interamente occupato dal volume articolato della biblioteca, anche se in realtà ne raggiungono il filo della strada soltanto i due corpi longitudinali ‘a tre finestre’. E dalla strada, attraverso i tre intervalli, è possibile cogliere tutti quanti gli elementi costituitivi del nuovo complesso edilizio (il corpo della biblioteca vera e propria attraverso l’ingresso di servizio, tutti e tre i corpi edilizi attraverso l’ingresso principale e, attraverso la stretta apertura del Bauwich, il giardino e sul fondo il corpo dei collegamenti.

2) l’altra questione cui si è accennato, relativa al rapporto fra l’edificio e il suo intorno più immediato, è sta affrontata anch’essa in termini, per così dire, ‘analitici’: cioè caso per caso, lato per lato.

Del fronte sulla Oude-Boteringestraat già si è detto: è il fronte principale della biblioteca, un asse prospettico delimitato dai tre volumi dell’edificio. Qui l’edificio pubblico prospetta direttamente sulla via senza per questo contraddirne le antiche misure e i caratteri architettonici.

Il fronte sulla Poststraat-Zuid fa vedere lo sviluppo laterale del corpo principale della biblioteca (ma qui ribassato di un piano per riprendere la linea di gronda della via più piccola); alcuni accorgimenti consentono di leggerne la forma a ‘L’ nel punto di contatto con i tre Monumenten e dall’altra parte la saldatura con il corpo trasversale dei collegamenti.

Il fronte sulla Poststraat-West, occupato per tutta la sua lunghezza dal corpo dei collegamenti, è invece dichiaratamente un fronte posteriore. E’ un fronte chiuso, che ripete in forme canoniche gli elementi compositivi degli edifici mercantili della vecchia città (le piccole finestre, le porte di carico, gli argani, ecc. delle vecchie Pakhuizen della città).

Infine la soluzione adottata per il fronte sulla Broerstraat/Academieplein è soprattutto una risultante: la risultante del reciproco disporsi sull’area dell’isolato dei volumi funzionali. Tuttavia questa soluzione, anche perché da luogo al completo isolamento del Monument n. 24 (accentuandone la già notevole monumentalità) e alla formazione di un giardino aperto sullo spazio pubblico, risulta alla fine adeguata e coerente con le caratteristiche architettoniche di questo spazio ricco di episodi diversi.

Concludo questa breve descrizione con un’ultima osservazione che riguarda ancora la questione iniziale più generale.

E’ vero che il problema principale di questo progetto è stato quello di inserire un grosso edificio pubblico in un’antica trama edilizia fitta e regolare. E’ anche vero che questo problema ha avuto nel progetto una risposta più nel senso del mediare che non in quello del contrapporre queste due grandezze diverse; ma questo non fino al punto di arrivare a nascondere il problema stesso.

In realtà l’obiettivo del lavoro di progetto è stato sempre anche quello di lasciar apparire comunque la tensione, la disparità sul piano proprio espressivo, fra questi due elementi della composizione. Cioè il problema avrebbe dovuto rimanere comunque aperto, anche dopo aver ricevuto la sua risposta. E in tal senso il progetto avrebbe dovuto mostrare insieme alla sua risposta anche la sua evidente difficoltà: cioè la forzatura, che è il suo dato di partenza, insieme alla forma particolare che questa forzatura assume nel tentativo di mettere in pratica la lezione d’architettura che qui ci offre la città antica (per fare un esempio diverso: nella vicina Universiteitsbibliotheek il problema, lo stesso problema, non c’è, non si pone, in quanto la costruzione non lo fa vedere).

Tutto questo solo per dire che la risposta del progetto non è, e non vuole essere neppure un risposta di tipo mimetico.

Tutto questo per cercare di spiegare meglio, ad esempio, il ruolo nel progetto degli intervelli aperti nella cortina edilizia della Oude-Boteringestraat. Anche se questi spazi vuoti a prima vista sembrano solo negare l’idea stessa di cortina, in realtà, nel loro alternarsi ai corpi edilizi vecchi e nuovi, hanno invece il compito di lasciar apparire questa caratteristica tensione del progetto: appunto il suo problema. Dal punto di vista operativo quegli intervalli hanno lo stesso valore architettonico dei volumi cui corrispondono, sono cioè elementi necessari alla composizione del progetto.

Anche il conseguente relativo isolamento dei Monumenten nei confronti del nuovo complesso edilizio è da intendere nello stesso senso. Noi sappiamo bene che la condizione della città antica è qualcosa di irrecuperabile e che un progetto può al massimo cercare di far tesoro del suo insegnamento, ma altri sono i suoi problemi, diverse le questioni cui deve rispondere. E’ questa constatazione a farci capire che la condizione di appartenenza dei Monumenten al nuovo isolato non può che essere nuova, diversa. E questo si verifica puntualmente nel progetto, tant’è vero che alla fine ci accorgiamo che in realtà sono essi ad aggiungersi alla biblioteca e non il contrario.

Nel progetto i Monumenten si appoggiano ai muri ciechi della biblioteca (n. 10, 12, 14) oppure sono tanto vicini che è come se li toccassero (n. 24), si aggiungono ad essa e nel far questo assumono gran parte del compito di mediazione con l’architettura della via che spetta al progetto. Fino ad apparire appunto come una parte del nuovo edificio, una parte anche molto importante perché finisce per influire in modo decisivo sulle scelte costruttive e decorative dell’intero complesso.

Detto questo, risulta chiaro che di queste scelte ben poche sono quelle che l’edificio della biblioteca può assumere autonomamente: quasi tutto è già deciso in questo incontro con i Monumenten, in questo assumerli come parte attiva della costruzione.

Di tutta quanta la costruzione possiamo forse ricordare qui soltanto che la struttura del nuovo edificio è modulare e utilizza in gran parte elementi prefabbricati, che la muratura perimetrale è interamente in mattoni a vista, che si danno due soli tipi di serramenti esterni (finestre grandi o piccole in legno verniciato di verde e bianco) e infine che vi è un solo ‘pezzo unico’ in tutto il complesso edilizio, cioè la struttura in legno verniciato di bianco del portico a doppio ordine che sta davanti all’ingresso principale: unica concessione di carattere ‘celebrativo’ che va al di là del suggerimento di rigorosa economia espressiva offertoci dai quattro Monumenten.

This site uses Akismet to reduce spam. Learn how your comment data is processed.

Close
Close
Close