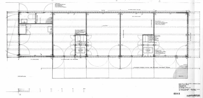
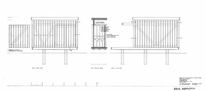
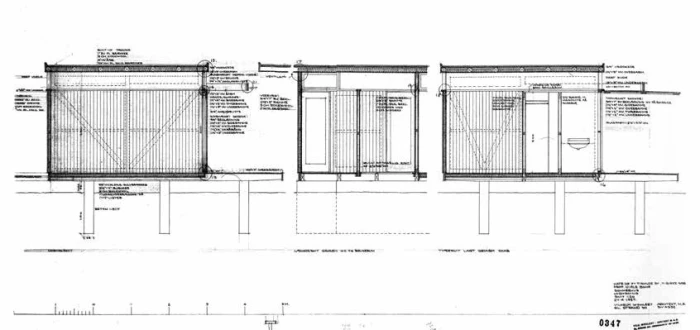
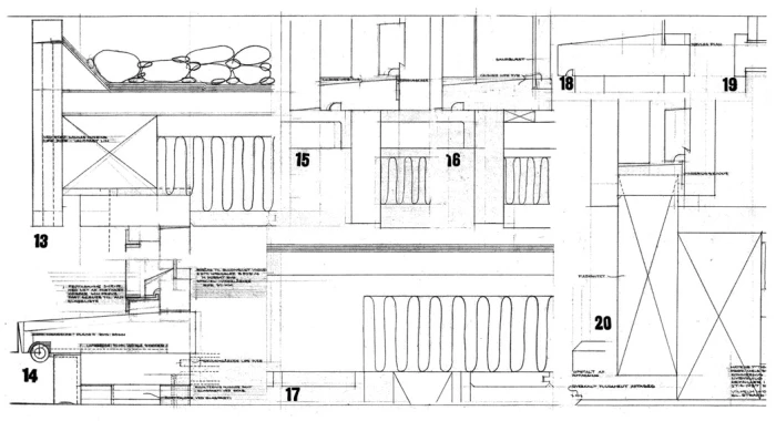
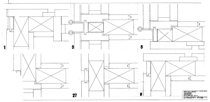
Esta pequeña casa para huéspedes, con cinco habitaciones, emplazada en un espeso bosquecillo, algo apartada de la edificación principal, está construida a base de un entramado de madera revestido exteriormente con tablas de color oscuro. En invierno la casa queda deshabitada y se protege por medio de hojas de cerramiento, mientras que, en verano, se abre como un preciado mueble. Las hojas de cerramiento de las puertas, en posición abierta forman en la terraza paredes de separación. En verano, las grandes hojas de cerramiento basculantes crean un cobertizo que sirve de protección solar. Análogamente, las hojas de las puertas y balconeras pueden abrirse hacia el interior, quedando entonces toda la anchura de los dormitorios abierta al exterior. Las caras interiores de las hojas de cerramiento, como los demás trabajos de carpintería, están pintados de blanco.





















11 Comments
Hola si os gusta este proyecto os recomiendo la lectura de mi articulo de investigación.
García Sánchez, Carmen (2015). El pabellón Niels Bohr. Tradición Danesa y Modernidad. “rita_ Revista indexada de textos académicos” (n. 04); pp. 64-75. ISSN 2340-9711.
Alguien tiene la medida de altura ??
Los comentarios que generó este post me obligaron a buscar el libro del que hablabais…
Lo encontré… internet me llevó a una libreria en nueva york, segunda mano, fantástico…
Me encantaría visitar vuestras bibliotecas y nadar entre tesoros… por eso, y simplificandolo, propondría que se hablara de libros en hicarquitectura. No es necesario un nuevo espacio, sólo que se comente, se recomiende, como quien no quiere la cosa… creo que seria tremendamente enriquecedor.
Gracias por este grandioso trabajo!
Creo que tienes razón… me apunto tu propuesta…
Propongo como idea, si se me permite:
pedir a arquitectos (de grandes reservas a jovenes) que recomienden un libro de sus libros, una de las joyas de sus bibliotecas.
gracias de nuevo
Magnífic!
Gran proyecto y gran libro, ciertamente. Recuerdo que me fué recomendado por Carme Pigem en primero de arquitectura. Me quedó igualmente gravada desde entonces. Además la selección de proyectos del libro muestra la excepcional obra de los arquitectos daneses de los 50 y 60.
Un ejercicio precioso. Me encanta la planta y la solución de las ventanas. Simpleza, sí, con gran funcionalidad.
Sep, tengo el libro y es una de las joyas de mi biblioteca. Me pasó como a ti. Me enamoré de la sencillez y belleza de esta pieza.
Esta casa para huéspedes, fue publicada en un libro de GG cuyo titulo es Nueva Arquitectura Danesa de Tobias Faber en el año 1968, todo un incunable. La casa la visualicé por primera vez hace unos 25 años y se me quedo gravada en la mente, por su sencillez de forma y utilización de materiales. Gracias a HIC por publicarla.