La elección de un solar en el bosque por parte de los futuros propietarios (arqueólogos y profesores de universidad) fue el principio de este proyecto.
El encargo consistía inicialmente en una única casa, pero se decidió hacer una casa en dos partes, unidas por una rambla de bosque; un lugar compartido que se conserva casi tan salvaje como se encontró el primer día, un espacio que se ha convertido en la mejor habitación.
Las casas están situadas sobre dos plataformas que son como ‘mesas’ con techo. Las plataformas proporcionan una cota cero que soluciona la fuerte pendiente del solar. Bajo las ‘mesas’ están los aparcamientos, los talleres, los depósitos del agua de lluvia y un par de salas parcialmente hundidas en el terreno. Y sobre las plataformas están las casas.
Ambas tienen dos plantas y se miran mutuamente desde un pasillo-balcón de doble altura. Sin embargo, cada una tiene un desarrollo diferente en programa y superficie.
En m1 vive una pareja y su hijo pequeño. Las piezas principales son una sala alrededor de la cocina, que es el corazón de la casa, mirando al porche de entrada. La sala tiene un pequeño pabellón que funciona como esquina de lectura. La segunda pieza principal es el estudio, que se sitúa en la fachada posterior, abierto hacia la densa vegetación de la riera.
Por su parte, la casa m2 resulta de unir varias casas pequeñas. El propietario pasa largas temporadas fuera del país, de modo que alquilará algunas de sus partes a otros profesores de la universidad. Cada una de las piezas ha de ser independiente. Los espacios comunes son la cocina, una pequeña sala asomada al porche de entrada y otra más amplia situada bajo la plataforma y entre los matorrales.
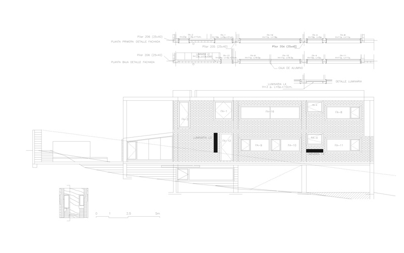
Los materiales son extremadamente económicos: cerramientos de ladrillo rojo de gran formato y de bloque de hormigón, carpinterías de aluminio con marcos de doce centímetros de ancho o bancos corridos de hormigón in situ
























