Original project by José Antonio Coderch, 1958.
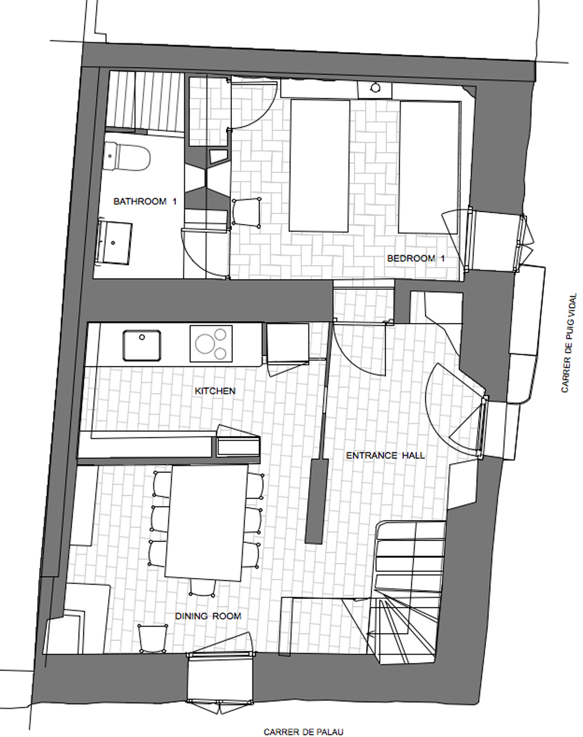
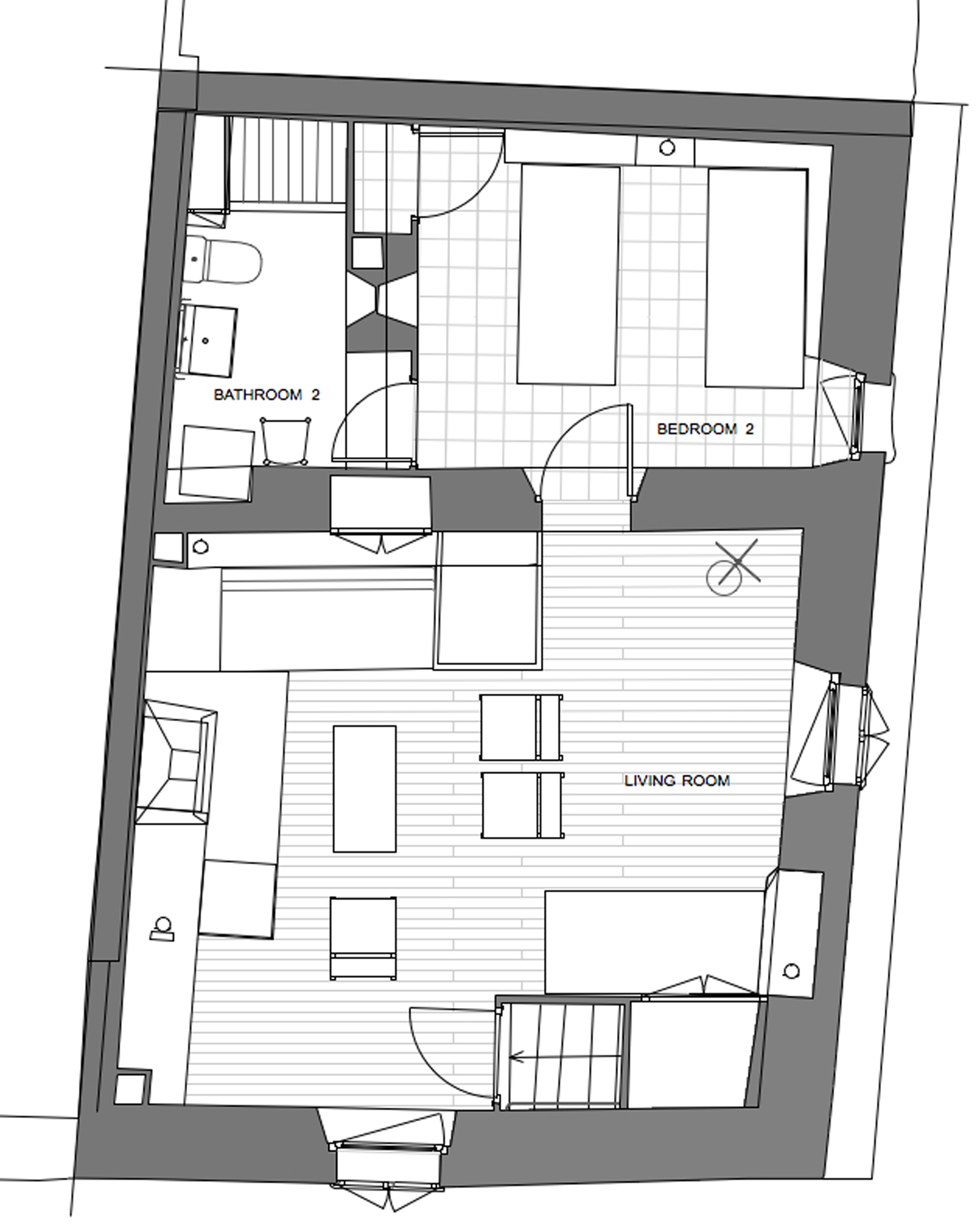
In 2015 we were asked to restore a small house in the seaside village of Cadaqués that the architect José Antonio Coderch built in 1958 for himself and his close friend Leopoldo Milá, which not long afterwards, was published in the Italian journal Domus. His starting point had been a fisherman’s house, a modest stone structure.
We began by doing an exhaustive measured survey of the house, including the original furniture designed by the architect, producing a set of as-found drawings. (Original sketches existed but no proper recent survey had been done.) This building register was critical to our conviction that our work would be a “recuperation” of Coderch’s house, incorporating only minor adaptations or adjustments.
Our work on site, both through documentation, and the stripping-down to the bare construction elements necessary for specific tasks, allowed us to discover the pictorial and abstract nature of many of Coderch’s decisions. We were aided in this task through conversations with architects and local craftsmen.
The photographic and sketch documentation of the house, from 1958 through the early 60’s, was a valuable source of information for our restoration, as well as a guide to furnishing and decorative elements ranging from the DISA lamp (J.A. Coderch, 1957) to locally produced esparto grass rugs.
Elements were judiciously restored and repaired, including original furniture and we were mindful not to erase the patina of use. Considering that Coderch’s work was essentially timeless, only the kitchen, bathrooms and services were adapted to meet current needs.





























