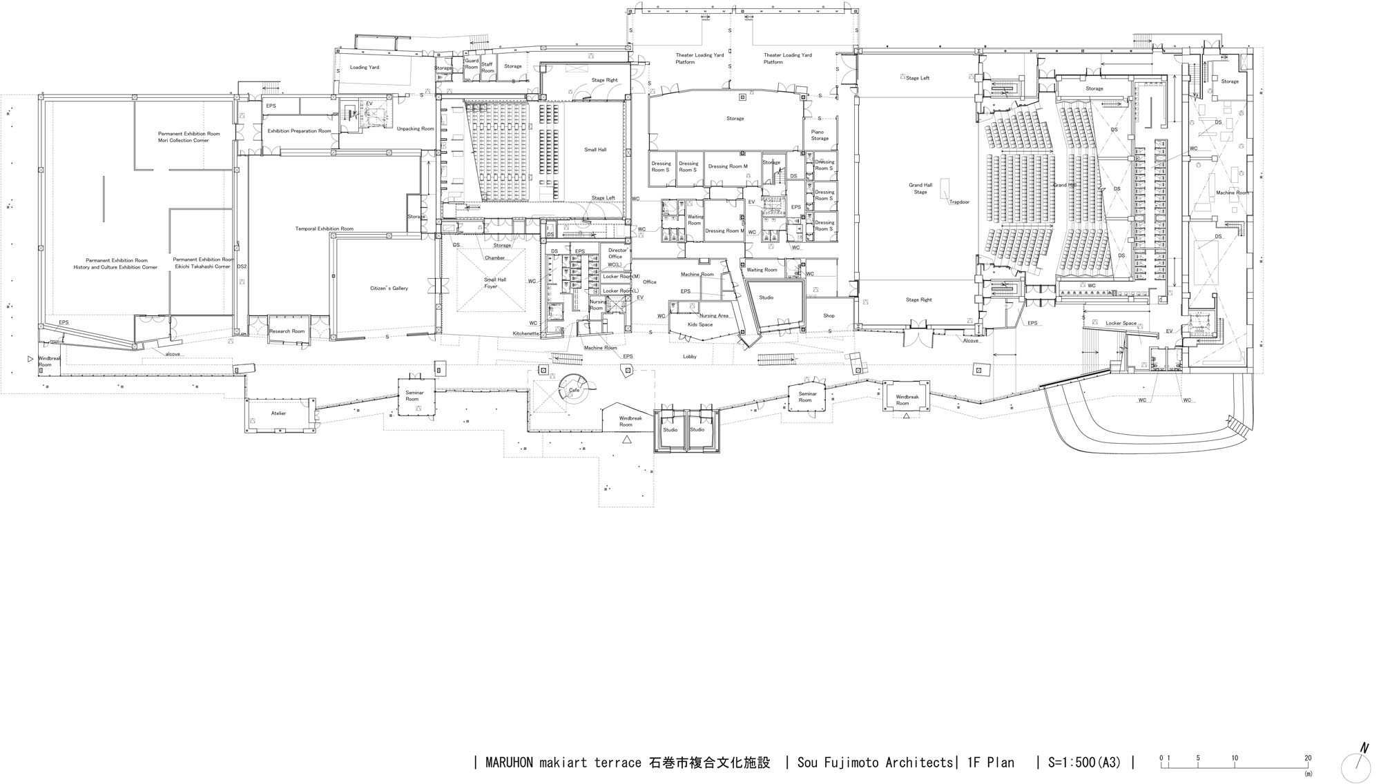
The Great East Japan Earthquake and tsunami that occurred on March 11, 2011 damaged the Ishinomaki Civic Center and the Ishinomaki Cultural Center, forcing them to be demolished. With the aim of reviving those functions and creating a complex cultural facility that will revitalize people and communities as a symbol of Ishinomaki city’s recovery, a design proposal was announced in 2016. The program called for a building complex which includes a large hall with 1254 seats, a small hall with 300 seats, an exhibition area, a public gallery and a learning space, which can be visited by a variety of people.

Credit: Sou Fujimoto Architects

Credit: Sou Fujimoto Architects + Masaki Iwata

Credit: Sou Fujimoto Architects + Masaki Iwata

Credit: Sou Fujimoto Architects + Masaki Iwata

Credit: Sou Fujimoto Architects + Masaki Iwata

Credit: Sou Fujimoto Architects + Masaki Iwata

Credit: Sou Fujimoto Architects + Masaki Iwata

Credit: Sou Fujimoto Architects + Masaki Iwata

Credit: Sou Fujimoto Architects + Masaki Iwata
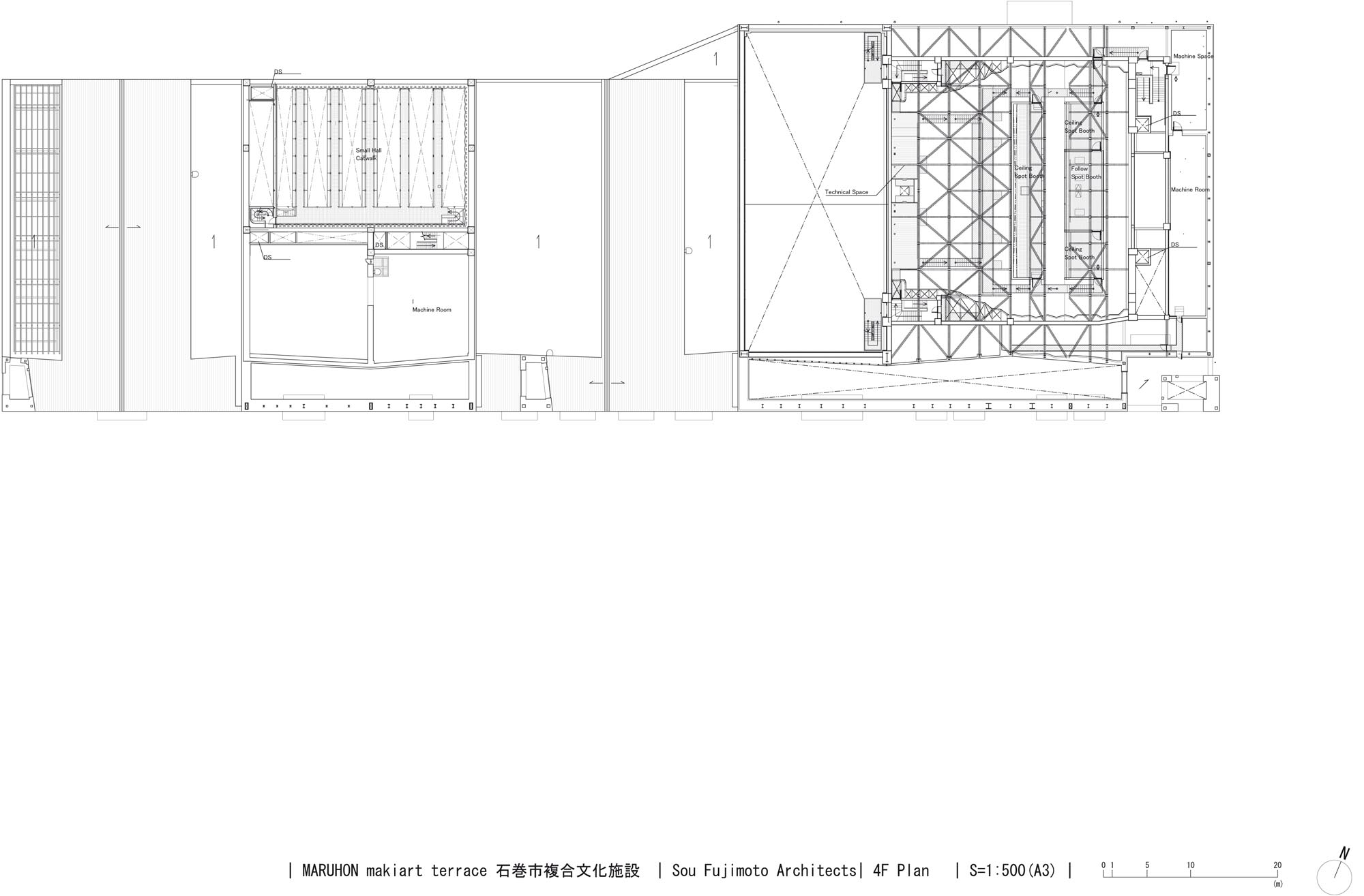
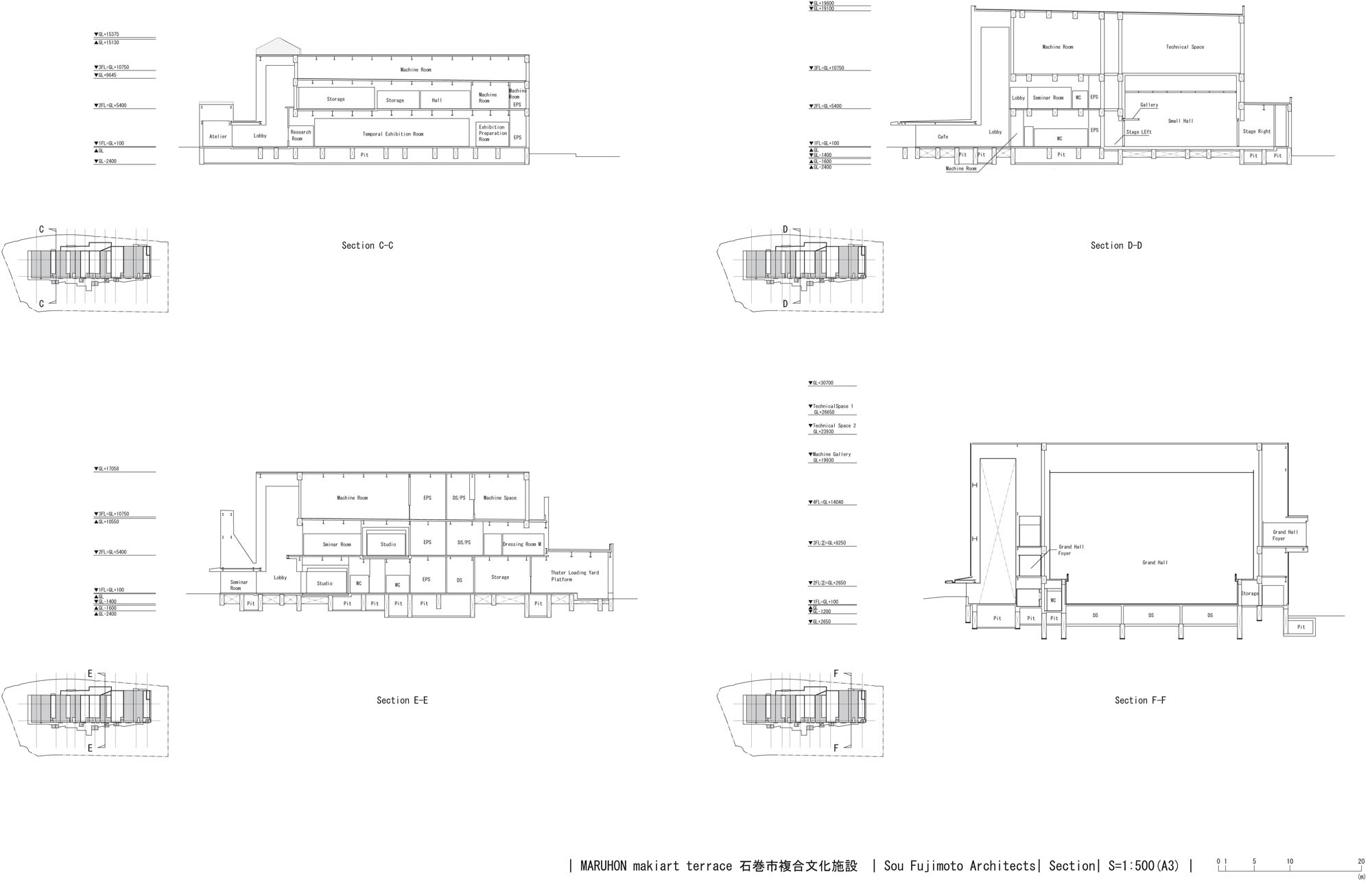
A simple plan configuration arranges programs linearly along a slender lobby of about 170 m in length. We placed the functions that are highly used by citizens, such as practice studios, and ateliers in such a way as to protrude into the lobby space. This creates interlocking effects of various scales as if to further segment the linear lobby. By carefully adjusting the entire space, including the selection and placement of furniture, as well as the density of signs and lighting fixtures, we intended to enable citizens to find a comfortable place in their daily lives; a place where local students study after school, people chit-chat, and read. As these rooms and functions began to appear like huts in the lobby space, we placed small house-shaped and chimney-shaped volumes on the lobby roof to bring in light and allow for smoke exhaust. By combining these house shapes and chimney-like shapes, the 13,000-square-meter building with a 30-meter fly tower is both a large facility and a human-scale structure. It has a strong identity but at the same time it is like a small town which evokes various impressions and meanings. The hope is that the building will not be a landmark that imposes a single effect, but something that is built on ambiguity and is flexible enough to allow various people to share their own impressions. All while having a strong presence. The landscape of rows of house-shaped volumes inherits the memory of the buildings that lined the former Kitakami River, which prospered through water trade.

Credit: Sou Fujimoto Architects + Masaki Iwata

Credit: Sou Fujimoto Architects + Masaki Iwata

Credit: Sou Fujimoto Architects + Masaki Iwata
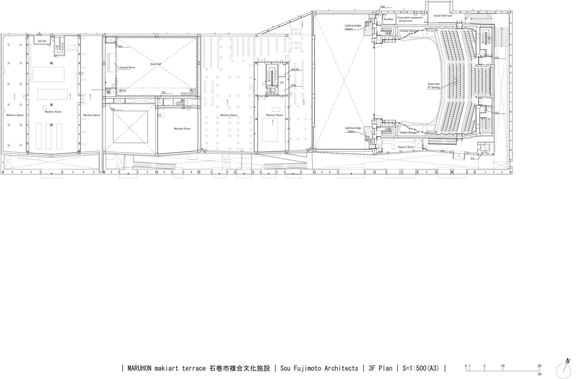
Regarding the structure of the large hall, in order to respond with flexibly to the balance between the number of seats and the performance type, we divided the second floor seats with curtains, making it possible to use the middle hall scale within the first floor. The interior of the hall, which uses black to form a background, emphasizes the presence of the stage and the audience seats, intended to create a sense of unity between the performers and the audience.
The small hall adopts a flat floor style with rollback chairs, and is planned to be used not only for theatrical performances and music appreciation, but also for exhibitions and shows.
We create architecture with precision, carefully thinking about the program and the context of the site. We consider how to use it and how it will be used, its history and its future, the public nature and human nature, and we decipher what happens there. While having a very simple composition of subdivided and clustered scales, what happens within this architecture suggests a new way to think about rural public complexes.

Credit: Sou Fujimoto Architects

Credit: Sou Fujimoto Architects

Credit: Sou Fujimoto Architects

Credit: Sou Fujimoto Architects

Credit: Sou Fujimoto Architects

Credit: Sou Fujimoto Architects
Other projects by Sou Fujimoto