Source: Gordon BunshaftText: arquitextosImages: Architectural RecordLocation: Long IslandYear: 1962
Date:
May 6, 2023
Category:
Classic

En los primeros años de la década de 60, Gordon y Nina Bunshaft vivían en el Manhattan House, edificio construido por el SOM entre 1947 y 1950. Entre 1961 y 1962 Bunshaft proyectó y construyó para él y su mujer una casa en Long Island, Nueva York. Una de las principales virtudes tanto del apartamento como de la casa era albergar a la impresionante colección de arte y de mobiliario moderno de la pareja. De un punto de vista pragmático, la casa construida atendía a las mismas demandas de uso del cómodo apartamento en Manhattan.
El sitio donde fue construida la casa está localizado en una urbanización de la pequeña ciudad costera de East Hampton – Long Island – distante aproximadamente 150km de Nueva York. La zona es muy tranquila y valorizada económicamente, estando ocupada por mansiones y grandes casas de veraneo. El solar tiene aproximadamente 2100 m2 y forma trapezoidal. La naturaleza circundante es rica, con muchos árboles y vegetación autóctona, y el lago Georgica, en el lado sur del solar, valoriza aún más el sitio. Uno de los vértices del terreno avanza en dirección al lago, permitiendo que del centro del solar se tenga 180 grados de visuales hacia el agua.












El nivel del suelo en esta porción tuvo que ser elevado 1,8m antes de la construcción de la casa debido al avanzo de las aguas en ciertos periodos del año. El clima de esta región es bastante riguroso y las temperaturas en verano oscilan entre los 28 y los 35 grados, mientras que en invierno oscilan entre los 0 y los 6.
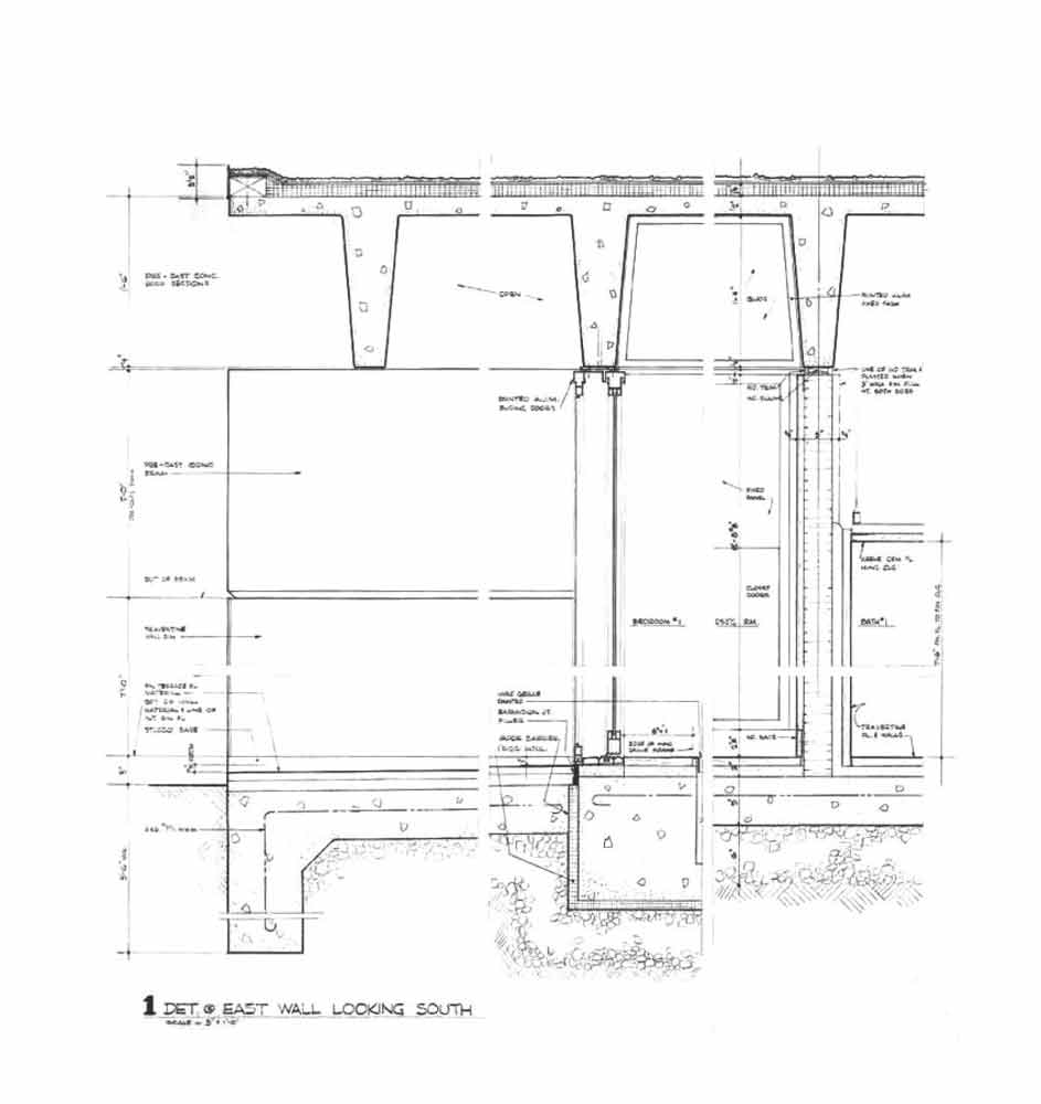
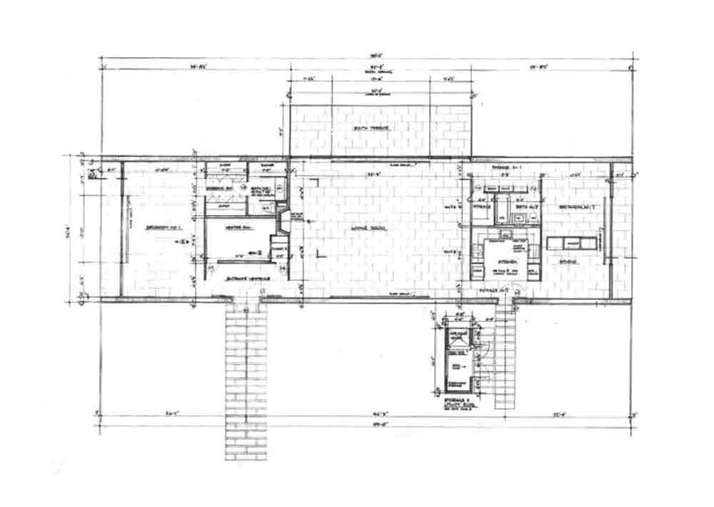
La casa de 241 m2 ocupaba el centro del solar. Obviamente ese posicionamiento obedeció a una relación directa con las visuales y con la orientación solar. De manera sintética se puede describir el edificio como un prisma de base rectangular midiendo 29×8, 12m, en el cual los dos muros más largos sostienen la cubierta, formada por losas π en hormigón prefabricado.
La estructura puede ser descrita de manera resumida así: dos muros separados 7,3m (23”12’), con 35cm de espesor y hechos de fábrica de bloque de hormigón; sobre estos muros – cubriendo exactamente toda su proyección superior, estaban colocadas jácenas en hormigón prefabricado con sección igual a 38X60cm (1’3”X2’); y sobre estas jácenas descansaban losas π prefabricadas en hormigón. Al total había 19 losas en toda la cubierta.
Esta configuración generó algunas interesantes posibilidades de proyecto. El centro de la planta podría ser totalmente liberado, ya que los apoyos verticales eran los muros periféricos laterales. La ausencia de apoyos verticales internos fue posible por la adopción de las losas π para formación de la cubierta. Bunshaft dispuso los dos espacios íntimos en las extremidades, y el espacio principal de la casa – la sala de estar – en el centro de la planta. Entre medio de estos tres espacios habían núcleos de servicio, con baños, cocina, depósitos y sala de máquinas de aire acondicionado. En el lado Este se encontraba el dormitorio de Nina y Gordon. En el Oeste estaba la habitación para huéspedes y un recinto contiguo utilizado como taller de pintura por Nina.




La estructura también actuó decisivamente en la integración física y visual de estos interiores con el exterior. Las jácenas, que ejercieron en relación a las fachadas lo que las losas del forjado ejercieron en relación a la planta, se colocaban en toda la extensión longitudinal del edificio, posibilitando al arquitecto suprimir los tramos de muro exterior que interesaban. De esa manera tanto los dormitorios como la sala de estar se abrían al espacio abierto circundante – césped, los árboles y el lago Georgica. En entrevista a Betty J. Blum, Bunshaft afirmaba que “En East Hampton, las personas creen que el frente de nuestra casa es el lugar de donde se debe apreciarla. Esa es una pared en blanco en nuestra casa. Por el otro lado todo es cristal con vistas a un estanque y un gran césped. Lo llaman de ‘fondos’”.
Bunshaft utilizó las losas del forjado también como base para estipular un módulo dimensional básico para la obra. Las medidas de este módulo serían multiplicadas por todo el edificio. Esa decisión definió la ordenación de los demás elementos de la obra y influenció técnica y estéticamente – eso es, de manera concreta y abstracta – el resultado final construido. Para entender mejor estas ideas es necesario definir con precisión las medidas de ese elemento clave. Consultando los principales catálogos de empresas de prefabricados de hormigón norteamericanos se puede decir que el modelo utilizado en la casa no era muy común, o dejó de ser fabricado desde que la casa fue erigida. Cada losa tenia dimensiones totales en planta de 8,12×1,52m. En sección las medidas eran 152cm de ancho por 42,5cm de altura. La distancia entre los nervios era de 76,2cm, y el espesor de la ala superior era de 5cm. Como se trataba de una cubierta, probablemente el forjado no necesitó de capa superior de compresión, reduciendo sensiblemente el canto visto de su ala superior.
Las dimensiones de ese módulo básico se corresponden con las distancias entre los nervios de las losas. Esa medida correspondía al mayor lado del módulo, y es igual a 76,2cm (18 pulgadas). La menor dimensión es igual a dos tercios de la mayor dimensión, o sea, 45,7cm (30 pulgadas). Esta segunda medida es igual a la 1/16 del ancho interior de la casa, o sea, 1/16 de la largura total del forjado en planta (medida equivalente a la largura total de la casa) menos el espesor de los dos muros exteriores acabados. Todos los demás sistemas y subsistemas de la construcción se relacionaron de alguna manera con estas medidas, o con múltiples de ellas.
La repetición sistemática del módulo básico genera pautas o mallas reguladoras. Estas mallas establecieron los alineamientos necesarios para que los elementos que forman el edificio tuvieran claras relaciones visuales. Una de las correspondencias dimensionales y proporcionales más claras en el proyecto se nota entre el despiece de las placas de travertino del piso y los nervios de las losas π. Las medidas de las piedras colocadas a rompejunta en el piso son exactamente las dimensiones del módulo básico. Los demás elementos colocados en el interior de la residencia también atienden a esta regla. Los tabiques internos fueron colocados justo debajo de los nervios, y los montantes verticales de los cerramientos acristalados coinciden con estos elementos maestros.

Las placas de travertino que cubrían las caras exteriores de los muros estructurales seguían la misma regla. Los tramos de esos muros y las aperturas al exterior fueron alternados, no dejando que los primeros tuvieran larguras iguales. Así, las fachadas largas de la casa eran asimétricas, pero de ninguna manera desequilibradas. La unidad del volumen era dada por los elementos principales: las jácenas y el forjado de cubierta. Los elementos estructurales eran enseñados de manera franca, con todas sus dimensiones a la muestra. Los huecos llegaban hasta las caras inferiores de las jácenas, evidenciando la independencia entre los diferentes tramos de muros exteriores, que son visualmente percibidos como planos. Una de las demostraciones de la utilización de ese criterio puede ser vista en las dos diferentes maneras que Bunshaft recubrió los muros exteriores de la casa. La cara exterior, como acaba de ser explicado, enseña el muro – recubriéndolo con travertino – como “plano” estructural que sostiene la jácena y la cubierta. Ya en la cara interior del mismo muro Bunshaft cubre con yeso toda la superficie vertical disponible, o sea, el muro de bloques propiamente dicho y también la jácena estructural. Este gesto tiene justificativa en el hecho de que los Bunshaft eran coleccionadores de obras de arte, y querían tener lo máximo de superficie libre para su colocación en el interior de la vivienda. De tiempos en tiempos las obras de su apartamento en Manhattan eran intercambiadas con las de la residencia en East Hampton. Los muros internos blancos, pavimentos internos y externos en mármol travertino dotaban el espacio de una sobriedad que no permitía que las muchas obras de arte entrasen en conflicto. Otro aspecto que hizo con que la armonía espacial fuera alcanzada era la ausencia de puertas en casi todos los ambientes. La economía de elementos en el interior fue decisiva: salvo las obras, los únicos elementos percibidos por el ojo son las losas de la cubierta, los tabiques blancos – concebidos como planos elementales – y el piso de travertino. Los elementos estructurales de la casa – los muros y el forjado superior – desempeñaban también la función de configurar planos de fondo exentos. Esta condición fue alcanzada en el caso del forjado mediante la repetición de sus nervios a lo largo del espacio, y en el caso de los muros mediante la separación visual en relación a los demás elementos. Así eran percibidos como planos independientes dentro de la casa.
La búsqueda de estas cualidades espaciales depende de algunos recursos técnicos y constructivos, y de la coordinación entre los diferentes sistemas que funcionan simultáneamente en el edificio. La decisión tomada por el arquitecto de preservar las superficies interiores y exteriores evidentes (muros y techo) de toda y cualquiera influencia visual que no fueran los elementos estructurales lo obligó a idear soluciones no convencionales para resolver la acomodación de las instalaciones. Las instalaciones de climatización, ventilación y electricidad tuvieron que ser especialmente posicionadas. Para que todos los sistemas pudieran funcionar en conjunto fue necesario pasar los conductos y canalizaciones para bajo del piso de la casa. Esta condición también fue decurrente de la decisión del arquitecto de mantener las losas del forjado sin interferencias visuales. Se puede decir que los conductos de electricidad pasaban por canalizaciones empotradas en el suelo – colocadas entre el pavimento y el forjado de hormigón inferior – y también por canalizaciones colocadas detrás de los zócalos de la casa. Las canalizaciones que llevaban los cables hasta los focos de luz pasaban por encima del forjado de cubierta, perforando las losas π puntualmente.


Observando algunas fotos se puede ver que los enchufes estaban colocados al nivel del zócalo. Se percibe también que junto a los tres grandes cerramientos acristalados de la residencia existían rejillas lineales que permitían la salida de cableado, y que también podrían ser utilizadas como difusores del sistema de aire acondicionado, ya que en ningún otro caso se ven elementos de esta naturaleza. Otra hipótesis que no se puede confirmar era la de que el suelo fuese radiante, aclimatando la casa en los rigurosos días de invierno con nieve de la región. El embaldosado de travertino se adecuaría perfectamente a este uso. Lo que es seguro es que existía sistema de aire acondicionado central. Dos de los recintos contiguos a los baños de la casa podrían ser destinados a albergar los ventiladores y máquinas del sistema de climatización.
A parte de eso, se puede decir que los nervios de la estructura dotan el ambiente de parámetros visuales que permiten percibir la escala y la profundidad del edificio, evitando que se transformara en un espacio demasiadamente impersonal. El espacio existente entre los nervios de las losas y las jácenas que las sostenían fueron cubiertos con cristal, creando interesantes ventanas superiores. El efecto lumínico logrado con estos huecos era muy interesante. Si por un lado dejaba la luz del día bañar los ambientes de la casa, por otro permitía que por la noche la luz interior se exteriorizara de manera diferenciada, enmarcando las aristas interiores del forjado de la cubierta, haciendo con que el elemento se destacara visualmente. Así, se puede afirmar que la casa fue prácticamente definida por su sistema estructural soportante. Es una obra con evidente tectonicidad.

Helio Piñón explica con claridad esa condición:
“La tectonicidad es la condición estructural de lo constructivo, aquella dimensión de la arquitectura en la que el orden visual y el material confluyen en un mismo criterio de orden, sin llegar jamás a confundirse; por el contrario, avivando la tensión entre forma y construcción: la tectonicidad tiene que ver más con la condición constructiva de lo formado que con la mera sinceridad constructiva, valor, en todo caso, de carácter moral, pero ajeno a la arquitectura”.
Esa configuración de la estructura puede ser considerada independiente, pues el centro de la planta podría ser totalmente liberado, ya que los apoyos verticales son los muros periféricos laterales. Las fachadas no son libres. Pero las fachadas y sus aperturas al exterior no pueden ser vistas como paneles perforados, y sí como planos que se disponen lado a lado, entre los cuales se colocan los cerramientos acristalados de la casa. Esta condición es propiciada por la elementariedad de la estructura, que tiene apenas tres tipos de componentes: muros, jácenas y losas de forjado. Esta característica, lejos de ser un defecto, es una gran cualidad.

Other projects by Gordon Bunshaft, SOM