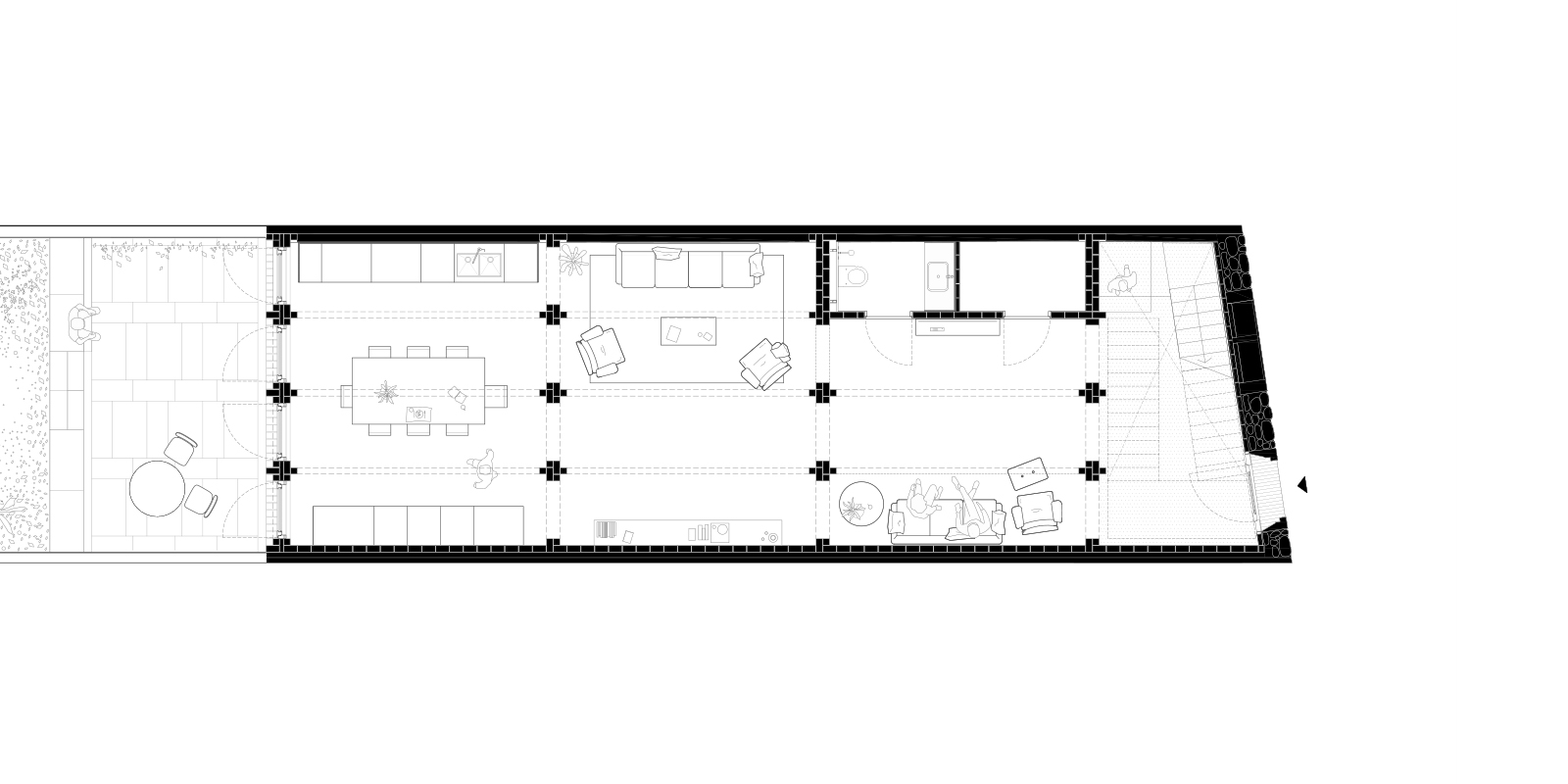
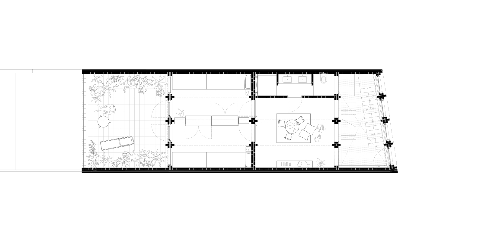
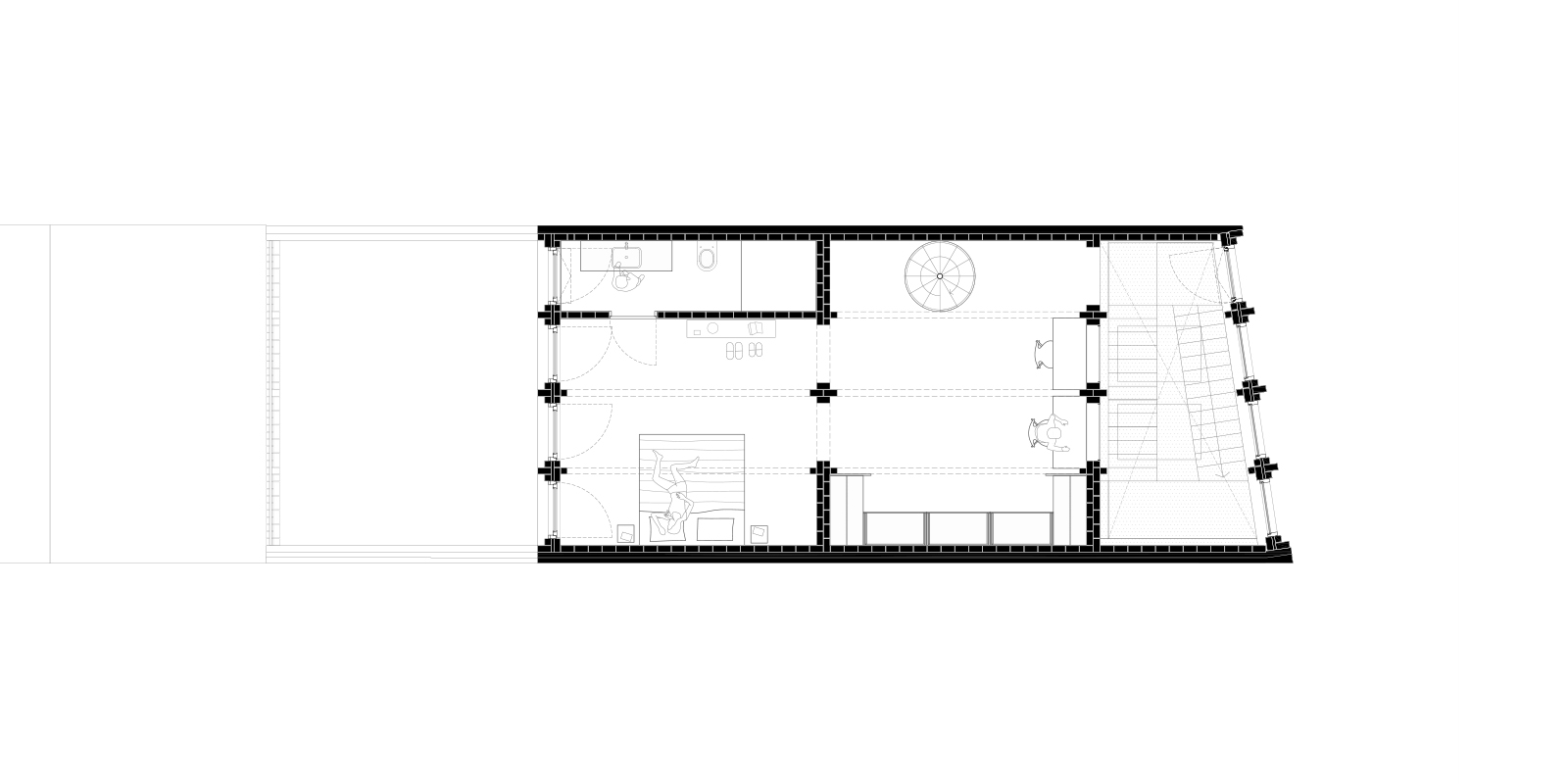
It is about a single-family house between partition walls in a dense context in Barcelona.
The proposal is defined by two elemental decisions, in one hand, to promote privacy in section by assigning a user profile to each of the three levels, on the other hand, the house is related to the exterior through the garden, placing on the street side the staircase space. Both decisions allow the floors to be practically diaphanous and the space for the stairs to function as a patio, favouring natural ventilation and avoiding any noise or disturbances from the street.
The ground floor houses the common and social uses of the family in a continuous space, it is larger than the upper floors and takes advantage of an original construction that existed on the plot. The first floor is used for the children’s room, play and study and the upper floor for the rest and work of the parents.
To adjust the diverse uses without losing the clarity of the space, the conventional bearing walls parallel to the façade dissolves in a dense grid of cross-shaped brick pillars that defines the main attributes of the space and order the uses of the floor and even of the façades. The horizontal slabs transmit the forces to the pillars through equally slender ribs.























