Giorgio Grassi + Manuel Portaceli Rehabilitación del Teatro Romano de Sagunto

Location: Sagunto, ValenciaYear: 1984-1993Images: Chen HaoSource: Manuel Portaceli
Date: March 31, 2023 Category: Classic

«Actualmente el Teatro Romano de Sagunto se presenta, a grandes trazos como una ruinas artificiales. Quiero decir, que gran parte de cuanto aparece hoy con más evidencia al visitante pertenece en realidad a las recientes intervenciones de ordenación y reconstitución de la fábrica romana.

En parte estas intervenciones dependen de comprensibles motivos de consolidación de las ruinas , en parte por una mucho menos clara voluntad de completar parcialmente el conjunto arquitectónico del monumento. Desde el punto de vista del resultado estas últimas son en buena medida las más vistosas y se prestan a algunas observaciones.

La observación más general que se puede hacer es que esta obra de complementación (de tipo mimético) no parece haber tenido como objetivo la restitución lo más fielmente posible del teatro tal como era. (tal como era según los criterios del arqueólogo) sino más bien parece haber tenido como objetivo las ruinas mismas, es decir la imagen del teatro en ruinas tal como era, acentuando en todo caso los caracteres pintorescos, sin preocuparse de tratar de restituir la idea del teatro romano y sus características distintas (en los casos dudosos: la aproximación del teatro romano por similitud o comparación con otros ejemplos contemporáneos y/o la referencia a los elementos conónicos del tipo).

Esta elección de fondo hace que el aspecto actual del monumento sea, en conjunto, infiel…»

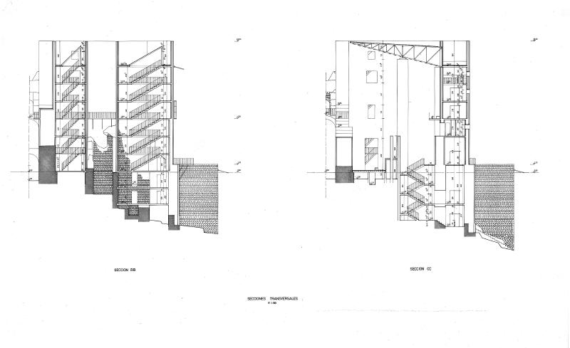
En la hipótesis que aquí se describe, ante todo, se prevé, en caso necesario, la restauración de consolidación de la estructura existente, o de liberación (como en caso de museo del que ya se ha hablado), y la parcial complementación de estructura de los muros antiguos emergentes, con el objetivo de hacer más comprensible el complejo edílicio del teatro romano, de hacer más legibles sus diversas partes , las relaciones entre éstas, la jerarquía, las funciones generales, etcétera, en fin, su concurrencia en definición de una forma arquitectónica articulada y compleja, pero sin embargo absolutamente unitaria como es precisamente el tipo del teatro romano en su breve período histórico de vigencia y en su, no obstante, larga y constante presencia en la historia de las formas de la arquitectura.

Se prevé, además, la reconstitución de aquellas partes esenciales de la fábrica del teatro que son necesarias para una restitución clara del espacio arquitectónico del teatro romano de Sagunto en su conjunto. Y esto respetando los restos arqueológicos; es más, a partir precisamente de las actuales ruinas, incluyendo también las modestas superposiciones históricas (en este caso: las actuaciones completivas, incluso las más recientes y discutibles) que no estén en contraste evidente con la calidad específica del espacio que se intenta reconstruir, es decir, con su característica unidad.

La unidad espacial de la cávea y de la planta escénica, principal elemento de individualización del teatro romano en el plano de su arquitectura, se convierte, por tanto, En el objetivo prioritario de la actuación aquí hipotetizada.

Una reconstrucción que deberá ser, ante todo, una reconstitución de las principales estructuras edilicias del teatro romano de aquellas estructuras que son necesarias para su individualización como tal. Una restitución arquitectónica desarrollada, sin embargo, siguiendo un principio de rigurosa economía (una lección de arquitectura que nos llega precisamente de la praxis constructiva romana), entendiendo con esto la realización con un mínimo de medios de cuanto es indispensable arquitectónicamente para alcanzar el fin prefijado, que es precisamente el teatro romano de Sagunto, en particular, pero también en su esencia como expresión de un tipo edilicio definido, como extraordinariamente rico y eficaz.

Esto significa que el proyecto de restauración y restitución histórica, se convertirá a rodos los efectos, en el proyecto de un teatro romano («un teatro a la manera de los antiguos romanos»). Es decir, el proyecto de un edificio teatral en parte nuevo, fundado ya sea sobre la fábrica existente (literalmente, materialmente), ya sea sobre un edificio consolidado cuya condición necesaria (utilidad y función en su sentido más amplio) está toda contenida en su forma definitiva; es decir, un proyecto que intenta recoger de la fábrica antigua todas sus características, todas sus sugerencias, todas sus indicaciones, pero sobre todo, su más general lección de arquitectura e intentar llevarla adelante con coherencia.

De modo que no sólo sus medidas, sus relaciones, etcétera, resultarán de la observación y del estudio de la fábrica antigua, sino también elecciones técnicas, funcionales, constructivas, decorativas, etcétera, que se harán necesarias durante el transcurso del trabajo, deberán tener en la fábrica y en la relación con ésta su única razón de ser como arquitectura…

This site uses Akismet to reduce spam. Learn how your comment data is processed.

Close
Close
Close