M2R Arquitectos Bamiyán Cultural Center

Source: M2R ArquitectosPhotography: M2R ArquitectosVideo: M2R ArquitectosConstruction Date: May 2016 - 2021Location: Bamiyán
Date: January 31, 2023

La Eterna Presencia de lo Ausente

Contexto

En marzo de 2001, el mundo observó como los Talibanes destruyeron dos colosales estatuas de Buda que dominaban el valle de Bamiyán en Afganistán. Las estatuas, talladas hace aproximadamente 1500 años, eran consideradas las esculturas de Buda de pie más grandes del mundo y eran parte integral tanto del Budismo como de la cultura local. Catorce años después, UNESCO convocó a un concurso internacional para construir un centro cultural con el fin de resguardar el patrimonio existente y fomentar el desarrollo social y cultural de la región. Entre 1070 propuestas de 117 países este proyecto recibió el primer premio.
Situada sobre la antigua ruta de la seda, Bamiyán es una pequeña población en la región central de Afganistán. Es la capital de la provincia homónima y el centro cultural y político de la etnia Hazara. Emplazada sobre un fértil valle atravesado por el río Foladi, la localidad se estructura en torno a este río y a un largo bazar que es el centro de actividades y de intercambios comerciales de la zona. Sobre una ondulación del terreno y vinculado al inicio del eje del bazar se emplaza el sitio del Centro Cultural Bamiyán.

 

El centro cultural busca ser un espacio social para compartir y comunicar ideas. Por lo tanto, el proyecto intenta crear, en vez de un edificio-objeto, un lugar de encuentro; un sistema de espacios donde el impresionante paisaje de los Acandilados de Buda se entrelace con la rica actividad cultural que el centro albergará. El centro cultural de Bamiyán no es algo construido en el sentido común del término sino más bien es un espacio ‘encontrado’ o ‘descubierto’ al ser excavado del suelo. Esta estrategia arquitectónica primordial crea un edificio de mínimo impacto visual que se integra con el paisaje, toma provecho de la inercia térmica y la aislación provista por el suelo, y rinde homenaje a las antiguas tradiciones constructivas locales.

 

Un nuevo parque: Los Jardines de Buda

Cuando los visitantes lleguen al sitio del nuevo centro cultural, en lugar de hallarse con un edificio sobre el paisaje se encontrarán con un jardín, un parque abierto a toda la población de Bamiyán. El centro cultural, al estar ubicado por debajo de la cota de acceso, deja las vistas panorámicas del Valle de Bamiyán y de los Acantilados de Buda completamente libres de obstrucciones. Los techos del centro cultural conforman un conjunto de miradores donde los visitantes y los habitantes locales se pueden encontrar, contemplar el paisaje y asomarse a las actividades del centro. Estos jardines son una adición fundamental al programa del encargo ya que ofrecen un espacio público que atraerá a la población local y ayudará a establecer un lazo entre el centro y la comunidad.

El Centro Cultural

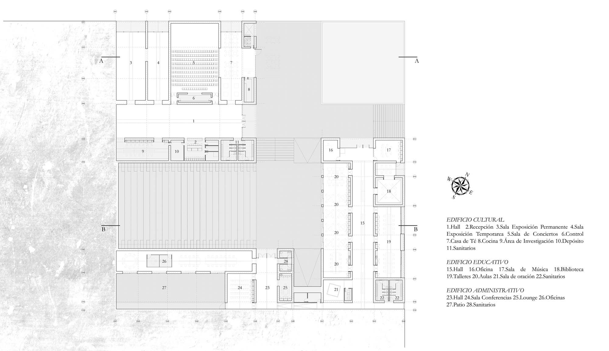
Una suave rampa alineada con el nicho de la estatua del Buda Occidental guiará al visitante hacía una plaza que funciona como corazón del centro. Esta plaza será un espacio abierto para actividades culturales. En ella, una explanada que se abre hacia las vistas del Valle de Bamiyán puede ser usada para exposiciones al aire libre y como expansión del interior del centro cultural. Desde allí, una gran escalinata que puede ser usada como anfiteatro para eventos multitudinarios da acceso al nivel superior de los miradores.
Desde esta plaza se accede a los tres edificios que conforman el centro cultural. Mientras que las actividades públicas del centro son albergadas en el Edificio Cultural, el Edificio de Educación contiene las actividades semi-públicas y el Edificio Administrativo aloja las actividades privadas. Esta división del programa en múltiples edificios permite que cada uno funcione independientemente, reduciendo los costos de mantenimiento y calefacción.

Sostenibilidad

Las variaciones extremas de temperatura en Bamiyán durante el día y a lo largo del año (entre 30 °C y –20 °C) requieren una solución radical. La principal estrategia para enfrentar este clima extremo se deriva de la tradición local de excavar espacios habitables dentro de la montaña. Al enterrar el edificio las variaciones de temperatura son reducidas por la gran inercia térmica del suelo y se consigue una temperatura estable en su interior. A su vez el calor acumulado de la tierra puede ser extraído y utilizado para calefacción. Por otra parte, el edificio está construido usando casi exclusivamente materiales de la zona, favoreciendo la economía local.

El silencio y la experiencia del tiempo

Los espacios del centro han sido diseñados para acoger la riqueza cultural de Bamiyán y para comunicar un sentido de la historia del lugar. Todos los espacios interiores son obtenidos substrayendo del suelo formas arquitectónicas primordiales como bóvedas, prismas y volúmenes piramidales. Estas formas simples hacen comprensible el proceso de substracción de los espacios del suelo. Los espacios interiores, completamente carentes de detalles u ornamentación, por su extrema austeridad, favorecen una actitud contemplativa. Claraboyas estratégicamente dispuestas crean líneas de luz que se mueven acompañando el recorrido del sol por la bóveda celeste haciendo visible el paso del tiempo. Los espacios abovedados del área de exposiciones están orientados en línea con el eje del nicho del Buda Occidental y enmarcan la visión hacia él, proveyendo un dramático fondo histórico para las manifestaciones culturales contemporáneas. Esto hace visible el contraste y la continuidad entre el pasado y el presente afgano. El silencio visual de los espacios interiores y exteriores, la rica presencia de la luz natural, y la integración del paisaje cultural de Bamiyán, confluyen para crear un lugar que pretende dar un profundo sentido de la historia.
M2R / febrero de 2015

Post Scriptum
La inauguración del centro cultural estaba prevista para comienzos de octubre de 2021. Sin embargo, el 15 de agosto, luego de una rápida y brutal ofensiva militar, los talibanes tomaron control de Bamiyán, Kabul y el resto de Afganistán. Dada la actual situación del país, su futuro es incierto.

This site uses Akismet to reduce spam. Learn how your comment data is processed.

Close
Close
Close