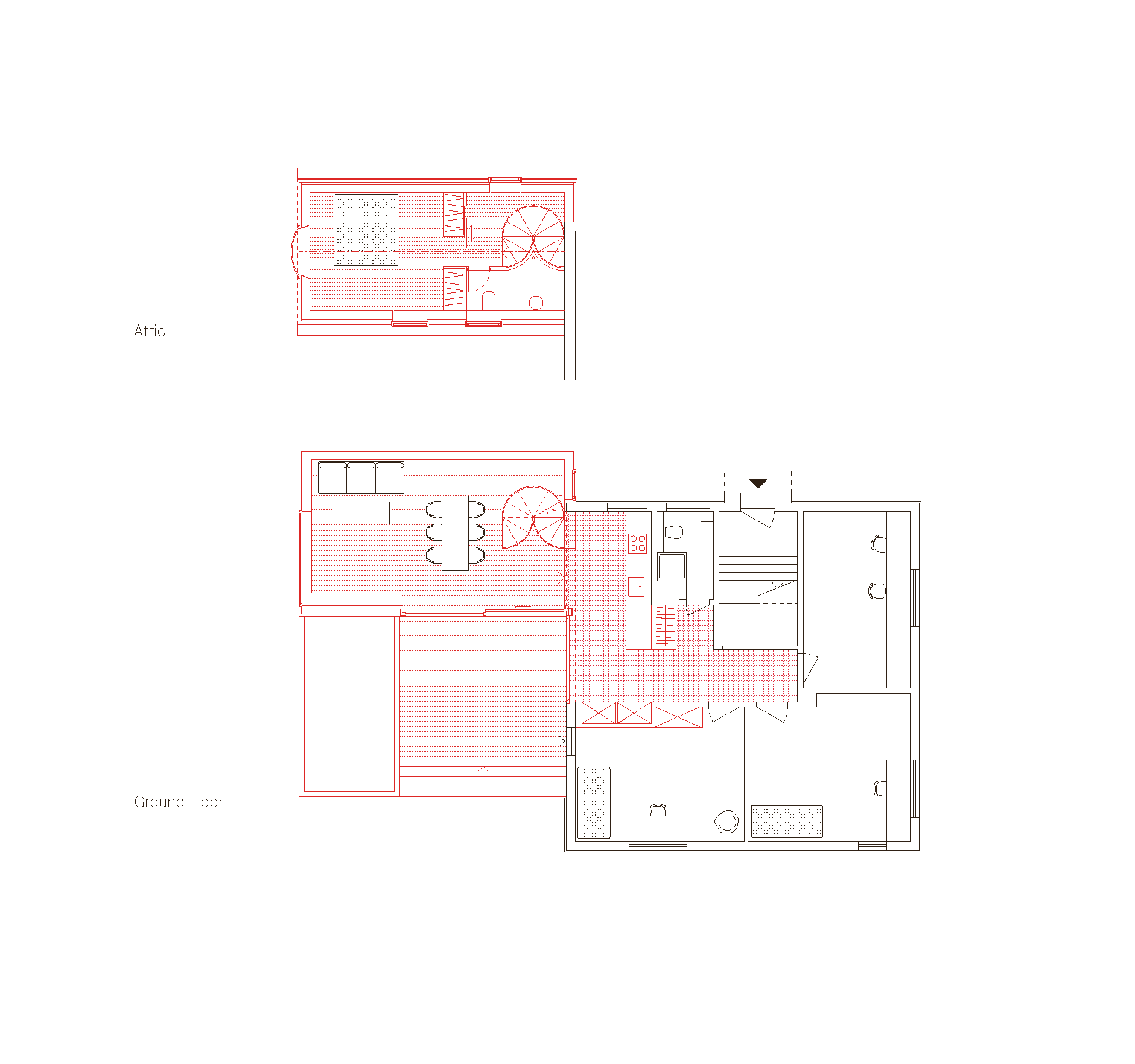
Our client, a family of four, had outgrown their 74 m² ground-floor apartment and needed more space for family life. The multifamily house from the 1930s offered the potential for an addition on the garden side to the west, which the clients initially envisioned as a one-story, flat-roofed building measuring 50 m². In the design process, we sought to augment the building by applying its inherent logic to the new elements, thus learning its language and translating it into a new one. The added construction reorganizes the floor plan, solves the daylight problem, and creates different areas in the garden that open up new possibilities for use.
The simple, wood-framed structure on raised footings was built by the clients themselves, on a footprint of just 25 m². The two-story addition now connects to the existing three-story house where there were no windows in the facade. While the addition is clearly subordinate in width and overall size, its outer appearance matches the old building in color and materials, and its roof surface extends the existing roof, thus seamlessly joining the two. Through subtle play with the proportions of the openings, the roof shape, and the materials, the addition’s appearance oscillates between dependence and autonomy. At the juncture between old and new, the west wall was opened up on the ground floor to expand the existing kitchen with a dining and living area. The large areas of new glazing visually negate the inner corner, allowing the space to flow across the adjoining terrace and into the garden. Inside and outside, new and old form a spatial unity. In the newly created rooms, the residents now have the feeling of living in the garden. From the main living space on the ground floor, a stair leads to the attic loft and divides it into bedroom and bathroom areas.
The autonomy that is already suggested by the overall form is also feasible in functional and spatial terms. An offset between the original house and the new construction enables an entry door to be retrofitted in the addition, thus allowing it to later become an independently accessible dwelling. The design takes a cue from the common rural practice of providing a secondary home on a farmstead: when a successor takes over the property, its former owner lives out his or her retirement in a smaller version of the farmhouse. Inspired by this tradition, the Auwaerter House addition can later be separated and rented as an accessory dwelling or passed on to the children.


















