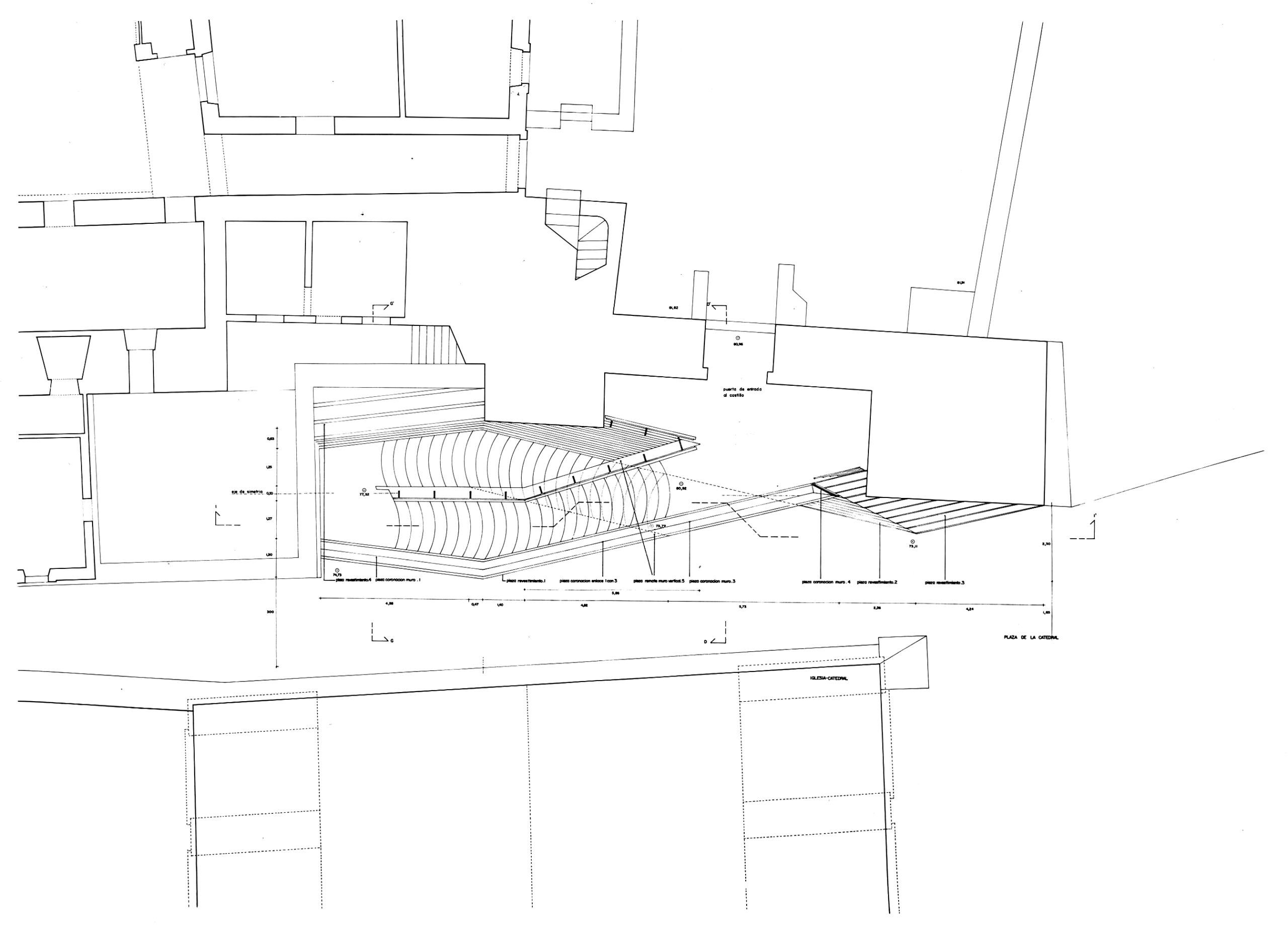
En el año 1784 y para eliminar las humedades en la pared del fondo de la nave de la catedral, se derribó la rampa que ascendía al castillo. Así apareció el callejón que comunica la plaza de la Catedral con el punto más alto del paseo de ronda de la muralla renacentista, el balcón más espectacular de Dalt Vila sobre el mar.
La nueva escalera, más amplia que la que se construyó después de aquel derribo y a la que sustituye, permite acceder a la puerta de la muralla árabe con un recorrido similar al de la rampa del siglo XVIII, que arrancaba desde la plaza y adosada a la pavordía del edificio episcopal.
Ahora el castillo tiene una puerta abierta en la plaza más antigua de la ciudad.
Sus muros se han revestido con sillares de piedra arenisca –marés- igual a la de los lienzos del recinto medieval. El rápido envejecimiento de la piedra difumina la nueva construcción con la antigua.
La escalera es de ida y vuelta, y en el techo del primer tramo aparece, incrustada en latón, la planta que en 1544 dibujara Giovanni Battista Calvi de la fortaleza árabe de la ciudad, antes de que proyectara la renacentista.
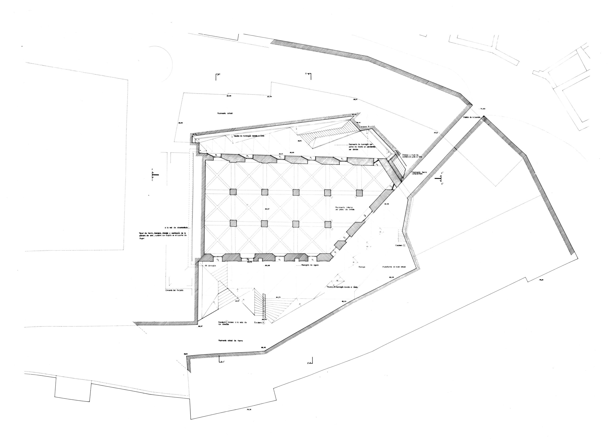
Para sanear la sala de la Antigua Casa de la Ciudad, la mejor dependencia del castillo, se han excavado patios tallados con muros de hormigón para permitir que la luz entre por los lunetos, que son la proyección geométrica hacia el exterior de los arcos interiores. La sala de la planta superior se restaura posteriormente, se limpia y mejora su accesibilidad.
Las persianas y las carpinterías son de madera de iroko, los pavimentos de travertino alicantino con piezas de forma romboidal.




























