El projecte es situa al barri de la Clota, en un emplaçament que presenta un desnivell molt pronunciat. La parcel·la d’estudi conté una antiga masia i uns horts en un context de baixa densitat i caràcter agrícola que cal preservar i que constitueixen l’esperit del barri. Es proposa un aterrassament del terreny amb murs de contenció i solucionar, al mateix temps, la connexió dels dos nivells a través d’uns recorreguts mitjançant places a diferents cotes. La reordenació del terreny contempla també la recollida de les aigües pluvials a través del Passatge Feliu que es manté com a eix transversal del projecte. Els canals i les basses constitueixen una estratègia pel rec dels horts existents i un element de proximitat a un ambient allunyat de l’habitual a la ciutat de Barcelona.
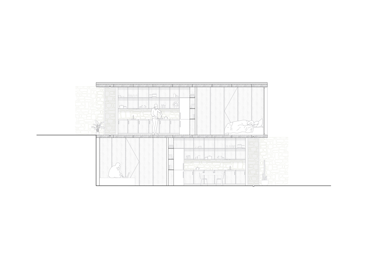
Entre murs, es situen els habitatges que sempre comparteixen un espai amb el veí situat a la mateixa cota. La disposició en secció de “Z” aprofita el desnivell i permet augmentar la densitat amb tots els habitatges en planta baixa. Aconseguint així la proximitat amb el terreny i contacte directe amb la natura, integrant el projecte a l’escala del barri i resolent l’accessibilitat de totes les unitats.
A l’interior es proposa una distribució flexible, situant els espais servidors als laterals i deixant lliure una planta diàfana que pot ser objecte d’altres usos en un futur desplaçant la prestatgeria que actua com a element divisor entre habitacions i estar.



















