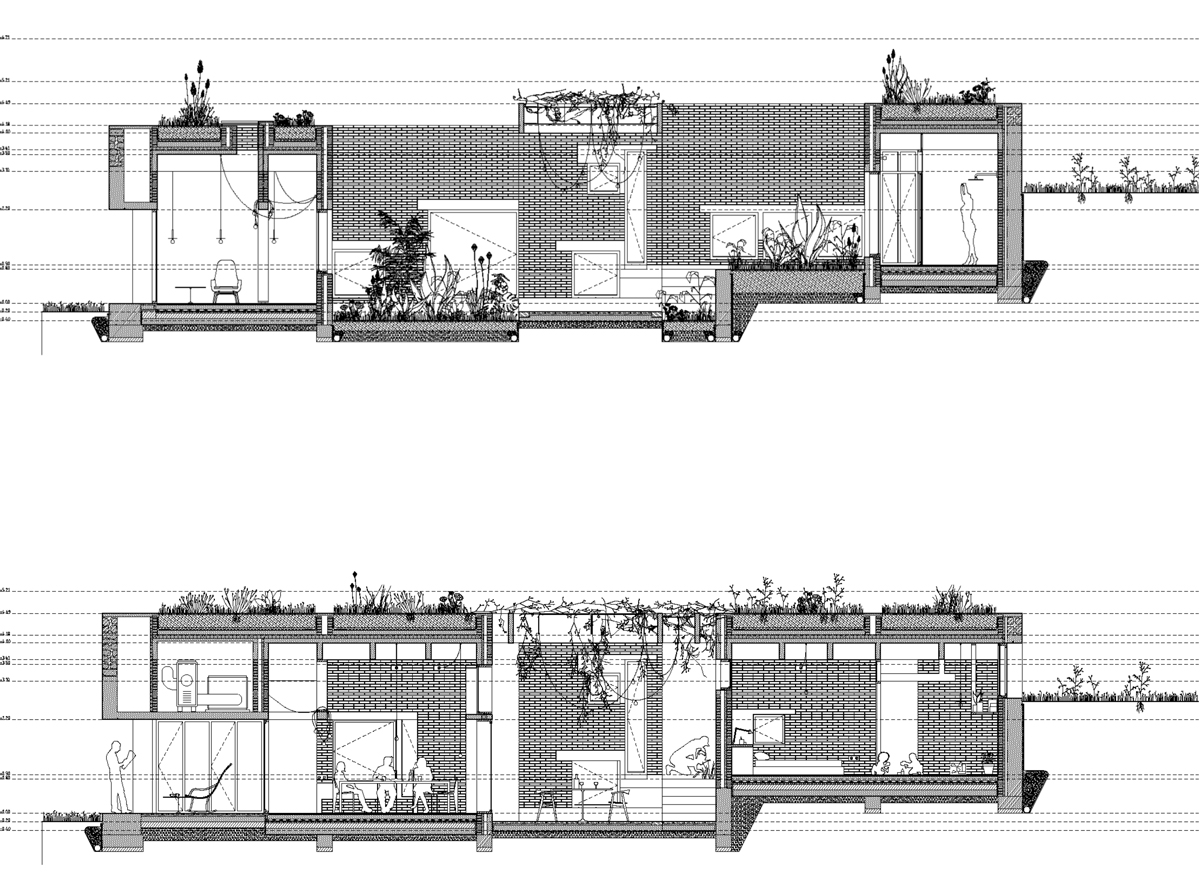
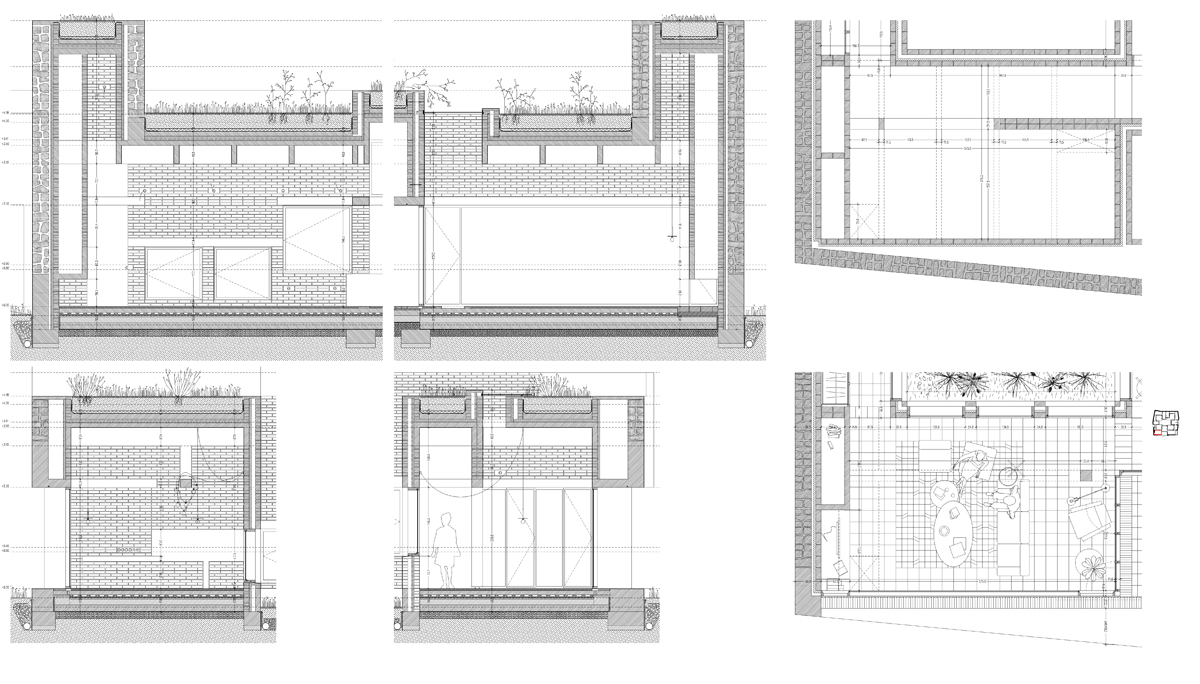
A patio house adapted to the topography of the terrain. This would be the short definition of the project. Within the definition there are two concepts: first, it is about a patio house; second, it is a house adapted to the terrain of the slope.
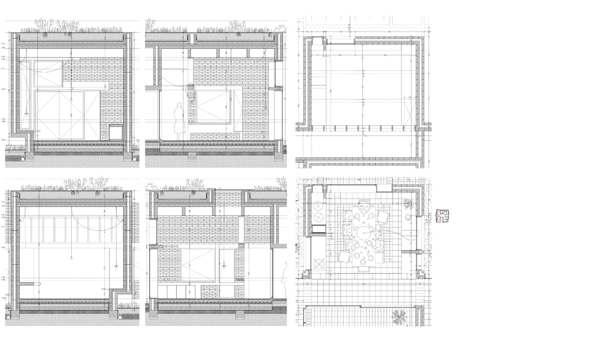
First: The patio house is part of the Mediterranean tradition. The project does nothing more than continue this tradition, bringing it closer to our days. The project is organized around a patio. A patio that comes from the old Roman impluviums, brother of the possessions cloisters or the eighteenth-century patios in the center of Palma. The patio is an element of climate control. The patio is, likewise, a space of meeting and being. The patio is part of our authentic tradition.
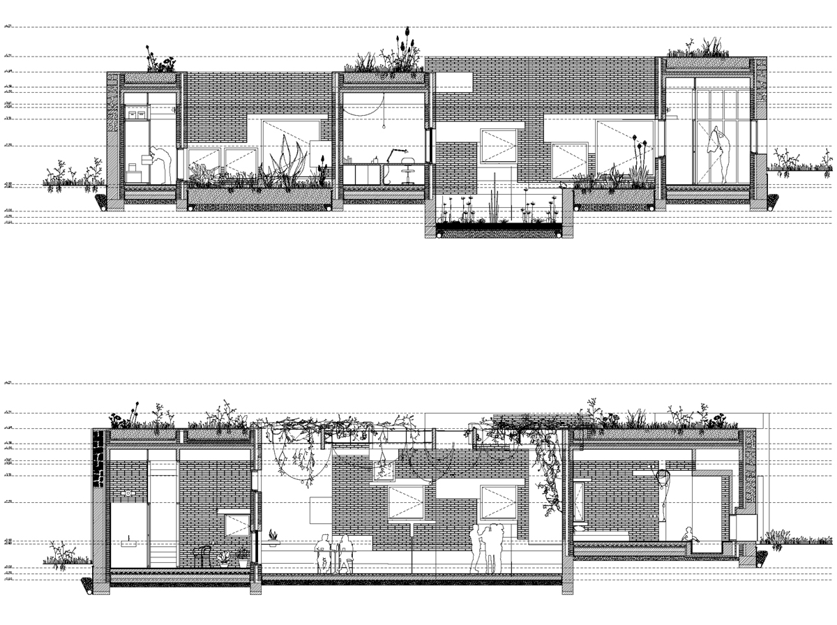
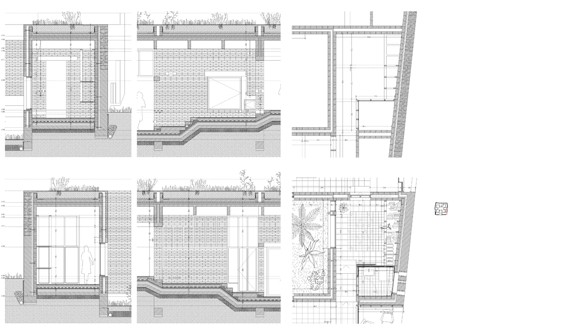
Different concepts are extracted from these patios: all of them belong to the same tradition, this is the building tradition of Mallorca. All of these constructions have a square plan approximately, but not exactly square. From the exterior, all of them are expressed almost like fortifications, with a perimeter wall, nearly impenetrable. Instead, on the interior, they are surprising. All of them open towards the patio as the central point, as a place of relationship. In these patios, spatial diversity is fascinating, porches, vine alcoves and galleries are present, all of which accompany the patios themselves.
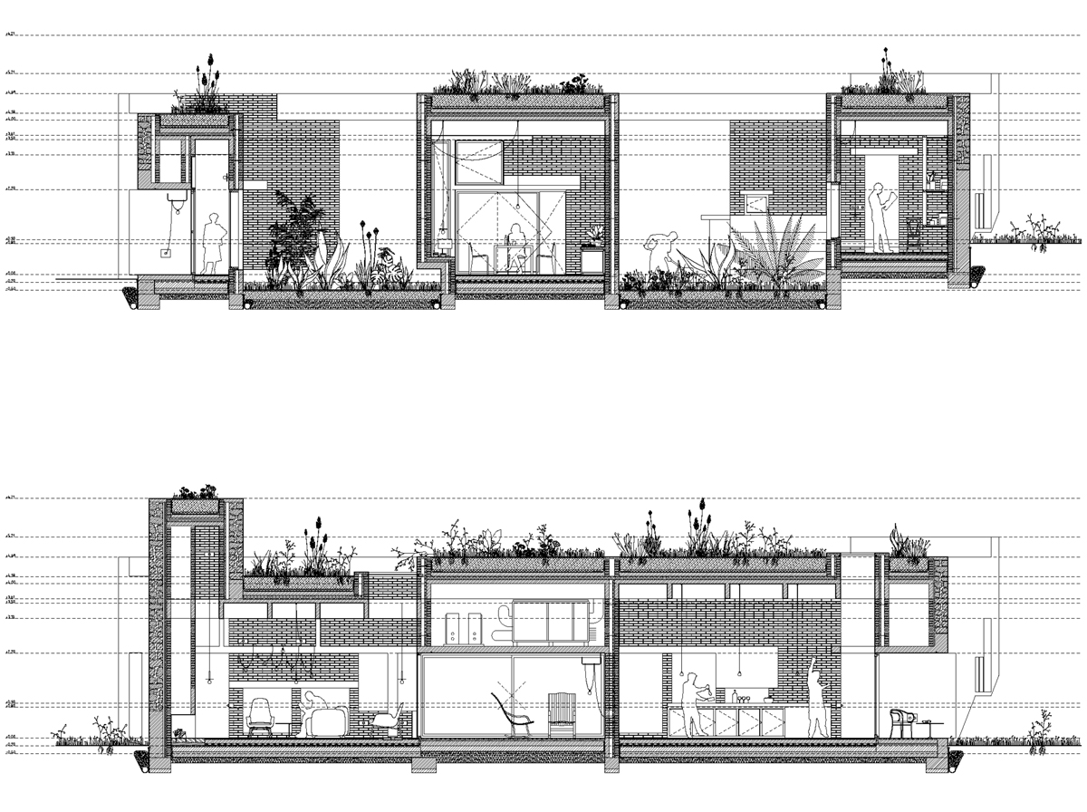
So, this is also the project we present. A project aimed to be part of this tradition, which wants to continue it. The project on the exterior is highly robust, with a solid geometry, enclosed by a bearing wall. Its plan is approximately square and its rooms are arranged around a central patio which is also accompanied by porches.
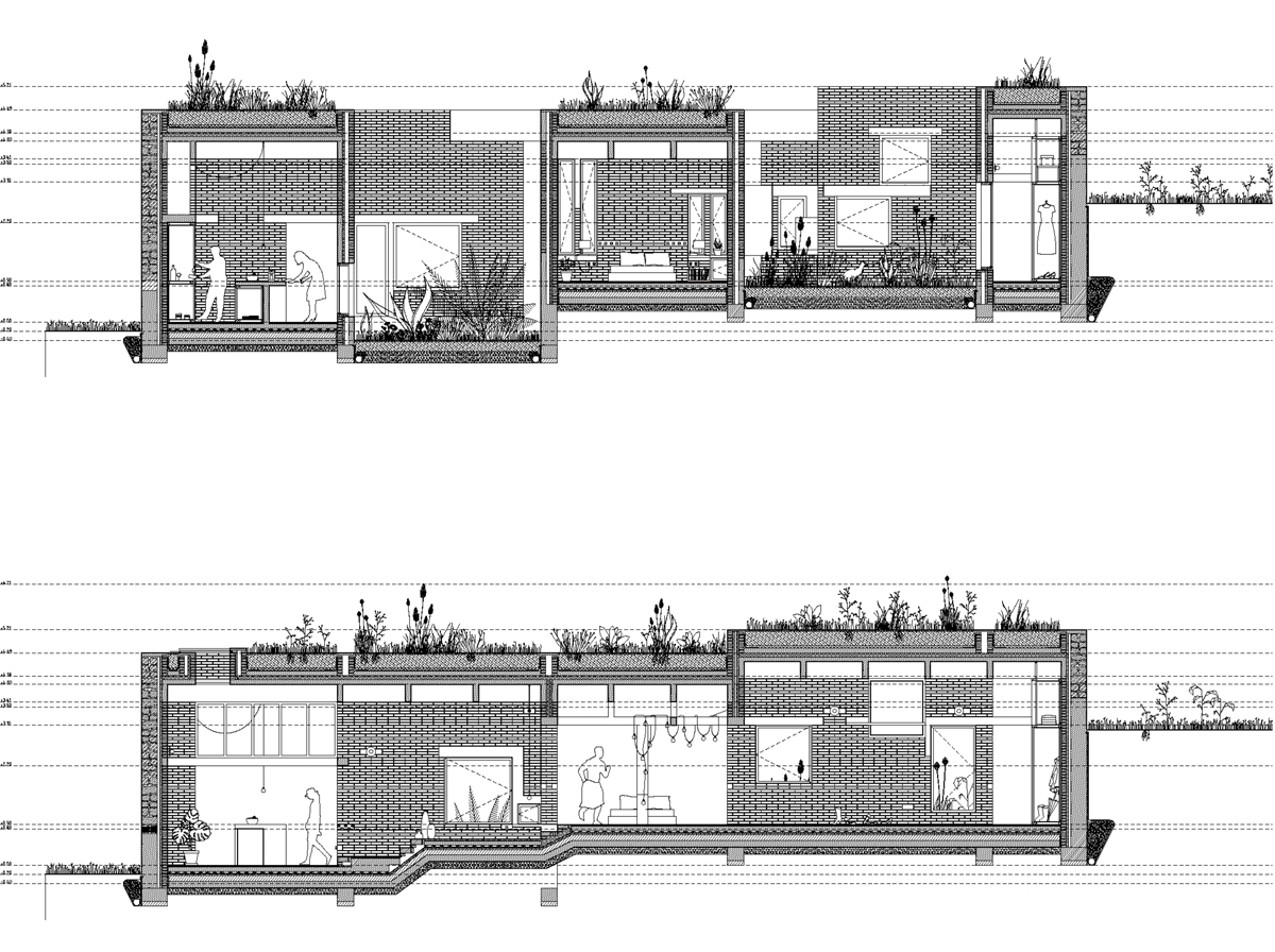
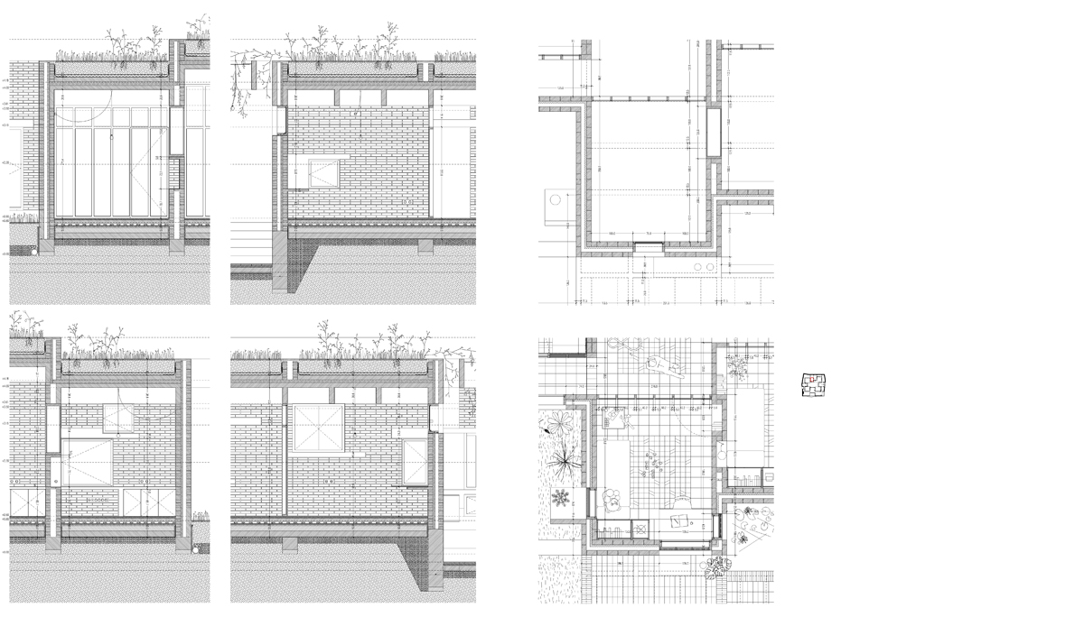
Second: The project pays special attention to the landscape integration of the house. The house is adapted to the topography. The plot has a steep descending slope towards the south and the access road is on the north side. Views to the south are unconquerable and the street is raised with respect to the plot. It is for this reason that the house is embedded into the ground, to go unnoticed, to reveal the landscape. The house is not shown as a building but is integrated into the landscape, it becomes landscape. That is why its roof can’t be any other than vegetation.
No highlighting, adapting to the topography, diluting in the landscape, taking part of the landscape, being landscape, these are the main premises of the project. A simple geometry and a compact volume are the results of a home that attempts to pass unnoticed, taking advantage of the slope of the plot and is embedded into the ground, to allow the views from the street. With the desire of becoming integrated into the landscape, a roof of vegetation is proposed, planted with native grasses and shrubs. With the same intention, the perimeter walls of the house are of cyclopean concrete, built with stone extracted from its own terrain. The house doesn’t want to be an immaculate shiny volume, doesn’t want to be falsely young, doesn’t want to be passively contemplated. The house wants to have textures and wrinkles, wants to be able to absorb the patina of time, wants to be lived actively, as is the case with traditional constructions.
Una casa patio adaptada a la topografía del terreno. Esta sería la definición resumida del proyecto. En la definición encontramos dos conceptos: primero, se trata de una casa patio; segundo, es una casa adaptada a la pendiente del terreno.
Primero: La casa patio forma parte de la tradición arquitectónica mediterránea. El proyecto no hace más que continuar esta tradición acercándola a nuestros días. El proyecto se organiza alrededor de una clastra, un patio. Un patio que es heredero de los pretéritos implúviums romanos, que es hermano de los claustros de las posesiones o de los patios decimonónicos del centro de Palma. El patio es un elemento de control climático. El patio es, así mismo, espacio de encuentro y estar. El patio forma parte de nuestra auténtica tradición.
Diferentes conceptos se extraen de todos estos patios: todos ellos forman parte de la misma tradición, la tradición constructiva mallorquina. Todas estas construcciones tienen una planta aproximadamente cuadrada, pero no exactamente cuadrada. Todas ellas se muestran exteriormente casi como fortificaciones, de perímetro murario, prácticamente impenetrables. En cambio, interiormente son sorprendentes. Todas ellas se abren al patio como punto central, como lugar de relación. En estos patios la diversidad espacial es fascinante, aparecen porches, parrales y galerías que acompañan a los propios patios.
Así es también en Can Jaime i n’Isabelle. Un proyecto que pretende formar parte de esta tradición, quiere continuar con ella. El proyecto se muestra exteriormente muy robusto, de geometría sólida, recintado por un muro portante. Su planta es aproximadamente cuadrada y sus estancias se organizan alrededor de un patio central que también se acompaña de porches.
Segundo: El proyecto presta especial atención a la integración paisajística de la casa. La casa se adapta a la topografía del terreno. La parcela tiene una fuerte pendiente descendente en dirección sur y la calle de acceso en su lado norte. Las vistas hacia el sur son inmejorables y la calle está elevada respecto a la parcela. Es por este motivo que la casa se incrusta en el terreno, con tal de pasar desapercibida, para dejar ver el paisaje. La casa no se muestra como edificación sino que se integra en el paisaje, se convierte en paisaje. Por esto mismo su cubierta no puede ser más que vegetal.
No destacar, adaptarse a la topografía, diluirse en el paisaje, formar parte del paisaje, ser paisaje, estas son las premisas principales del proyecto. Una geometría sencilla y un volumen compacto son el resultado de una vivienda que intenta pasar desapercibida, que aprovecha el desnivel propio de la parcela y se incrusta en el terreno con tal de permitir las vistas desde la calle. Con la voluntad de integrarse en el paisaje se propone una cubierta vegetal, sembrada de hierbas y arbustos autóctonos. Con la misma intención, los muros perimetrales de la casa serán de hormigón ciclópeo, construidos con piedra extraída del propio terreno. La casa no quiere ser un volumen inmaculado y reluciente, no quiere ser falsamente joven, no quiere ser contemplada pasivamente. La casa quiere tener texturas y arrugas, quiere ser capaz de absorber la pátina del tiempo, quiere ser vivida activamente, tal y como pasa con las construcciones tradicionales.




















































































1 Comment
Un proyecto exquisito. Quizás el pavimento interior es lo único que no me entusiasma tanto como el resto. Le da una sensación demasiado fría al espacio en relación a lo que me imaginaba viendo los planos y el contexto.