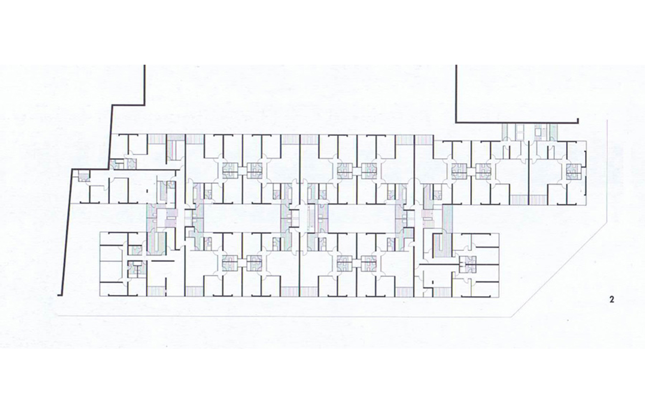
Este proyecto retoma la crítica del GATCPAC contra la normativa del Eixample de Barcelona, donde la profundidad edificable de 28 m impide una adecuada distribución racional de las viviendas y obliga a introducir patios. Para evitar este problema, Bonet Castellana plantea una solución que ya habían ensayado previamente los arquitectos Oriol Bohigas y Josep Martorell en el edifico de viviendas de la calle Roger de Flor 213-215, es decir, divide el edificio en dos bloques paralelos y los une a través de los núcleos de circulación vertical. Al llegar a la esquina, cada uno de los bloques acaba definiendo su propio testero sin repetir el chaflán característico del plan Cerdà. Por lo que respecta al espacio público, las aceras de 5 m del Eixample no son lo bastante anchas como para permitir una vida urbana confortable. A menudo las aceras están saturadas de mobiliario y vehículos mal aparcados. Para evitar este problema y aumentar el espacio público, Bonet decide elevar el primero de los bloques sobre pilotes, creando un gran porche que aumenta el espacio público y lo conecta con los locales en planta baja del segundo bloque. Los pilotes están resueltos en forma de V, de tal forma que recoge los pilares de la fachada uniéndolos de tres en tres en un solo punto, y aumentando la sensación de ligereza del edificio.
Bibliografía: BONET, ed. Espacio Editora S.A. p.173-177 | BONET, ed COAC y Ministerio de Fomento
“…Se analizaron dos soluciones y las autoridades aprobaron la realizada que es, a su vez, la más tímida. La solución consiste en destruir la profundidad de 28 metros y el chaflán de 20 metros que une las caras de la manzana. Se ha planteado la solución a base de estrechos bloques paralelos unidos por las columnas de circulaciones verticales suprimiendo de esta manera los pozos de aire y luz. Al llegar al chaflán, cada uno de los bloques desarrolla su propia terminación independientemente del mismo.”
“…Por otro lado, las calles de 20 metros previstas por Cerdà y ejecutadas en el Ensanche de Barcelona, son, a pesar de su gran amplitud original, notoriamente insuficientes. Los 20 metros de calle están distribuidos en dos aceras de 5 metros cada una y una calzada de 10 metros. En el ejemplo que nos ocupa se ha traducido como idea básica un pórtico de gran amplitud en forma de acera cubierta de tal manera que los actuales 5 metros de acera puedan convertirse en aparcamiento en batería, quedando los 10 metros de calzada dedicada exclusivamente a circulación. Estos pórticos han sido resueltos a base de un sistema de pilares, en el cual cada tres pilares de la fachada convergen en uno solo en planta. ”


























