Equipamiento público destinado a alojar un centro de formación para adultos, una sede del consorcio de normalización lingüística y un hotel de entidades en una parcela triangular del distrito de les Corts. Dos de las tres caras del solar quedan definidas por la fachada protegida de la antigua cristalería Planell que se estableció en la calle Anglesola el año 1913.
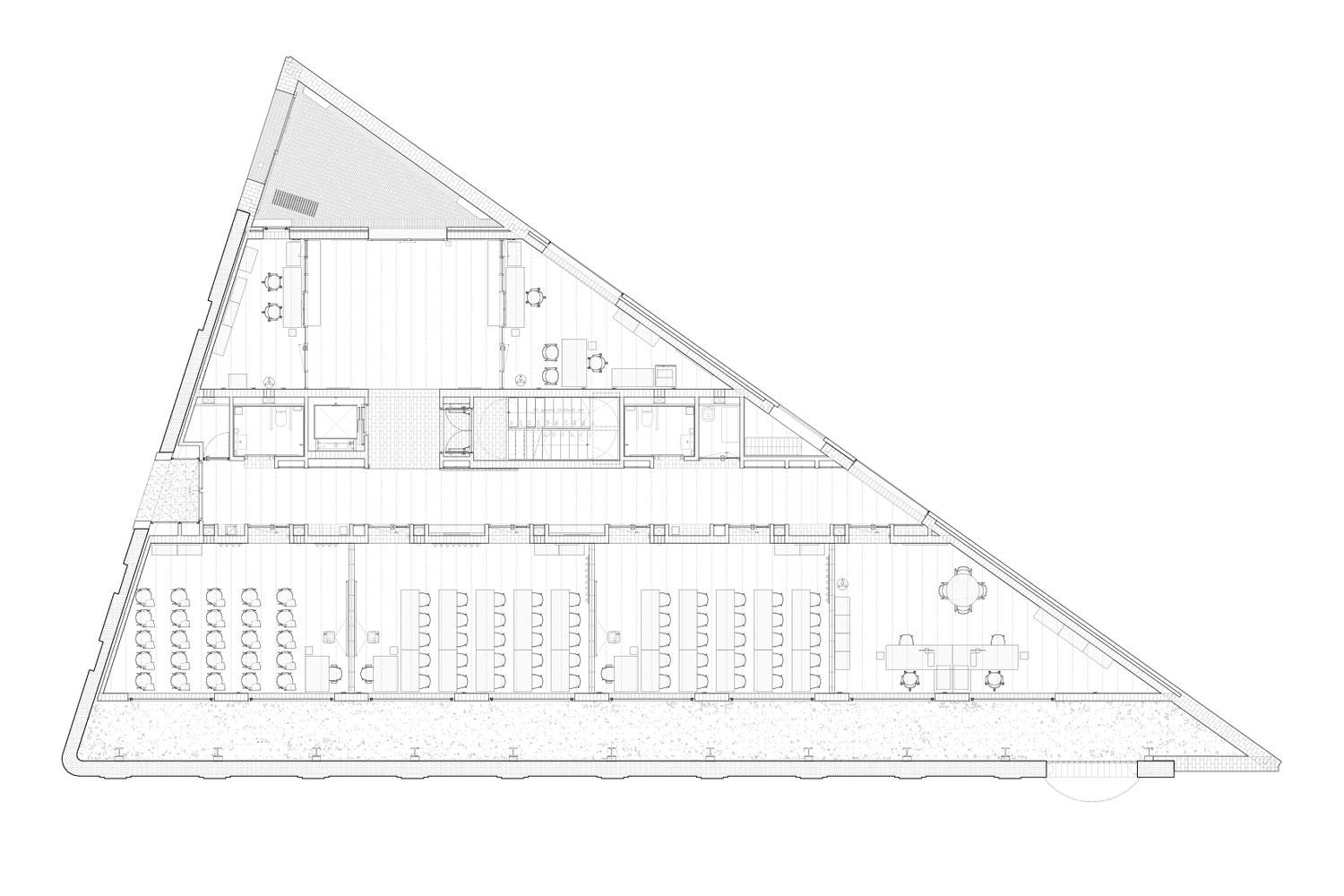
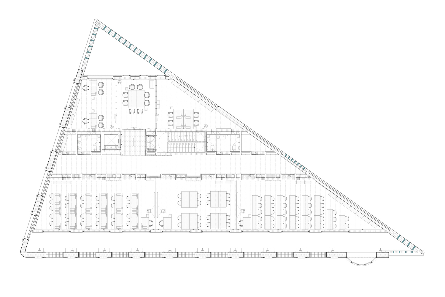
El edificio, como pieza urbana, aprovecha la parcela en su totalidad, pero la forma triangular y las fachadas catalogadas impiden una ocupación completa del solar. El edificio reparte el programa en cuatro plantas que se retiran de la fachada patrimonial Sur, el patio cubierto resultante permite compatibilizar edificación y patrimonio mejorando las condiciones de luz natural de los espacios de aulas a la vez que aporta un cojín térmico y acústico respecto al entorno. Este patio largo y estrecho formado por la fachada patrimonial y la nueva fachada estructural, se reproduce en el vértice Norte como sistema de relación con el exterior de os usos administrativos del edificio, agotando la geometría triangular.
La sección del edificio explica su comportamiento: el control y la gestión del aire en condiciones naturales. En invierno es necesario controlar las pérdidas por renovación, amortizar la alta carga interna acumulada en la inercia de una estructura muraria y captar el aire limpio desde el patio que actúa como recuperador natural. En verano se trata de disipar moviendo el máximo volumen de aire posible y capturar el aire desde los patios vegetados y sombríos. Los motores del movimiento de este aire serán estrictamente naturales a partir del uso de chimeneas solares y sombreros con efecto venturi. La ventilación cruzada entre patios queda descartada por programa y para evitar conflictos acústicos, por tanto el edificio dota cada franja de espacios de uso con una larga interrupción estructural por donde el aire circulará en vertical “estirado” por la potencia del sol en las chimeneas, que a la vez dotarán el edificio de una silueta y una materialidad transparente y característica.
El volumen resultante responde a la estricta geometría triangular del solar, por su potencia y por su función urbana. Su materialidad cerámica responde a la voluntad de poner en valor la fachada patrimonial integrandola y no singularizándola, usándola y no sacralizándola, por tanto ponemos prácticamente en el mismo plano lo nuevo y lo viejo con materiales y técnicas similares y asumiendo en los dos casos obligaciones de cerramiento, de captación, de ventilación de cámaras y patios. La materialidad se compone a partir de razones estructurales y se complementa para mejorar las condiciones de luz de los patios y dotar la fachada de un material vinculado a la memoria de la cristalería Planell. Se ha introducido el bloque de vidrio macizo como parte del cerramiento murario que permite introducir luz al patio norte y captación al patio sur.
La principal estrategia para la eficiencia energética del edificio es la de reducción de la demanda a través de la optimización de la luz natural, ventilación natural e inercia, pero para alcanzar los niveles de confort normativos es necesario asumir el uso de sistemas de producción de calor y frío altamente eficientes (geotermia). Este mínimo consumo energético (el edificio tiene un consumo máximo de 30 KW., Una tercera parte del consumo de un edificio de referencia) debe equilibrarse con un porcentaje de producción con el fin de asumir la responsabilidad de los equipamientos municipales para llegar al “Nearly cero”.
El equipamiento genera energía eléctrica con placas solares flexibles integradas en las chimeneas solares. La capa absorbente de la chimenea solar es una lámina negra que debe adquirir altas temperaturas para producir el movimiento del aire. Se realizaron pruebas durante la construcción para confirmar que las placas solares FV. mantenían la temperatura exigida en las simulaciones de la capa absorbente, por lo tanto, en las orientaciones más óptimas de las chimeneas, se instalaron 12 m2 de placas (3 KWp) que, sin reducir la potencia de la chimenea, producen electricidad de autoconsumo.
Las dos herramientas básicas de confort climático del edificio son el aprovechamiento y activación de la inercia (estructura portante) y el movimiento del aire. No existe acondicionamiento artificial del aire, pero si que hay que moverlo de forma controlada e intencionada; en invierno debe moverse poco para amortizar las altas cargas internas debidas al uso docente (en base a sensores de CO2), en verano se debe mover por temperatura y en cantidad suficiente para sacar la carga interna y evitar sobrecalentamientos.
La herramienta que mueve este aire es un motor natural que actúa al mismo tiempo como cubierta del edificio. Consiste en cuatro chimeneas solares que generan, gracias a su materia y geometría, tres sistemas naturales de ventilación: El efecto chimenea producido por la diferencia de altura con los espacios interiores, el efecto venturi producido por los sombreros de remate que garantizan ventilación nocturna y, por último, el efecto invernadero producido por la superposición de una superficie transparente (ETFE) sobre una superficie negra.
Las temperaturas a las que llega el sistema son mucho más altas en verano (necesarias para mover 16.000 m3 / h) que en invierno. La geometría piramidal de las chimeneas responde al movimiento del sol a lo largo del día en época estival.




















