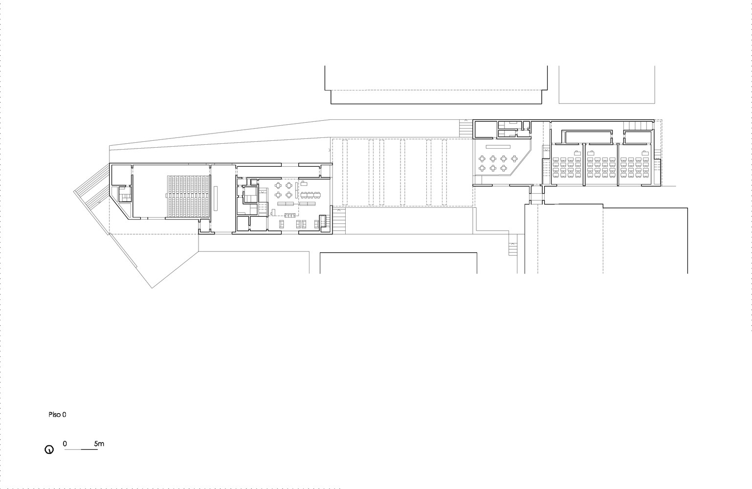
The modernization project of the School Garcia de Orta, based on the construction of a new building, whose location, program and relationship with the existing built and empty spaces, can set a new centrality in the plot, providing the school new program areas essential to the new times.
This building, placed longitudinally in relation to school grounds, and an intermediate elevation view of the morphology of the terrain, allows the creation of a covered outdoor plaza that will serve as the epicenter of the whole school life, and supports two built spaces where we find the library, auditorium, bar / cafeteria, laboratories as well as other support equipment.



























