‘Layered house’ by japanese practice jun igarashi architects is a two-storey dwelling for a family of four located east of hokkaido in the old city district of saroma-cho. The design designates long slices of the floor plan to separate programs, creating with a linear compilation a house that is literally layered from one end to the other.
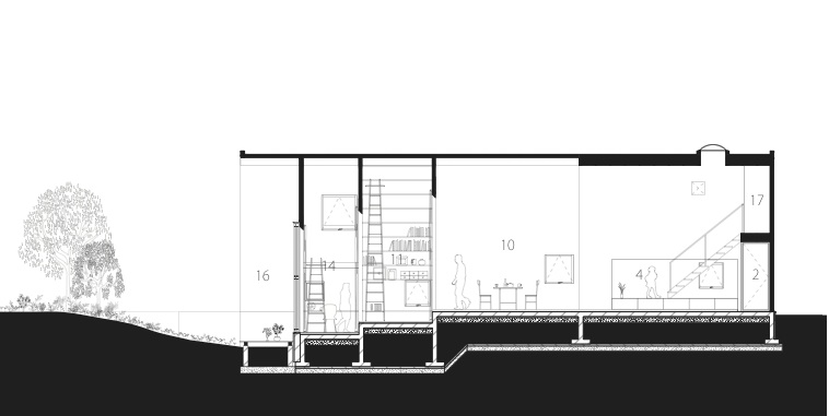
The site is surrounded by a heavily-used street to the north, a co-op farm to the east, a warehouse to the west, and the house of the clients’ parents to the south. Taking these conditions as a point of departure, the design pins its directionality to the south where a small garden is placed and creates a closed-door atmosphere for the rest of the house, creating a sense of ease and comfort for the inhabitants. The north, east, and west faces are limited in windows while a large opening to the south places natural light at the center of focus.
The series of buffer spaces created by the terrace, sun parlor, and guest room act as volumetric layers that diffuse the light. semitransparent curtains between these spaces give the inhabitants control over how connected the interior is to the exterior. This element of layers becomes a motif for the house and is able to be seen from multiple rooms through square apertures and openings.


















