El proyecto se sitúa al oeste de Nantes, en un barrio con muy baja densidad urbana. La parcela está situada en la confluencia de dos calles. Una, la arteria principal del barrio, está formada alternadamente por pequeños edificios de viviendas de entre 3 y 4 plantas y viviendas unifamiliares de dos niveles. La otra calle, de apenas un centenar de metros de longitud, está ocupada exclusivamente por viviendas medianeras también de dos niveles. Excepto una sola vivienda, cuya fachada se oculta tras un generoso jardín, el resto de las construcciones están totalmente alineadas a la calle. Salvo por nuestra vivienda, ninguna medianera es visible.
La parcela es pequeña, de apenas unos 100 m², poco profunda, y está orientada a sudoeste. La vivienda existente, que ocupa unos 75m², presenta la tipología típica nantesa de los años 30, con la planta principal elevada de un semi‐nivel respecto a la calle y con un sótano semi‐enterrado. La planta alta cuenta con los únicos dos dormitorios de la vivienda, y un pequeño garaje independiente viene a cerrar la parcela hacia el oeste.
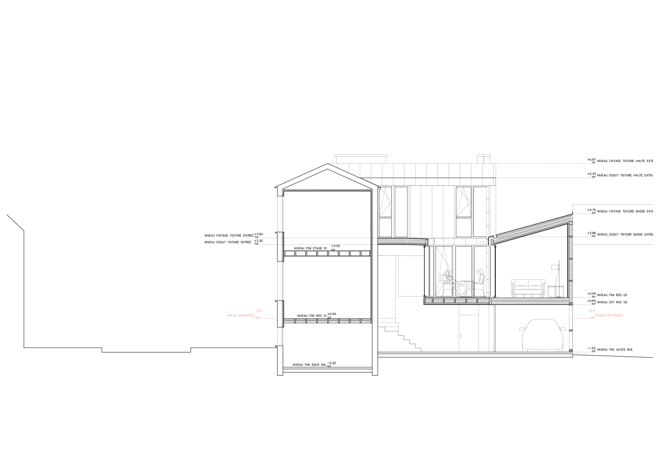
La vivienda existente tiene forma de « L » y está enteramente alineada sobre la calle principal, donde desarrolla su altura maxima de dos plantas y media. Al retornarse sobre la otra calle marca singularmente ese ángulo urbano para luego retroceder de un par de metros y descender su altura hasta un solo nivel.
En el retroceso respecto la calle deja totalmente aparente la medianera de la construcción vecina, revestida de lamas de PVC.
Las necesidades programáticas de los clientes superan con creces las posibilidades de redistribución de la vivienda.
El proyecto propone conservar el volumen principal de la construcción para preservar los trazos históricos que desaparecen paulatinamente del barrio. La demolición del volumen de la cocina y del garaje permiten ampliar la vivienda desarrollando una nueva implantación en forma de « U » alrededor de una terraza elevada. De esta manera, la nueva construcción se separa de la existente realzando su volumen, al mismo tiempo que consolida la fachada de la calle secundaria.
La entrada se produce ahora bajo la terraza, retirada respecto a la calle, y a través de un porche abierto y de generosas dimensiones que borra los límites físicos entre la parcela y el espacio público. La alineación con la calle se ve reforzada por la presencia de una jardinera a media altura que confiere cierta privacidad a los espacios que envuelven la terraza.
En el proyecto se ha conservado y accentuado la distribución característica de la vivienda en semi‐niveles. En la distribución, la antigua cocina se ha transformado en comedor y ésta ha pasado cuatro escalones más arriba, en la nueva extensión junto al salon. En el primer nivel, y en el lugar del antiguo salon y comedor se situa la habitación principal. En el segundo nivel, se han conservado las dos habitaciones existentes y se ha añadido una tercera sobre el comedor.























