L’ampliació de l’escola Thau de Sant Cugat del Vallès ha tingut per objecte dotar a l’escola de les dependències necessàries per a poder tenir una tercera línia per a educació infantil, primària i secundària. I al mateix temps, millorar el servei de restauració de l’escola i arranjar els diversos espais exteriors del conjunt.
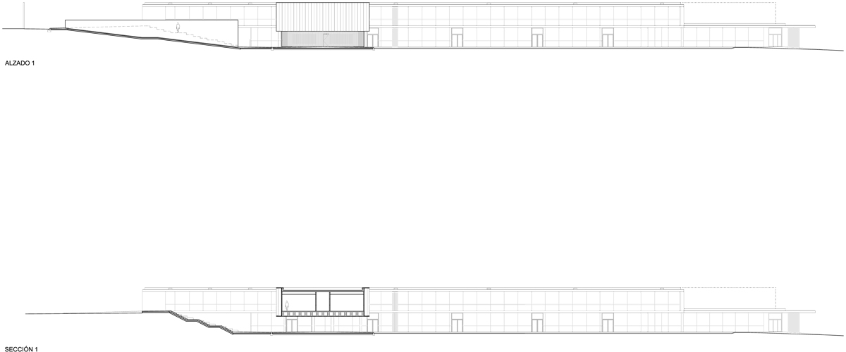
L’edifici existent està organitzat en forma de pinta amb un passadís principal a doble nivell que organitza els diversos aularis i les altres dependències de l’escola. Una de les principals actuacions que s’ha dut a terme en la nova ampliació ha consistit en disposar un nou aulari de forma perpendicular a aquest passadís principal. Aquest aulari subdivideix el pati exterior en dos espais diferenciats, una àrea de jocs i un amfiteatre. En la planta inferior d’aquesta nova barra es genera un gran porxo pavimentat i lliure de pilars que permet disposar d’un espai de jocs protegit de la pluja o del sol, que a més a més, estableix una comunicació directe entre els dos subespais exteriors esmentats. Les aules de la planta superior es protegeixen amb unes grans lames verticals que contrasten amb la façana vidriada preexistent i ajuden a configurar la nova imatge exterior de l’escola.
El nou amfiteatre es situa a la banda nord del nou aulari, aprofitant el desnivell topogràfic existent entre l’àrea destinada a pistes esportives i l’àrea del pati de jocs. L’amfiteatre es resol amb una sèrie de grades que permeten la realització d’actes amb la presència de tota la comunitat escolar. Així, l’amfiteatre ha passat a ser el nou cor de l’escola, un element de referència vinculat al sistema pedagògic de la institució que durant molts anys va desenvolupar en Joan Triadú, …un espai que ens remet a l’amfiteatre que ja existeix a l’escola Thau de Barcelona, projectat el 1972 per Martorell, Bohigas i Mackay.
Per altra banda, l’escola tenia una cuina molt petita i un accés principal que no era massa visible des de l’aparcament exterior. En el marc de les noves actuacions; s’ha ampliat l’aparcament exterior, s’han realitzat unes noves pistes esportives i s’ha plantejat una nova edificació que permet ampliar l’espai de cuina i serveis generals i configurar la nova entrada principal a l’escola. El nou volum es separa de l’edifici preexistent, generant dos patis per tal d’intervenir el mínim possible en les façanes existents. Des del camí pavimentat exterior que travessa tota l’àrea de l’aparcament exterior es pot accedir a un gran porxo en voladís que senyala l’entrada principal de l’escola. Aquesta entrada es materialitza en forma de vestíbul connectant directament amb el passadís principal interior que relaciona les diferents dependències de l’escola.
Finalment, també s’han realitzat altres ampliacions i diverses petites intervencions per tal d’integrar el nou programa requerit. En la major part d’aquestes intervencions s’han utilitzat els mateixos recursos arquitectònics de l’edifici original on hem intervingut.





















1 Comment
Muy bonitas