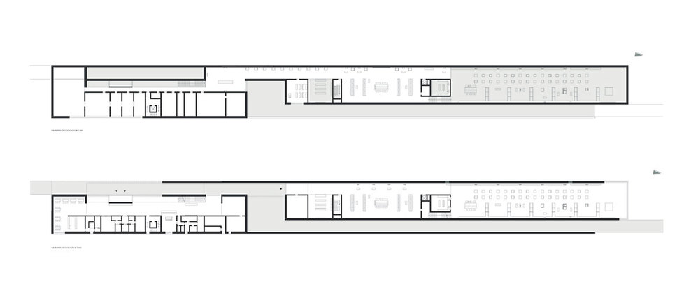
At almost 200 meters long, the Documentation and Information Center at Bergen-Belsen Memorial, which is made almost entirely of concrete, is an unusual structure. There are two paths through the Documentation Center: one is an open passageway or “stony path” that leads directly to the grounds. The second leads visitors to the exhibition rooms, which document the history of the site from prisoner of war camp to concentration camp.
Documentation Center Bergen-Belsen Memorial KSP Jürgen Engel Architekten
Source: EuropaconcorsiPhotography: Klemens Ortmeyer
Date:
January 6, 2016














