La escuela se ubica en el tejido urbano del centro de Sabadell. En una esquina donde dos edificios alineados a la calle conforman un gran patio con un polideportivo soterrado en el interior de la manzana.
El proyecto solo interviene en el edificio más antiguo (1959), que acoge las clases de los más pequeños, y en unos pocos espacios exteriores.
La estrategia fundamental de la propuesta es agotar todo el potencial de la edificación existente, tanto a nivel de superficie construida cómo a nivel de espacios utilizables.
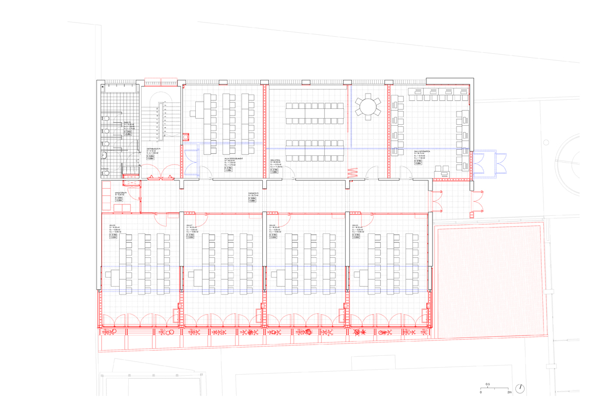
Las principales intervenciones son: una rehabilitación interior integral; una pequeña ampliación, de 240m2 añadidos a los 1.200 existentes, con una nueva fachada sur, al patio; también la habilitación de dos nuevos espacios de juego exteriores, en la azotea del propio edificio y en la cubierta del acceso al polideportivo soterrado; y, por último, un nuevo porche en la entrada.
El edificio original no tiene ningún valor patrimonial objetivo pero sí cierto valor material cómo infraestructura preexistente. También le reconocemos un doble valor sentimental, ‘carismático’ por ser el edificio más antiguo de la Escuela y ‘atmosférico’ por la pátina que el paso del tiempo ha conferido a la materia (muros de cerámica manual con junta muy rehundida, techos originalmente ocultos de viguetas de hormigón y vueltas cerámicas, etcétera).
Nos interesa esta materia preexistente cómo elemento constructivo con alma, y nos fijamos cómo objetivo central de la intervención, tanto en el interior cómo en la fachada preexistente de la calle, sacar partido y potenciar la relación –y la tensión- entre las partes antiguas y los nuevos añadidos (imprescindibles).
La intervención más costosa del proyecto, no prevista en las bases del concurso (2.009) y gracias a la cual ganamos, es la ampliación del edificio, justificada por la falta de superficie de las aulas de la crujía que da la calle. Pero paradójicamente, ampliamos por la otra fachada, la del interior de manzana –evidentemente no podíamos crecer hacia la calle-, pasando de 15,5 metros de profundidad edificada a 18,5.
En la planta baja ampliamos las aulas infantiles, qué dan al patio, pasando de 35 a 50m2, manteniendo el pasillo en el sitio original. Por el contrario, en las plantas piso ampliamos las que dan a la calle, desplazando el pasillo al otro lado de la pared de carga central, propiciando una de las acciones materialmente más contundentes y singulares de la intervención: la obertura del nuevo pasillo atravesando los muros de 30cm que separaban originalmente las aulas.
Para la ampliación añadimos una estructura (parásita) metálica, apoyada en los pilares de acero de la fachada preexistente –de una primera pequeña ampliación de los 70s- y a los nuevos pilares al límite del patio, que aprovechan un muro de contención soterrado cómo cimiento.
Históricamente esta fachada siempre ha sufrido graves problemas de insolación, generando un altísimo disconfort a las aulas durante todo el año.
Proponemos un sistema pasivo de lamas fijas de chapa perforada que regulan la incidencia de los rayos solares –tan solo entra el 20% de radiación anual concentrada en los meses más fríos- y permiten una buena ventilación de las aulas.
La fachada tiene un espesor total de 80cm e incorpora una cámara de aire intermedia de unos 50cm permanentemente ventilada, que actúa de colchón térmico ofreciendo a la vez un estante exterior a cada ventana, dónde los alumnos pueden plantar y cuidar plantas…
Las lamas metálicas, resistentes a los habituales pelotazos de los patios escolares, se apoyan cada dos metros a unos grandes montantes de madera laminada de pino Douglas –especie muy resistente a la intemperie-, generando una composición de orden vertical que contrasta con los órdenes horizontales que dominan en las otras dos fachadas que dan al patio.
En la fachada de la calle, que aislamos térmicamente, la intervención es mínima pero imprescindible: mantenemos la obra vista y la composición existente que, junto con las vueltas cerámicas de los techos interiores, son casi el último vestigio explícito del edifico original; no tocamos las carpinterías blancas –ni originales ni bonitas, pero que están en suficiente buen estado- i, por requerimientos funcionales interiores, desplegamos varias acciones puntuales que plantean una relación de contraste con la preexistencia: seis nuevas ventanas de hojas basculantes que facilitan la ventilación cruzada con la fachada sur, y unos pocos elementos de bloque de hormigón visto (tapiados, casetón de la caja de escalera, etc.).
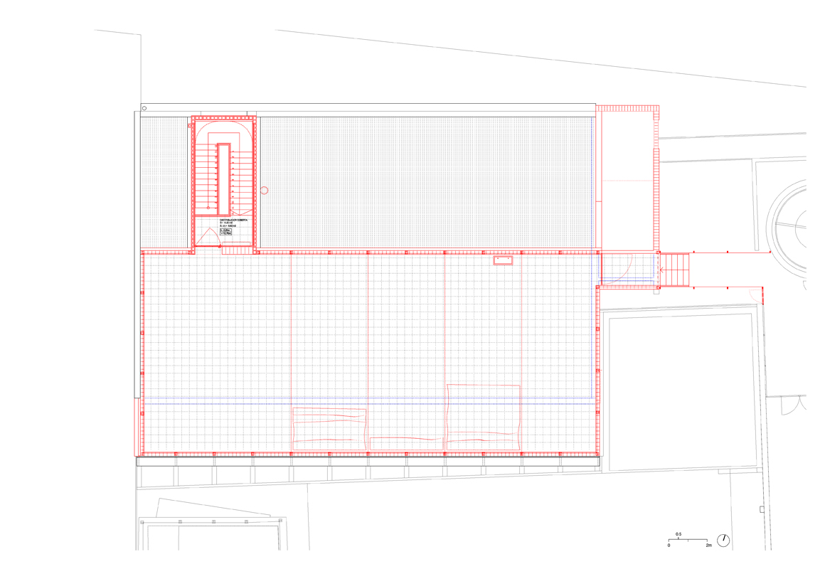
La mitad sur de la cubierta tiene una azotea inaccesible que reconvertimos en un nuevo espacio exterior de recreo –con magníficas vistas a la ciudad-, reforzando el forjado y añadiendo un nuevo tramo a la escalera existente –que preservamos casi íntegramente en las plantas inferiores-.
También ganamos otro patio, para los más pequeños de la escuela, sustituyendo 250m2 de vidrio, de la gran claraboya que cubre la escalinata de acceso al polideportivo soterrado, por un nuevo forjado colaborante apoyado en las vigas preexistentes; y aprovechamos el techo de hormigón de la zona del ascensor (40m2) para hacer una piscina de arena y una grada para niños.
Por último, modificamos las circulaciones para acceder a la escuela, abriendo puertas o tapiándolas y construyendo un nuevo porche (más alto) contiguo al preexistente, que potencia y significa la entrada de la escuela y se convierte en un nuevo punto central común que actúa cómo rótula del centro, dando acceso a cubierto a los cuatro elementos principales que integran el complejo escolar: el edificio de enseñanza secundaria, el patio central, el polideportivo soterrado y el edificio de educación infantil y primaria.
































1 Comment
Que grans que són els H!! Felicitats, que difícil es aconseguir aquest resutat. Quin gran equilibri!! Un cop acabat tot cuadra, té lógica i sentit, sense estridèncie, però amb molta personalitat, humilitat i ple de vida.