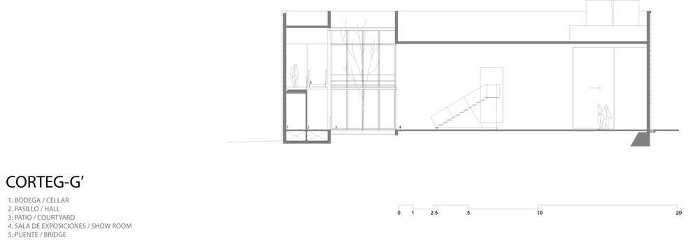
La Tallera Siqueiros generates a Relationship that reconciles a museum and workshop with the surrounding areas by means of a simple gesture: opening the museum courtyard onto an adjacent plaza, and rotating a series of murals from their original position. The space itself was built in 1965 and became the house and studio of the muralist David Alfaro Siqueiros during the final years of his life. La Tallera is “an idea Diego Rivera and I came up with in the 1920s- to create a real muralist workshop where new techniques in paint, materials, geometry, perspective and so on would be taught”.
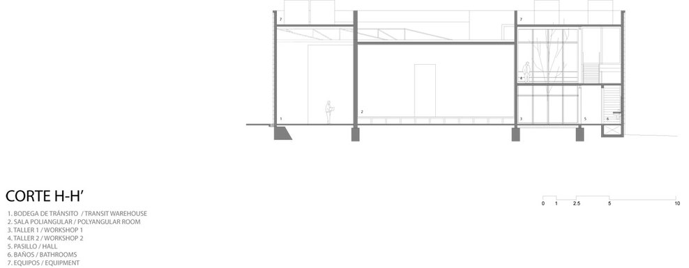
This is how Siqueiros himself defined this workplace, now a museum, workshop and artist’s residence focused on art production and criticism. By opening up the courtyard, the museum yields a space for shared activity, while also appropriating the plaza. The murals, originally intended for the outside area, now have a dual role: firstly, as a visual and programmatic link with the plaza, by containing the public areas of the museum (café, bookshop and store) and secondly as a wall/program that separates the artist’s residence from the museum and workshop. Rotating the murals puts into play the symbolic elements of the façade’s architectural syntax, altering the typical relationship between gallery and visitor at the same time. Like the exterior, the gallery space-from both an exhibition design and artistic point of view-unfolds and generates new relationships and spatial connections. The distribution of these spaces and the interplay of planes-in murals and walls-is revealed in crossing a perimeter lattice that delimits the urban surroundings, a single horizontal sculptural piece that contains and displays Siqueiros’ work.














































3 Comments
Un gran trabajo que de rehabilitación arquitectónica que ha convertido este edificio en museo. Enhorabuena!
http://www.obrabcn.cat
Amazing project. We love the relationships between the shapes and the buildings, very interesting.