El proyecto, destinado a viviendas de promoción pública en régimen de alquiler para jóvenes, se emplaza en un solar situado en la Zona Franca de Barcelona, en una antigua manzana industrial transformada en conjunto terciario, el «Distrito 38 Barcelona. Área de negocios». La parcela es contigua a un conjunto de seis edificios singulares de oficinas ordenados por el planeamiento sobre un zócalo común urbanizado.
Se propone un edificio de planta plegada en L, desarrollado en doce pisos de altura, organizado a partir de dos corredores perpendiculares que disponen de luz y vistas en sus extremos. Estos espacios de circulación dan acceso a las viviendas y facilitan el registro de todos los servicios e instalaciones sin necesidad de acceder al interior de las mismas. El núcleo de escaleras y ascensores, en posición central en el cruce de los dos corredores, ocupa el único espacio de la planta que no dispone de fachada. El pliegue del edificio forma un patio de acceso orientado a sur, en la esquina formada por la calle Encuny y el futuro vial previsto por el planeamiento del sector de la Marina.
Del volumen compacto inicial se eliminan algunas viviendas en las esquinas de las plantas superiores, configurando reducciones progresivas de la planta que acortan las aristas y contribuyen a generar un edificio más esbelto y complejo. Esta singularidad volumétrica resulta especialmente apreciable desde las visiones más distantes, que son muchas, ya que el edificio tiene perspectivas abiertas tanto desde la calle Encuny y el paseo de la Zona Franca, como desde el tránsito por la Ronda Litoral de Barcelona y desde numerosos puntos de la vecina montaña de Montjuïc. Las cubiertas que se forman a diferentes alturas como consecuencia de estas reducciones del volumen edificado se tratan como terrazas comunitarias.
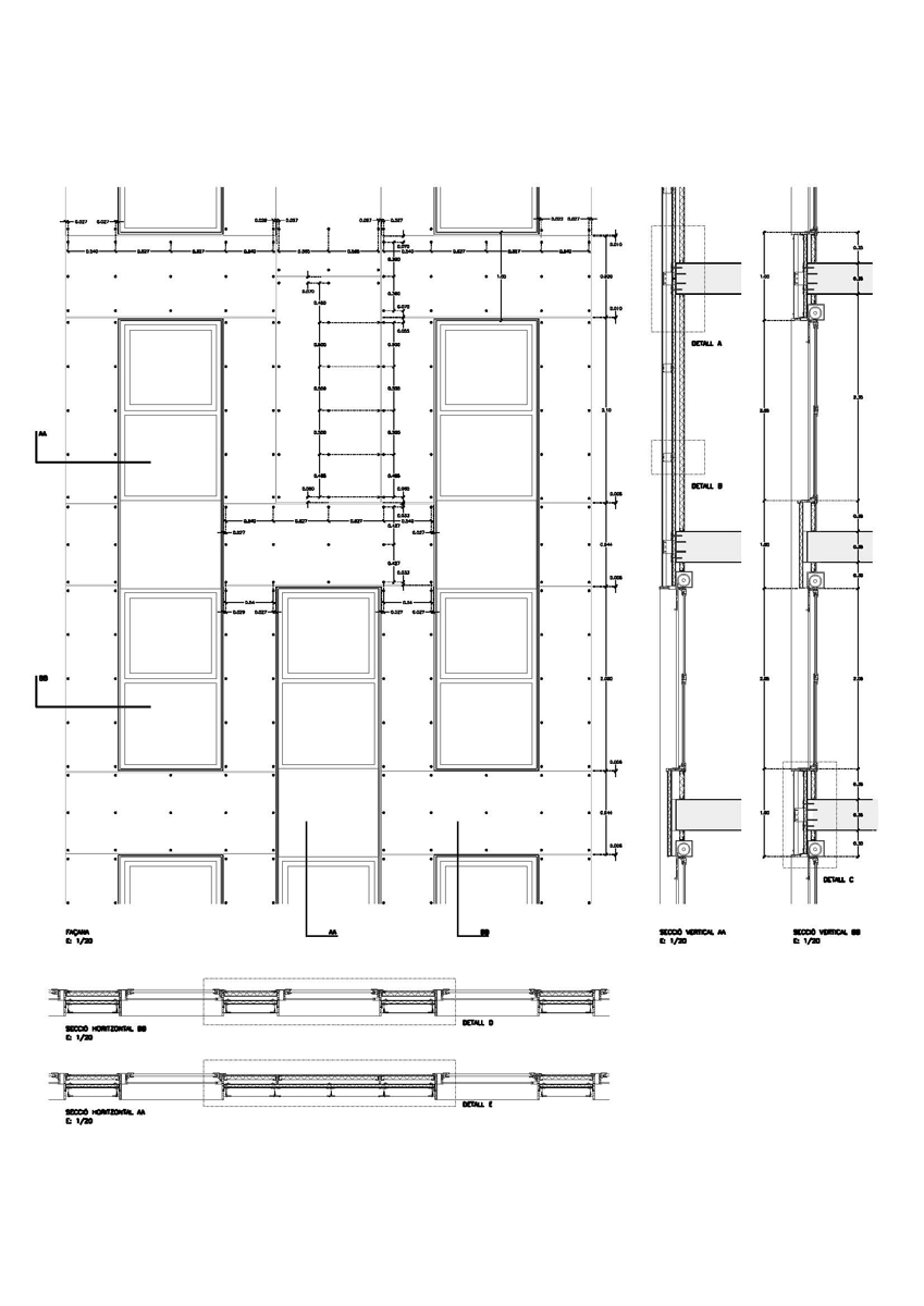
Las fachadas se proponen tensas, formadas por tres hojas independientes y construidas en seco con tecnología de fachada ventilada. Se resuelven con una única carpintería tipo y se estructuran en base a una malla modular estricta de macizos y huecos. Para acentuar la aparente esbeltez del edificio se aplican tres recursos compositivos: las ventanas se agrupan en vertical cada dos plantas, se disponen al tresbolillo en altura, y se eliminan irregularmente en columnas alternas en la sección superior de las fachadas.
El edificio comprende 114 viviendas con sus correspondientes espacios comunitarios. El programa funcional de una vivienda de promoción pública en régimen de alquiler para jóvenes se desarrolla en un módulo de entre 40,00 y 50,00 m² de superficie útil, que comprende un espacio subdividible en sala y dormitorio, y un baño.
Se asocian al conjunto de viviendas cinco salas polivalentes comunitarias destinadas a usos diversos –salas comunes, lavanderías, espacios de vending…–, vinculadas a las terrazas que configuran las diferencias de altura entre las distintas secciones del edificio. Se prevén aparcamientos de coches, motos y bicicletas.

























1 Comment
Qué ha pasado con el gesto de esconder la nevera que se puede apreciar en el rénder? En la planta no figura y además se intuye que es imposible puesto que no hay suficiente espacio. Dónde está el engaño, en la imagen o en el proyecto? En la realidad o en la imaginación?
Ya está bien de poner imágenes virtuales en obras construidas.