Miàs architects Comunidad terapéutica en Arenys

Source: Josep MiàsPhotography: Adrià GoulaYear: 2012Location: Arenys de Munt
Date: October 14, 2013

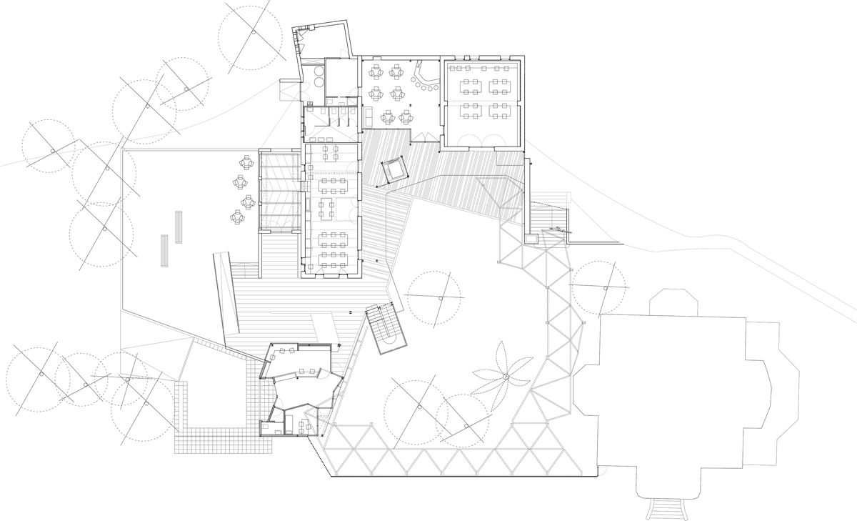
Previamente, el equipamiento constaba de un edificio existente, principal, y de dos construcciones auxiliares separadas de ésta.

La propuesta une las dos construcciones auxiliares existentes manteniendo su uso como taller en planta baja e incorporando las habitaciones en planta primera. De este modo, se entiende una sola volumetría en forma de L que dialoga con el edificio principal. Entre ambos cuerpos se define el patio como un espacio de relación y principal espacio exterior del conjunto.

El programa funcional o de necesidades definido por la propiedad es la ampliación de los dos edificios auxiliares existentes mediante la cubrición del patio que las separa.

Se propone un sistema de circulación/pasillo de entrada a los diferentes talleres y a las habitaciones en el primer nivel que envuelve el espacio central del patio, cubierto con un cerramiento ligero. Este pasillo será una transición entre el interior de los talleres y el patio.

La incorporación de estas habitaciones al programa existente permitirá concentrar las actividades internas y de gestión en la edificación principal, y dotar a los pacientes de más espacios en el nuevo edificio.

La propuesta establece una diferenciación clara entre lo que se mantiene y lo que se construye nuevo. De este modo, las fachadas y las cubiertas inclinadas a dos aguas de los edificios a mantener se rehabilitarán haciendo únicamente intervenciones mínimas.

Por otro lado, la galería exterior en forma de T que unirá los dos cuerpos tendrá la función de pasillo entre las diferentes estancias y será tectónicamente diferente a la que existía, sustentada por una estructura metálica cubierta con paneles sándwich. La nueva intervención se construirá en seco, con materiales semi-industriales que hagan de un pasillo, un filtro entre las habitaciones y el exterior.

1 Comment

This site uses Akismet to reduce spam. Learn how your comment data is processed.

Close
Close
Close