Este proyecto es el resultado de un concurso de ideas ganado en el año 2003 y terminado finalmente en el 2013.
El edificio de 44 viviendas sociales, un local comercial y parking forma parte del plan de renovación urbana del casco antiguo de Manresa que tenía como objetivo fundamental regenerar y revitalizar el centro histórico de la ciudad. El plan especial redactado por el arquitecto David Closes desde el Ayuntamiento de Manresa se planteó con una importante y ambiciosa idea de reactivar una área de la ciudad que se enecontraba al límite del abandono. Con esta intervención el Ayuntamiento ha conseguido reactivar este barrio creando un conjunto integrado de espacios públicos, edificios de viviendas, locales comerciales y parking público.
El diseño de este edificio de viviendas sociales ha tenido como objetivo fundamental crear vivienda social digna atendiendo a las premisas de mínimo mantenimiento requeridas por el Ayuntamiento y respondiendo a los criterios de sostenibilidad y eficiencia energética exigidos.
El edificio resuelve el programa funcional estableciendo un estrecho diálogo con los espacios públicos que le rodean. Aprovechando los diferentes niveles de las calles y de la plaza existente se establece una directa relación entre el funcionamiento del edificio y el entorno urbano.
En la fachada Sur el edifico dialoga con una plaza que acoge una antigua chimenea existente y una nueva pasarela que comunica con el centro histórico situado a cota superior.
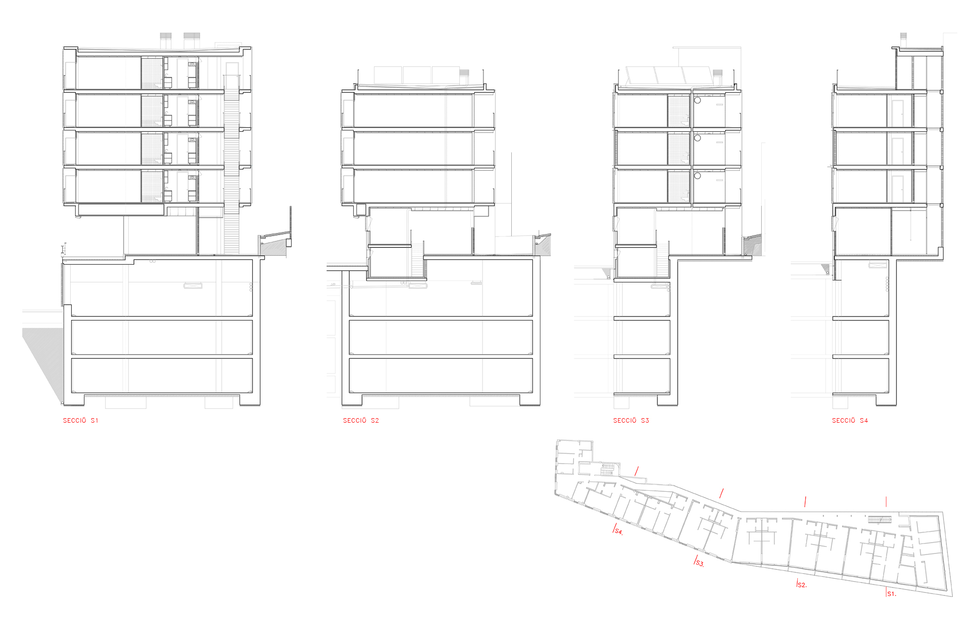
La planta irregular del edificio se va adaptando a los límites construïdos y del solar, dando fachada a dos calles, a la plaza existente y dejando en su parte posterior un patio abierto.
El programa de las viviendas, resueltas todas ellas con ventilación cruzada, se desarrolla mayoritariamente en tres plantas, llegando a 4 plantas en el extremo sur. El parking, concentrado en tres plantas semienterradas se extiende por debajo del nivel de plaza. Aprovechando el desnivel generado entre la la calle y la plaza se diseña una fachada ventilada de lamas verticales de acero galvanizado que garantiza la ventilación natural del parking.
Dos núcleos de acceso situados en los extremos del edificio y un corredor errático y abierto al patio interior conducen a las diferentes viviendas.
Con el objetivo de acoger una amplia diversidad de usuarios se proyectan diversas tipologías de viviendas con superficies de 45, 60,70 y 90 m2. En la planta baja se concentran algunos espacios de instalaciones, un local comercial con fachada a la plaza y las viviendas duplex que limitan a nivel con el patio interior.
En las fachadas Este, Sur y Oeste una galería corrida en todo el perímetro, delimitada por un cerramiento de lamas de aluminio orientables, permite albergar una terraza ventilada y protegida para cada vivienda.
Este cerramiento garantizará la protección visual y solar de las fachadas más expuestas al sol. Se trata de una envolvente unitaria, dinámica y cambiante que se transforma a diario en función de las necesidades lumínicas y visuales de cada usuario.
En el punto de inflexión de la fachada Oeste, donde termina la galería corrida empieza una fachada construida con paneles prefabricados “trespa” bicolor y persianas correderas de lamas de aluminio. De nuevo se trata de una fachada dinámica que va mutando en función de las necesidades de de cada vivienda.
Es desde este punto de inflexión de la fachada desde el cual arranca una rampa que accede a la plaza y a la pasarela, por debajo del voladizo del edificio.
En la fachada patio un sistema de panelesde cristal gulas confirgura un nuevo pattern creando un juego de llenos y vacios que permite dejar el corredor interior abierto y ventilado naturalmente.
El edificio se ha diseñado atendiendo a criterios de sostenibilidad y ecoeficiencia, garantizando la ventilación cruzada de todas las viviendas, utilizando sistemas constructivos secos para la distribución interior, paneles prefabricados tipo trespa en fachada, sistemas de control solar en fachadas, recogida de aguas pluviales y reciclaje de aguas grises, Para garantizar la eficiencia energética del edificio se ha previsto un sistema de calefacción mixto, con placas solares y gas, que alimenta el circuito de agua caliente sanitaria y de calefacción.






























1 Comment
Com sempre és trist veure com es penja l’etiqueta de sostenible i ecoeficient a un edifici amb una facilitat que fa fredat, sense mencionar la composició de façanes a nivell d’aïllament ni el consum anual que es requereix per m2.
Per no parlar de la quantitat d’energia gris que es deriva de la conformació de l’alumini de façana que ja deixaria per si sol qualsevol possibilitat de ser qualificat com a sostenible en un país seriós. Mencionar només el sistema de calefacció mixte per dir-nos que és ecoeficient és quedar-se massa curt.
A mi l’aspecte de façana no fa més que recordar-me les torres de Diagonal Mar atiborrades de lames d’alumini, salvant les distàncies… Potser n’hi ha masses indiscriminadament per totes les orientacions.
Habitatges socials amb aquest dispendi de recursos ? Potser hauríen de ser els projectes exemple d’altres habilitats dels arquitectes que merament la compositiva i d’integració.
Dels habitatges ni una fotografia o planta de detall.
Com sempre ens quedem en parlar de pells i ‘patterns’ que queda molt més cool…
Prefereixo amb escreix l’obra urbana de la Lola, molt més completa i coherent en cada projecte
amb la finura i atenció en el detall que la situen, sens dubte, en una de les milllors.