El edificio se sitúa en una manzana con vivienda y equipamiento escolar en el nuevo barrio de Boulogne que ocupaban los antiguos terrenos de la Renault, objeto de una operación mixta por parte de la SAEM VAL DE SEINE AMËNAGEMENT.
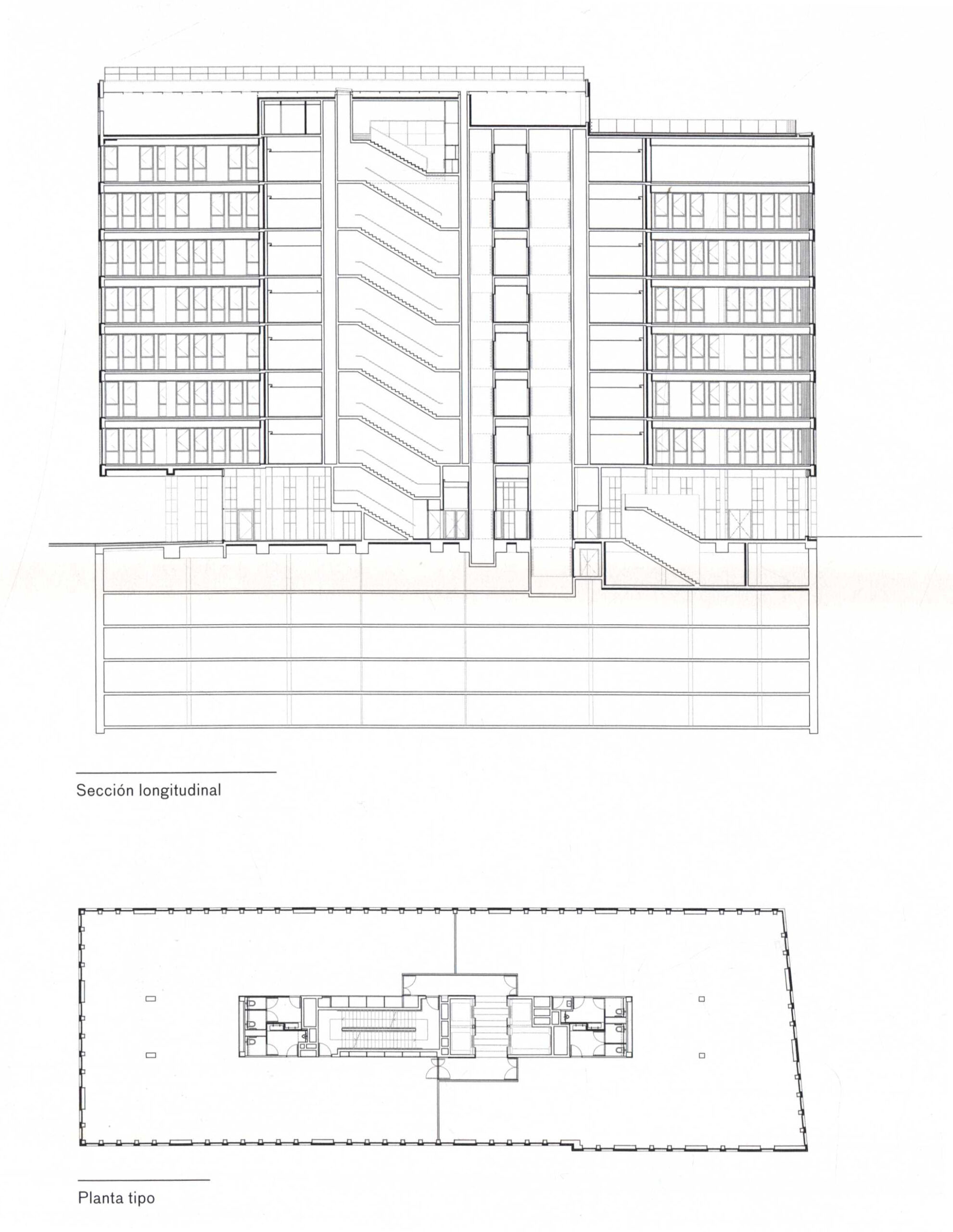
Tras la celebración del concurso la amplitud de los condicionantes impuestos por la normativa y por los agentes intervinientes en el proceso, se interpreta a través de de un edificio sobrio y sencillo. La planta libre producto del núcleo central de comunicaciones lleva la estructura a la fachada que queda recubierta por piedra filita plateada y ventanas y cuadros de aluminio anodinado. El conjunto pétreo se recorta en un voladizo en planta baja y en el recorte del ático en el lado opuesto facilitando el acceso al patio interior.
La estricta modulación de los despachos (2,t0 m) induce al empleo de una sola medida en la piedra 45×90 y una sola ventana de 90×2,70, con las únicas excepciones de la planta baja, donde el vidrio se retira, el remate, donde la ventana se agranda y se coloca en el plano exterior, y con la supresión estratégica de determinados huecos.
El hall ofrece transparencias al jardín trasero tras el paso de una marquesina colgada de acero inoxidable, la zona de acogida en madera de roble y las columnas pétreas e iluminadas de los ascensores.
















1 Comment