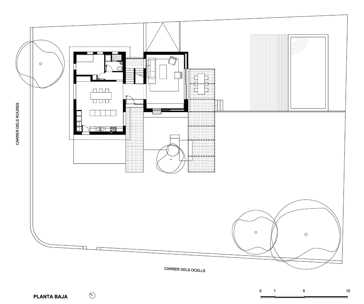
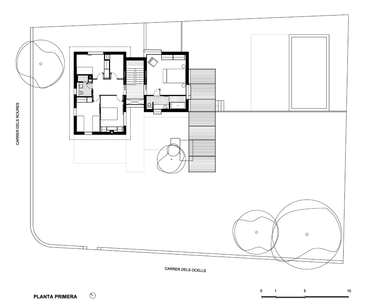
El proyecto consiste en la ampliación de una casa de fin de semana de una urbanización de Sant Esteve de Palautordera, una casa de veraneo de dos plantas construida en varias fases durante los años 80. El nuevo programa para la ampliación prácticamente dobla la superficie inicial y, por lo tanto, la nueva construcción difícilmente podría entenderse como un añadido más de la casa original. El planteamiento pues, desde un inicio, fue tratar la globalidad del proyecto como en una pareja de baile, donde cada uno interpreta su papel bajo una misma música.
La casa original consiste de un volumen principal rectangular al que en fases posteriores se le habían añadido un porche y una galería elevada. La primera operación consiste en la eliminación de estos añadidos, dejando la casa prototípica como tal – una casa con cubierta a dos aguas y paredes blancas perforadas por ventanas.
La ampliación se construye con la misma voluntad de inmediatez que la casa inicial, presentándose como un volumen rectangular de cubierta plana que casi repite la anchura del cuerpo existente y que queda por debajo de la cubierta inclinada de la primera.
La nueva pareja está formada por dos personajes similares. La volumetría, las dimensiones y proporciones de las aperturas, así como los materiales y técnicas constructivas de las dos piezas son parecidas. Son piezas iguales pero no idénticas; ninguna se erige como pieza principal, aunque es fácil distinguir entre una y otra. No se trata de dos piezas gemelas, a la manera de los personajes de Dupond y Dupont, sino que forman una pareja de singularidades dentro de una unidad, al estilo de Stan Laurel y Oliver Hardy.
La característica más inmediata de esta relación entre similitudes y características propias de cada volumen está en el tratamiento de la fachada. Aunque los muros perimetrales de los dos volúmenes tienen el mismo origen y, básicamente, el mismo tratamiento, la ampliación muestra las capas que constituyen su blanco vestido; el ladrillo, el revoco y la pintura blanca. El rayado de las fachadas da un cierto protagonismo al volumen nuevo que compensa su menor dimensión y aporta una ligereza y una fragmentación que desdibuja sus límites hacia el jardín.
Entre los dos volúmenes, trabajando como una rótula, situamos la entrada y la nueva escalera. Esta zona está ligeramente retirada de los planos de fachada y su altura es menor con el propósito de no erigirse en una tercera pieza equivalente a la pareja principal. Se trata claramente de un espacio entre los protagonistas, que funciona tanto desde la volumetría como desde el programa, organizando las circulaciones y mostrando el origen, el proceso y, en definitiva, la estrategia adoptada.
























10 Comments
A la foto 5, on surten els dos petits amb tovallola, sembla que alguna cosa no estigui a escala,no?¿?¿? Potser sóc jo, potser és un efecte òptic. El projecte em sembla un molt bon treball!! Pressupost ajustat, bones solucions. Chapeau!
La niña de la izquierda está encima de la mesa
Felicitats.gracies per ensenyar aquests projectes q transpuen il.lusio!
Es una falta de respeto y de sensibilidad llamar basura, a una obra de un tándem de arquitectos que trabajan intensamente en cada una de sus obras con una dignidad extrema.
Impecable., muy bien, me encata!
Basura, una casa ridícula con detalles maníaticos y exagerados.
Sinceramente creo que comentarios como este no aporta absolutamente nada.
Además de una descalificación gratuita y no fundamentada de una buena obra, es reflejo de un resentimiento malsano hacia unos muy buenos arquitectos.
¿Por que no se aprovechan plataformas cómo esta para crear foros de discusión constructiva, en lugar de plasmar las propias frustraciones o expresar desprecio y odio sin fundamento?
Impecable proyecto donde con “poco” se consigue “mucho”. Un ejemplo.
Absolutament fantàstic!
IMPECABLES como siempre…!