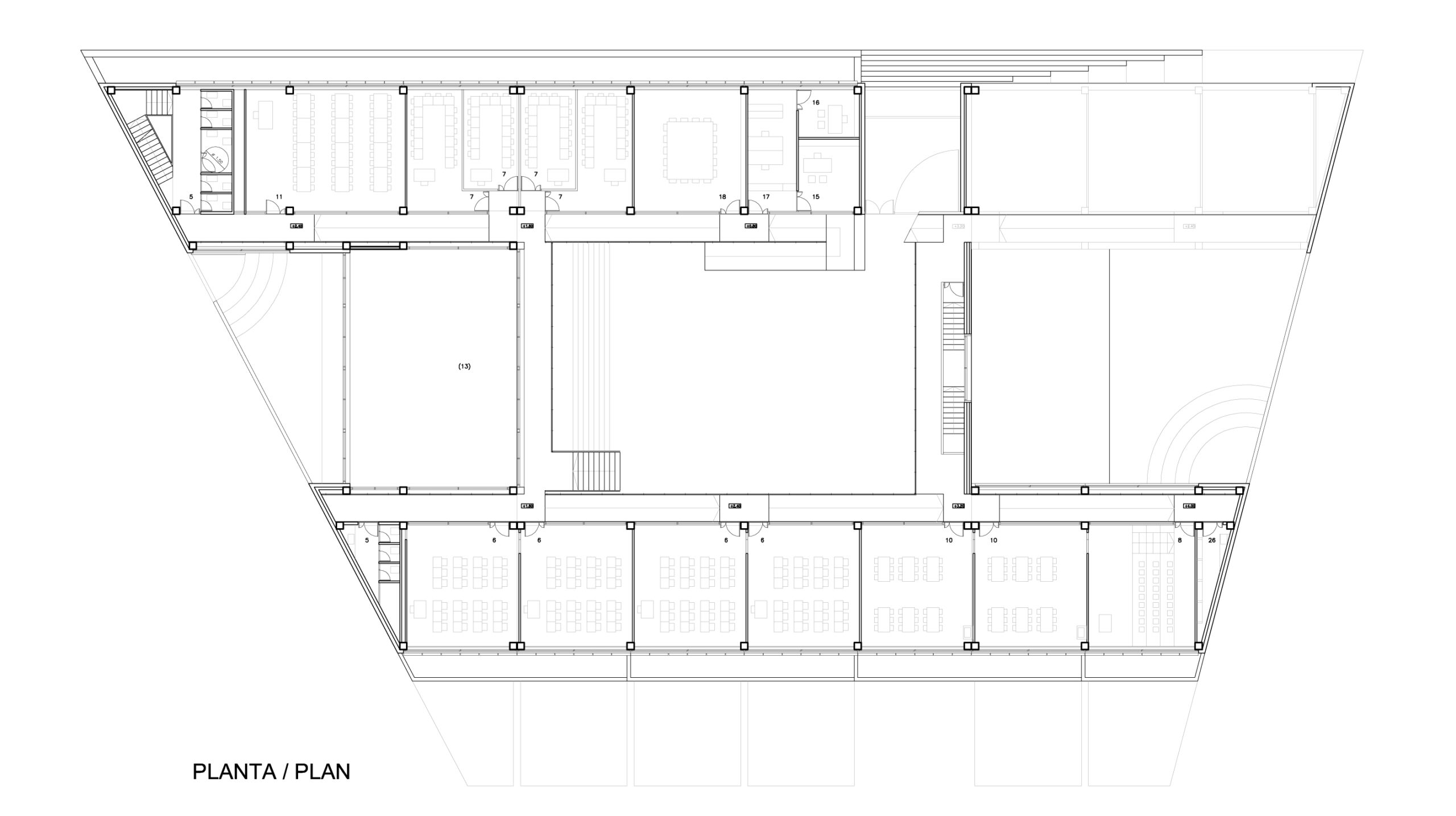
El Centro de Educación Infantil y Primaria Jungfrau está situado en la calle Villa Valle Llabrera de Badalona. Es un edificio que en planta tiene forma de H y se organiza en torno a un espacio central.
En las alas se sitúan las aulas, despachos, biblioteca y servicios, y el espacio central acoge la sala polivalente, el gimnasio y el comedor. Las circulaciones y accesos a las aulas se realizan con rampas suaves que rodean el espacio central y se integran.
Idea: un recorrido con rampa de planta rectangular da acceso a todas las dependencias; se crea un gran espacio central que se amplía, por los lados estrechos, con las salas del gimnasio y comedor.
Luz: la inclinación de los cuerpos de aulas permite que el sol ilumine la parte norte del edificio a través del espacio central. Es un edificio abierto hacia dentro.
Textura: el tacto es el de los materiales tal como son, sin revestimientos. no hay ningún material cerámico, ningún revestimiento de yeso ni instalación empotrada.
Ambiente: los espacios centrales permiten realizar actos comunitarios en tres dimensiones y cambiar la imagen de la escuela a lo largo del curso (otoño, primavera …).
Polivalencia: la sala central es el espacio libre no deportivo más grande de la ciudad.















