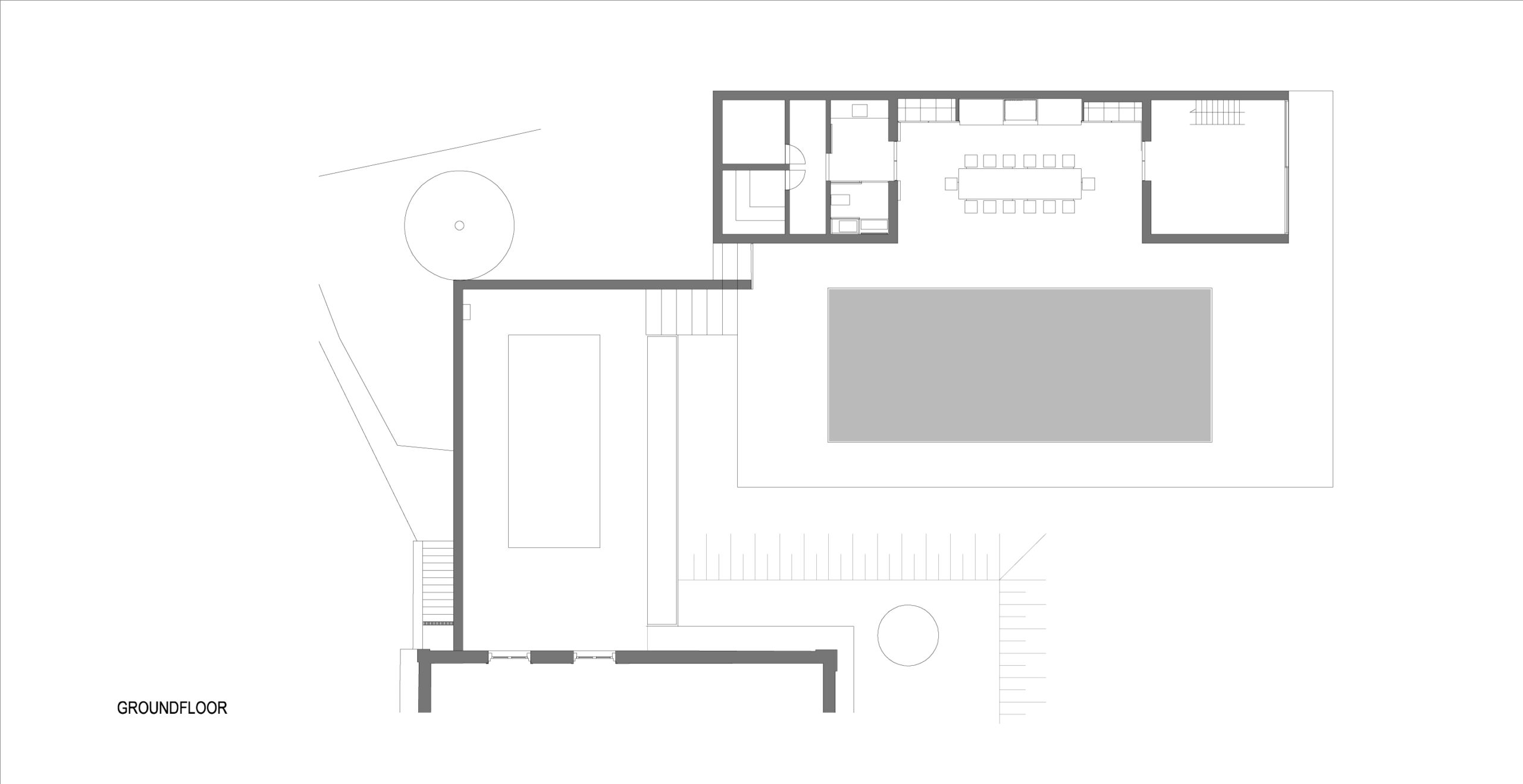
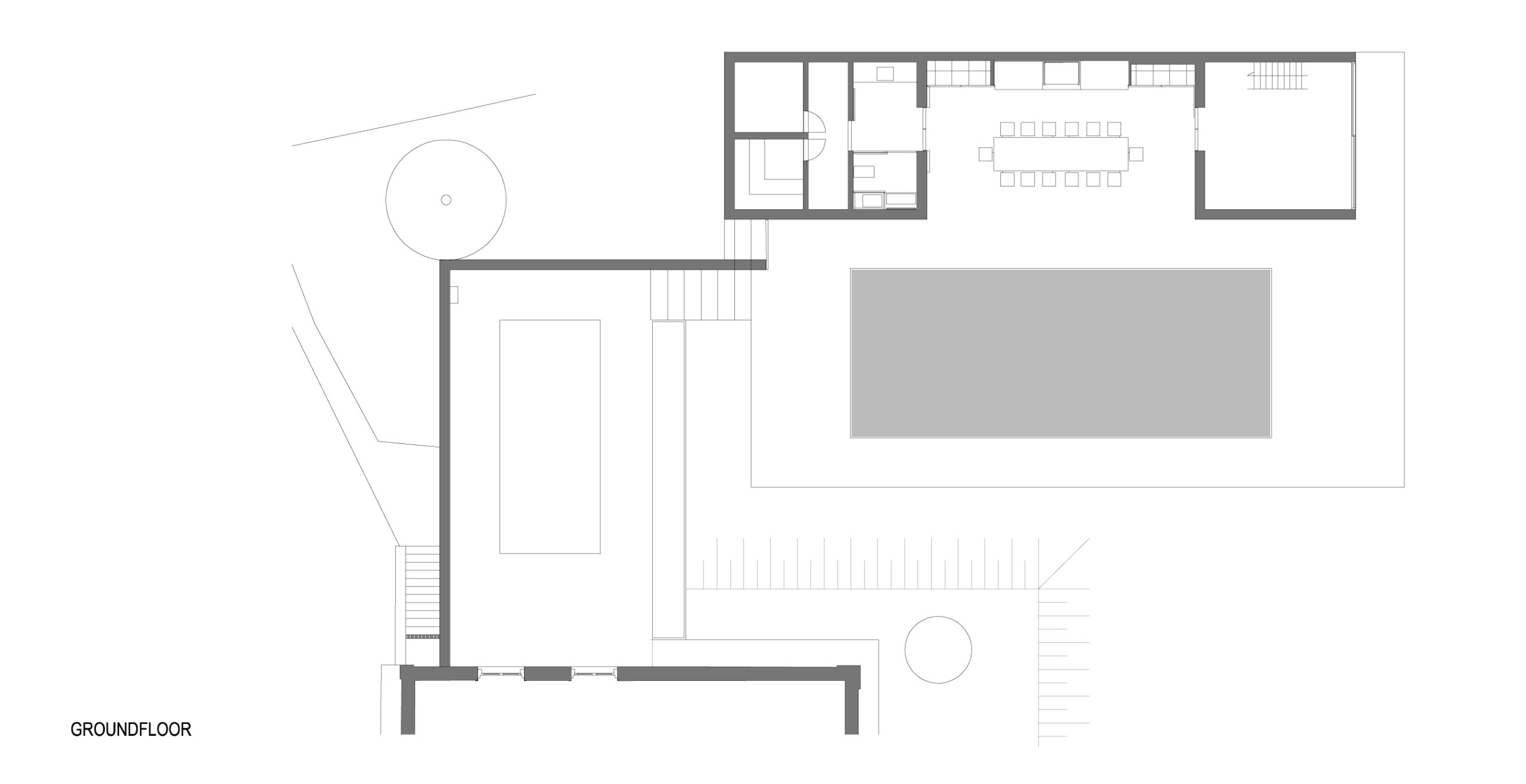
The pool house extension for this French style house built in 1954 was conceived as a free standing garden pavilion in its green setting. The architect, Vincent Van Duysen, chose to work with austere and pure forms, materials and colours, in order to create an exciting confrontation with the style from the existing house. The only connecting element between the villa and its pool house is a slender anthracite painted brick wall. This wall also parts the main house, garden and pool from the owner’s adjacent practice/porterhouse.




























1 Comment
The anthracite painted brick wall gives a nice effect to the facade