OAB Ferrater Casa BF

Source: OAB FerraterPhotography: Joan Guillamat
Date: July 29, 2012

Una parcela de 3.000m2 con un desnivel de 25m. en una urbanización de Castellón construida al 50%. Observando la parcela, comprobamos que en realidad reflejaba un momento de la historia de estas tierras correspondiente al siglo XVII donde un exceso de población obligó al cultivo de todo tipo de terrenos, incluidos casos como este de gran pendiente, mediante el sistema de abancalamientos con muros de piedra del terreno. El abandono posterior permitió el crecimiento de arbolado, principalmente algarrobos y pinos.

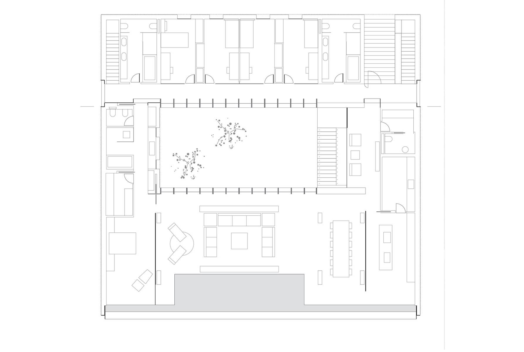
Nuestra postura fue de respeto absoluto. La construcción debía respetar el terreno y se opto por un sistema constructivo prefabricado al máximo, que se depositara sobre el terreno prácticamente sin tocarlo, sin talar árboles y aprovechando los bancales existentes, que se reconstruyeron en las zonas dañadas, con la misma piedra y la misma técnica. Parte de la casa –garaje y zonas auxiliares- se encuentra enterrada, reconstruyendo encima el terreno natural con la vegetación autóctona. Así, des­de el nivel superior, se accede mediante una rampa a un montacargas para vehículos que los introduce en el garaje situado a 13ml bajo el nivel de acceso, que comunica con la vivienda en sus dos niveles. Todo esto queda oculto a la vista. En la construcción, intentando disminuir el impacto sobre el terreno, se optó por una estructura metálica fabricada en taller y transportada a obra en grandes piezas que se ensamblaban sobre 3 pilares metálicos dobles en forma de V. La parte trasera se apoya sobre un bancal de piedra existente. Toda la construcción de este elemento en vuelo se realizó con elementos ligeros en seco. La fachada, resuelta en varias capas, se remata en el exterior con una chapa metálica grecada, especialmente diseñada para evitar los reflejos y el calentamiento, gracias a las sombras provocadas por los pliegues. La gran boca frontal, orientada hacia unas magnificas vistas, dispone de las propor­ciones adecuadas para permitir el sol del invierno y proteger del sol en verano. Las placas solares de tubos al vacio sobre la cubierta permiten garantizar casi en todo momento el agua caliente tanto para uso sanitario como para la calefacción por suelo radiante, colocada bajo una tarima de madera. Las corrientes de aire a través del patio, aprovechando las distintas orientaciones, permitirán reducir igualmente el consumo de aire acondicionado, que no obstante se ha instalado.

El patio intermedio permite realizar el acceso por debajo de la casa y al mismo tiempo orientar todas las estancias hacia el sol y las vistas. Toda la casa gira alrededor de este patio, permitiendo el recorrido completo. Es una casa con patio, pero con otras connotaciones. Es el centro, permite todo tipo de vistas a su través, relaciona todos los espacios, haciendo cercana una casa con bastante superficie, pero no es accesible ni está situado en el plano de la casa; no encierra la vivienda ya que se escapa por debajo de ella. En el gran espacio frontal, que alberga la cocina, salón comedor y dormitorio principal, queda evidente el sistema constructivo, estando vistos tanto los pilares como la estructura de cubierta, formada por cartelas metálicas que soportan una chapa grecada sobre la que se construye la cubierta. Todo pintado de blanco e iluminado por leds.

4 Comments

  • Anonymous October 3, 2012

    Como dejó caer mrprink es una reinterpretación de la Casa de Vidrio de Lina Bo Bardi

    Reply
  • mrpink August 8, 2012

    Lina Bo Bardi “oabizada”

    Reply
  • DG Arquitecto August 1, 2012

    Un muy buen proyecto, como dice Alberto una forma fantástica de posar una vivienda sobre la parcela.

    Saludos!!!

    Reply
  • Alberto B. July 31, 2012

    Fántastica, sobre todo el trabajo en la parcela, recuerda a lo que hace Souto de Moura en los emplazamientos de sus casas. Enhorabuena!

    Reply

Reply Cancel Reply

This site uses Akismet to reduce spam. Learn how your comment data is processed.

Close
Close
Close