Excavar en la garriga
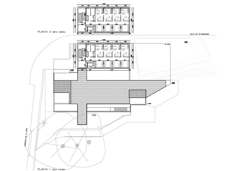
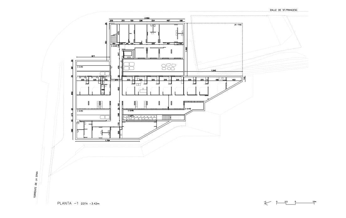
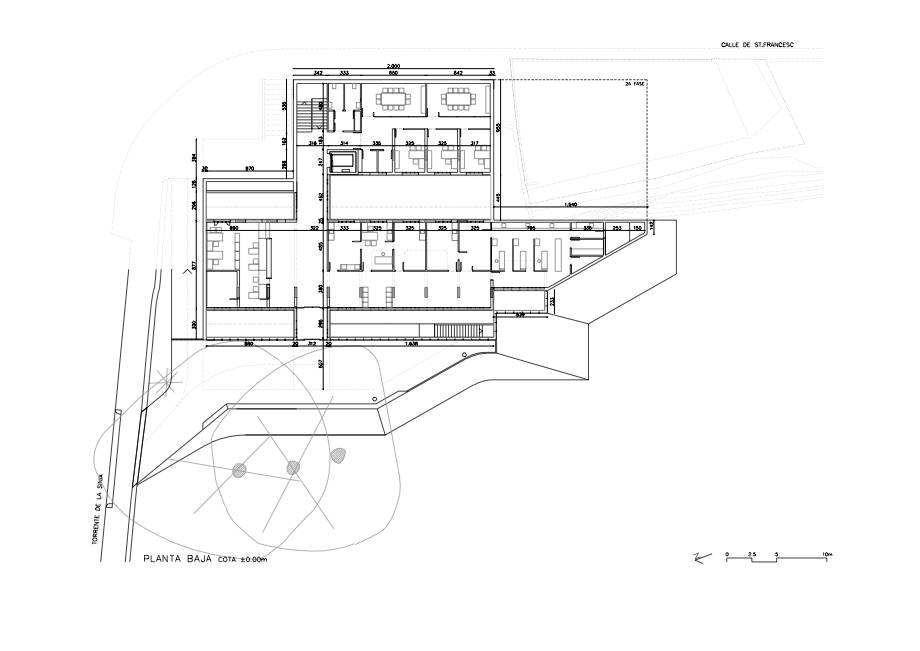
Tipológicamente el CAP de la Garriga es una excepcionalidad por las dimensiones del solar, por las condiciones topográficas y por situarse como esquina de un parque.
El edificio, que tiene de hecho en su parte más alta cinco plantas, aparece sin embargo como un edificio de dos plantas en la perspectiva de la calle Sant Francesc y como un edificio de una planta con un telón de fondo de dos plantas y cubierta hacia el parque. Esto se consigue haciendo que el edificio crezca hacia arriba y hacia abajo mediante un sistema de patios donde se localiza bajo rasante el 60% de superficie del programa. El plano que los divide es la cubierta de terrazo amarilla que extiende la cota de la calle.
La compleja geometría en planta y en sección del solar se ha solucionado dando valor cromático a este plano como si fuera un nuevo suelo cero. Sobre este, que es la fachada que se percibe desde las zonas de espera, se sitúan no sólo el cuerpo de las consultas sino también las instalaciones, las chimeneas y los lucernarios.
El edificio se resuelve de una manera austera en materiales y colores, los grises claros del hormigón, el acero de las rejas-celosías y el blanco y amarillo de los interiores.
























